Harumi Condominium C1 & C2 Towers
Harumi is an artificial island built on reclaimed land in Tokyo Bay that saw the development of office and residential towers starting in the 1990s. That development will no doubt continue as the island is the site of the Olypmic Village for the 2020 Olympic Games. The announcement of Tokyo's winning Olymic bid in 2013 coincided with the completion of the first of a pair of 49-story residential towers designed by Pritzker Prize-winning architect Richard Meier. Associate Partner Dukho Yeon answered a few questions about the multi-phase project.
What were the circumstances of receiving the commission for this project?
Richard Meier & Partners Architects LLP was invited and selected from a short-list of three international firms by interview and office visits by Mitsubishi Estate Group for the Harumi project.
Please provide an overview of the project.
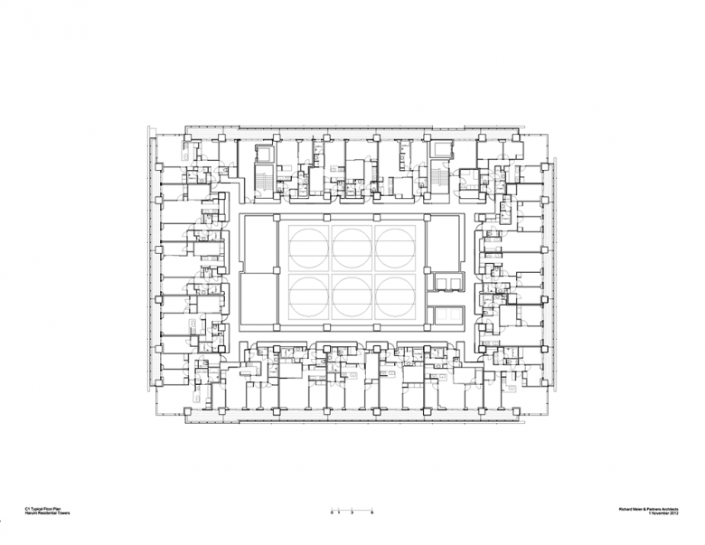
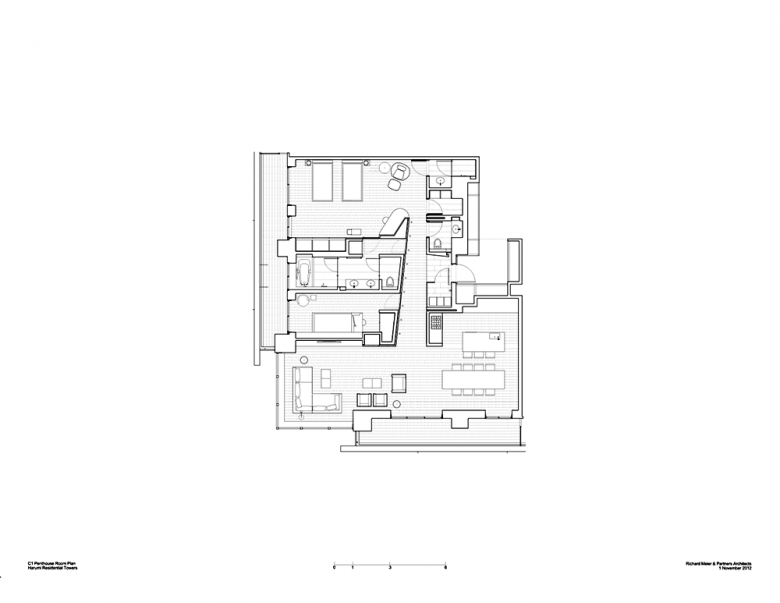
In collaboration with Mitsubishi Estate and Mitsubishi Jisho Sekkei, RM&P was the design consultant for the facades, podiums, entrance lobby spaces, and unifying landscape of the Harumi Condominium project. Located on a prominent and most visible site on Tokyo Bay, the two residential towers are each 48 stories tall with a combined 1,800 units. The two towers are conceptualized as siblings with two unique designs each with its own character, image and movement, in dialogue and harmony with one another. The designs speak beyond their immediate constraints to engage a timeless narrative of context and building, tradition and innovation, architectural expression and symbolism captured in their details and the textures.
What are the main ideas and inspirations influencing the design of the building?
The design is inspired by an appreciation and attention to beauty that permeates the Japanese culture. The Harumi project is about harmony of parts, concern for qualities and proportions, and with an understanding of a unique building typology specific to Japan.
Were there any significant challenges that arose during the project? If so, how did you respond to them?
Designing within the constraints of the residential tower typology of Tokyo driven by Life Safety and Fire Code.
How does the building relate to contemporary architectural trends, be it sustainability, technology, etc.?
Building technologies and engineering such as structural isolation systems for such large scale buildings (due to strict codes), and proprietary above-grade automated parking systems are the most sophisticated and advanced in the world.
How did you approach designing for Tokyo/Japan and how would you describe the process of working on the project there?
Well organized client with clear vision and goals for the project; on time, on schedule, on budget the most seamless collaborative effort with local team and professionals, and with results that surpassed expectations.
How would you describe the architecture of Tokyo/Japan and how does the building relate to it?
Dense, layered and intertwined networks of people, transportation, buildings – a megalopolis but with a certain sense of order beyond compare. The Harumi Towers are very much part of this context.
Email interview conducted by John Hill.
Harumi Condominium C1 & C2 Towers
C1 Tower: 2010-2014C2 Tower: 2012-2016
Tokyo, Japan
Client
Mitsubishi Jisho Residence Co. Ltd. (Mitsubishi Estate Group) in partnership with Kajima Corporation
Architect
Richard Meier & Partners Architects
New York, NY
Design Team
Richard Meier
Dukho Yeon
Project Architect
Carlo Balestri
Collaborators
Tetsuhito Abe
Kevin Baker
Remy Bertin
Guillermo Murcia
Takumi Nakagawa
Hans Put
Amalia Rusconi-Clerici
Sangmin You
Architect of Record
Mitsubishi Jisho Sekkei Inc. (MJS)
Structural Engineers
MJS
Mechanical Engineers
MJS
Landscape Architect
Richard Meier & Partners and MJS
Lighting Designer
MJS
Contractor
Kajima Corporation
Site Area
29,890sm (C1 Block: 14,925sm, C2 Block: 14,925sm)
Building Area
Gross 196,200sm (C1 Tower: 97,850sm + C2 Tower: 98,350sm)
Photographs
© Ishiguro Photographic Institute
Drawings
Richard Meier & Partners Architects












