Higgins Lake House
Higgins Lake House
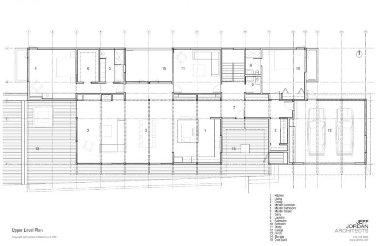
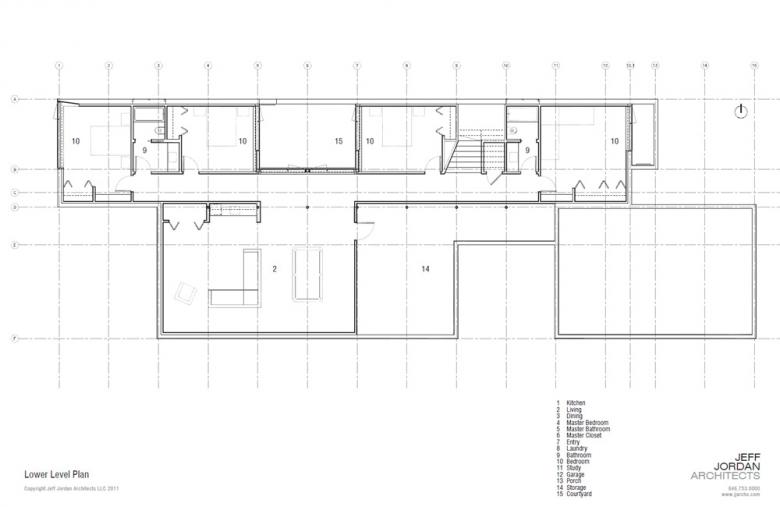
This house on Higgins Lake in central Michigan adroitly balances various considerations of site: lake views, sunlight, winds, and so forth. An openness towards the lake on the upper floor is countered by a partially buried lower floor which receives light by one of two courtyards, the other serving the entrance. It's a simple linear plan that successfully integrates itself with the surroundings. Architect Jeff Jordan answered some questions about the design.
Can you describe your design process for the building?
We spent a lot of time getting to know the lake, the community that shares the lake and the different solutions to housing around the lake. Older cottages tended to be modest in size and disposition while newer ones clearly built out to the maximums allowed by zoning. The newer houses were widely reviled and could be seen from all around the lake because of their size and awkwardness. Our client has a big family and they wanted a big house to accommodate that family, but we were concerned about adding to the visual clutter. We probably developed six or seven distinct schemes before convincing the client that we could give them a big house that took advantage of important lake views without overwhelming the neighbors. Each successive scheme was presented in both physical and digital model form to help make a case for issues like buried programmatic volume, sight lines through interior spaces to the exterior and overall massing on the site.
How does the building compare to other projects in your office, be it the same or other building types?
The Higgins Lake House is one of the best examples in the office of a project that addresses many of our core design values. We are interested in a dynamic and balanced relationship between building and landscape. We are interested in creating space that draws from the rich modern canon while being warm and livable. We are interested in solving difficult programmatic, site and budget conditions with clever, thoughtful solutions.
How does the building relate to contemporary architectural trends, be it sustainability, technology, etc.?
The Higgins Lake House draws from current sustainable thinking without trying to be a symbol of that movement. We positioned living spaces along the south side of the house with large expanses of glass to take advantage of passive winter heating, while providing deep overhangs to block summer sun. We minimized north-facing windows to reduce winter heat loss. Operable clerestory windows and skylights allow for summer cooling by simple cross ventilation. All exterior walls and roofs cavities are filled with a closed cell spray foam insulation that virtually eliminates air infiltration. When coupled with a heat recovery unit, fresh air can be provided that is pre-conditioned to indoor temperatures resulting in heating and cooling costs way below average for a house of this size. Low flow plumbing fixtures and dual flush toilets are used throughout. Materials are locally sourced to the extent possible. A wood rainscreen siding system minimizes heat gain from exterior surfaces by reducing the ability for heat to conduct through the wall assembly. In short, the project employs multiple sustainable strategies effortlessly and to great effect.
Are there any new/upcoming projects in your office that this building’s design and construction has influenced?
We are working on a couple of new houses and significant renovations that build upon the core design values present in the Higgins Lake House. While the sites aren’t always as incredible, an ongoing effort to establish a meaningful relationship between building and site, occupant and surroundings remains important.
Currently under construction is the Red Bluff Residence, our futuristically sustainable reinterpretation of the North American vernacular pit house. Much of the sustainable technology developed and explored at the Cascading Creek House are being applied and further investigated at Red Bluff. Superficially, the acute and obtuse angular formal language of Red Bluff seems to be a departure from the orthogonal rigor of Cascading Creek, but the house continues the theme of examining through spatial form and tectonics the role of architecture as mediator between human interaction and nature. As in Cascading Creek, Red Bluff presents an unassuming “facade” towards the street, quite literally burying the architecture under landscape. The cantilevering roofs of Cascading Creek towards the hill country below are echoed at Red Bluff by the cantilevered shards of greenery pointing towards the bend of the Colorado River downhill of the wooded site.
E-Mail Interview conducted by John Hill
Higgins Lake House
2011
Higgins Lake, Michigan
Client
Private
Architect
Jeff Jordan Architects
Jersey City
Design Principal
Jeff Jordan
Contractor
RL Zuzula Builders Inc. - Bob Zuzula
Windows
Andersen
Plumbing fixtures
Kohler
Rainscren siding
Western red cedar
Ceiling fans
Big Ass Fans
Site Area
31,500 SF
Building Area
4,800 SF
Photos
Jeff Garland Photography





