Hinman Research Building
Hinman Research Building
11. March 2013
Buildings housing architecture schools can have a large impact on the future architects studying inside them. The decision to renovate rather than build anew can instill students with respect for existing buildings as well as an appreciation for the juxtaposition between old and new. The Georgia Tech College of Architecture renovated the 1939 Hinman Research Building to create an open and flexible space for its annex. Architect Nader Tehrani answered some questions about the project.
Exterior of Hinman Building
Can you describe your design process for the building?
It was an intensive collaboration with the clients as well as our local partnership in Georgia.
View of "crib" from studio space
What were the circumstances of receiving the commission for this project?
A response to an RFP (Request for Proposal).
View of studio below and "crib" above
How does the completed building compare to the project as designed? Were there any dramatic changes between the two and/or lessons learned during construction?
The project was designed as a piece of infrastructure like a piece of engineering—and the final outcome holds to that principal very closely.
View of spiral stair
How does the building compare to other projects in your office, be it the same or other building types?
Its focus on the interaction of design ideas with structural, mechanical, and environmental issues is more rigorous than other opportunities we have had.
Site Plan
How does the building relate to contemporary architectural trends, be it sustainability, technology, etc.?
It is responsible to current questions, but its point of departure is focused on the historic heritage of the existing building.
Exploded Axonometric
Are there any new/upcoming projects in your office that this building’s design and construction has influenced?
Yes. We have learned many lessons that are impacting our thinking on our design for The Daniels Faculty of Architecture, Landscape and Design in Toronto, Canada.
Building Sections
How would you describe the architecture of [State] and how does the building relate to it?
The Building we are adding to is the Hinman Building, a renowned piece of modern architecture by Paul Heffernan. Thus, our context was at once Georgia, the campus of Georgia Tech, and most importantly this modern gem, that set the tone and constraints for our interventions. Our operations on the Hinman building are drawn from the material palette—steel, concrete, wood—extending their logic to new uses. Also, our agenda was to repurpose, reuse, and transform the existing infrastructure of the building to give it new life: the truss, the crane, the circulation are all given new responsibilities in this revived context.
Email interview conducted by John Hill.
Email interview conducted by John Hill.
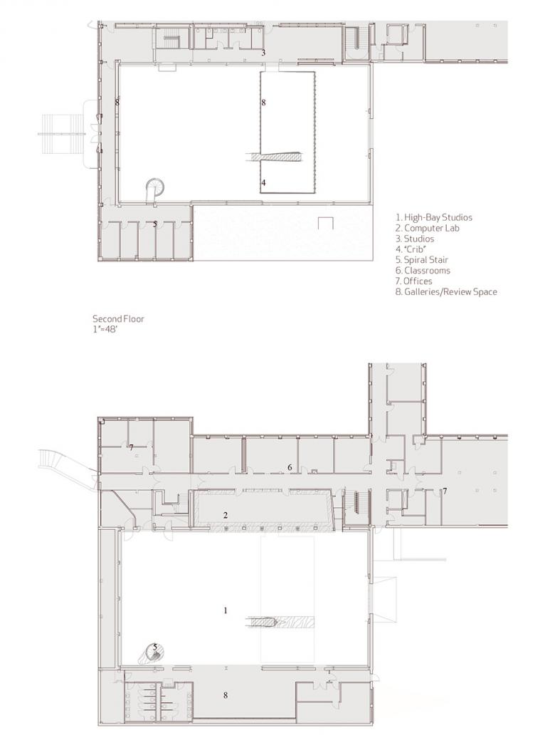
Floor Plans
Hinman Research Building
2011
Atlanta, GA
Client
Georgia Tech University
Architect
NADAAA (formerly Office dA)
Boston, MA
Lord, Aeck and Sargent
Atlanta, GA
Design Principals
Nader Tehrani (NADAAA/Office dA), Jack Plyburn (Lord, Aeck and Sargent)
Project Architect
Karen Gravel, AIA, LEED AP (Lord, Aeck and Sargent)
Project Managers
John Kisner, AIA LEED AP (Lord, Aeck and Sargent), Daniel Gallagher (NADAAA/Office dA)
Project Coordinator
Tom Beresford, LEED AP (NADAAA/Office dA)
Project Team
Uzun & Case Engineers
MEP/FP Engineer
EMC Engineers
Construction Manager
The Beck Group
Building Area
35,826 sf
Photographs
Jonathan Hillyer
Drawings
NADAAA and Lord, Aeck and Sargent
Boston, MA
Lord, Aeck and Sargent
Atlanta, GA
Design Principals
Nader Tehrani (NADAAA/Office dA), Jack Plyburn (Lord, Aeck and Sargent)
Project Architect
Karen Gravel, AIA, LEED AP (Lord, Aeck and Sargent)
Project Managers
John Kisner, AIA LEED AP (Lord, Aeck and Sargent), Daniel Gallagher (NADAAA/Office dA)
Project Coordinator
Tom Beresford, LEED AP (NADAAA/Office dA)
Project Team
Lord, Aeck & Sargent: Jihan Stanford, LEED AP; Tom Butler, LEED AP BD+C: Claire Oviatt, IIDA: Jim Nicolow, AIA, LEED AP: Cobb Quarles; Seth Hammonds, LEED AP; Benjamin Scott, LEED AP; Ben Ridderbos, LEED AP
NADAAA/Office dA: Jeff Dee, Arthur Chang, Remon Alberts, Brandon Clifford, Jonathan Palazzolo, John Houser, Sarah Dunbar, Samuel Ray Jacobson, Pepe Giner Ivars, Harry Lowd, Marzouq A. Al-Mutairi, Yousif J. Alsaleem
Structural EngineerUzun & Case Engineers
MEP/FP Engineer
EMC Engineers
Civil Engineer
Haines Gipson & Associates
Acoustics
The Sextant Group
Cable Mesh Systems
Officium Design Engineering
The Beck Group
Concrete Repair and Rehabilitation
Wiss, Janney, Elstner Associates
35,826 sf
Photographs
Jonathan Hillyer
Drawings
NADAAA and Lord, Aeck and Sargent







