Hotel Americano
Hotel Americano
In 2009 the first section of the High Line's transformation from a railway viaduct to an elevated park opened to the public, followed two years later by the second section north of 23rd Street. This 21st century park that threads its way through and alongside old industrial buildings has spurred a lot of development (thanks in part to the city's rezoning of the area), much of it high profile buildings designed by well known architects. One such building alongside section two is the Hotel Americano by Enrique Norten / TEN Arquitectos. The building presents a simple mesh facade to passersby on the park, an elevation that is alternately flat, shimmering, or translucent, depending on the weather and time of day. The architect answered some questions about the recently completed project.
Can you describe your design process for the building?
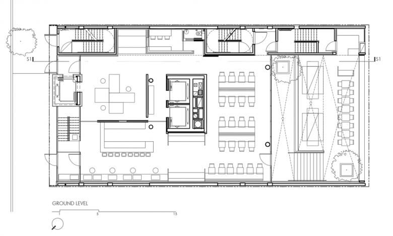
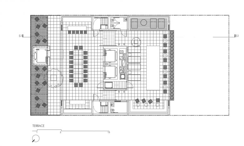
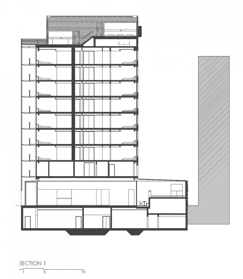
The building’s form responds both to the needs of the hotel program and to strict zoning regulations that define the street wall and height in a way that creates a simple, iconic image for the hotel. The glass elevator at the front of the building is providing direct access to the roof terrace and cellar level bars without people having to go through the hotel, and on such a small site the only way to introduce this without reducing space for the rooms was to push it outside the building. Placing the stainless steel mesh screen outside of this then maintains the street wall while also providing another layer of privacy for the hotel guests and a strong, iconic façade for the building. At night, through this screen, the façade is animated by lights from the hotel and the movement of the elevator through the glass block shaft.
Beginning with the façade, varying layers of transparency and the relationship between the public and private are a constant driver of the design throughout the building, and through this means the buildings elements and uses are clearly articulated. The stainless steel mesh façade and elemental material palate are also a natural fit in a neighborhood whose character is in transition, but which is still at its core very industrial.
How does the completed building compare to the project as designed? Were there any dramatic changes between the two and/or lessons learned during construction?
The completed building is very true to the project as designed. There were changes made throughout the process to materials and interior layouts in response to programmatic requirements from the client and cost constraints in construction, but fundamentally the intent, as outlined above, remained.
How does the building compare to other projects in your office, be it the same or other building types?
Hotel Americano is at a different scale than many of the projects that have been done in the NY office. The Carroll Street [residential project in Brooklyn] is of a similar scale, though a very different program and site. Where it is similar is in the complexity and density of program, in this case contained in a very small site.
Are there any new/upcoming projects in your office that this building’s design and construction has influenced?
Every building we do in this office is designed specific to program and site, and the program requirements of this building were very specific to the clients desires and building type.
Email interview conducted by John Hill
Hotel Americano
2011
New York, NY
Client
Grupo Habita
Architect
TEN Arquitectos / Enrique Norten
New York, NY / Mexico City
Design Principal
Enrique Norten
Project Architect
Hale Everets
Project Manager
Chris Glass
Project Team
David Hecht
Kavita Ahuja
Simon Willett
Structural Engineer
Gilsanz Murray Steficek
MEP/FP Engineer
Mehandes Engineering, P.C.
Lighting Designer
DELUX
Interior Designer
MCH Amaud Montigny
General Contractor
Foundations Group
Civil Engineer
Hirani Engineering and Land Surveying, P.C.
Exterior
(metal screen cladding)
Cambridge Architectural
Roofing
(precast concrete panels with glass pavers)
Circle Redmont
Interior
(finishes, black and white art glass)
Hunda Glass Corp
Woodwork
(bed platforms and closets)
Propylaea Millwork
Site Area
4,938 sf
Building Area
24,667 sf





