House in Carapicuiba

House in Carapicuiba

28. January 2010

Housing
2003-2008

Carapicuíba
São Paulo, Brasil

Architecture
Grupo SP
Angelo Bucci
Alvaro Puntoni

Landscaping
Klara Kaiser

Photos: Nelson Kon

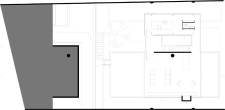
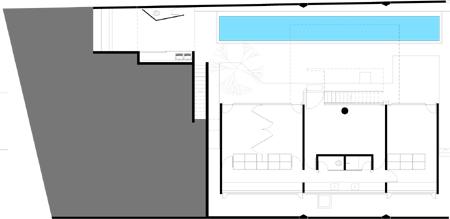
The most striking feature of the site where the house is built is a six-meter drop separating the street from a lower level of the land, next to a small forest on the opposite side. The lower level of the terrain can barely be seen from the street because of the steep drop.

The program includes a house and office. Although the two functions share the same space, they are clearly separated. The house was built on two levels situated between the street and the lower level. Its structure includes the limits of the land, defining the lower space, where the room overlooking the patios next to the forest and the stream is located. The street level was preserved and expanded through a small entrance courtyard, on the same level that extends over the roof of the house through a steel bridge, the only entrance to the building. Visitors enter the house or office through paths that explore the spatial possibilities of this topographical situation.

A concrete staircase leads to a terrace that provides a view of the house on the plot of land, below street level, and leads into the lounge and kitchen. The spaces blend in with the trees, small valley, gardens and swimming pool located at the level of the terrain. The house incorporates the outdoors: a sliding glass door opens the lounge onto the terrace, creating a single space. The bedrooms and lower courtyard are also linked to the lower level. The kitchen is connected to the main structure, making the lower spaces available for their different uses.

The office, consisting of two flagstones structured by a large top beam, supported by two pillars, is the only volume visible from the street. The house was designed on the base of the topography and landscape. The finishes are simple: white concrete floors and white  Portuguese mosaic.

Level -2 plan
Level -1 plan
Section A
Section B

Alvaro Puntoni (São Paulo, 1965) graduated from the Architecture Faculty of the University of São Paulo - FAUUSP (1987), where he also obtained an M.A. (1999) and a Ph.D. (2005). Since 1990, he has been a professor at Anhembi Morumbi University- FAU USP and Escola da Cidade. He has worked with Angelo Bucci since 1987 and in 2004, they founded Grupo SP.
 
Ângelo Bucci (São Paulo, 1962) graduated from the Architecture Faculty at the University of São Paulo - FAUUSP (1988), where he also obtained an M.A. (1999) and a Ph.D. (2006), and has taught there since 1990. He has worked with Alvaro Puntoni since 1987 and in 2004, founded Grupo SP.

Housing
2003-2008

Carapicuíba
São Paulo, Brasil

Architecture
Grupo SP
Angelo Bucci
Alvaro Puntoni

Landscaping
Klara Kaiser

Related articles 

Featured Project 

Atelier KI JUN KIM

House by the Wall

Other articles in this category