House In Imbe

House In Imbe

1. March 2014

House In Imbe
2012
Okayama

Client
Koichiro Isezaki

Architects
t.teshima architect & associates

Design Principal
Tamotsu Teshima

Structural Engineer
Noriaki Yamada

Contractor
Arai Kenchiku

Constr. Manager
Shogo Yasuno

Bath
Tform (Kaldewei)

Toilet
TOTO

Hardware
HORI, BEST

Lighting fixture
ENDO

Site Area
183.92㎡

Building Area
94.56㎡

Total Floor Area
197.91㎡

Photo
Masao Nishikawa

Exterior viewed from road 
Exterior viewed from road 

Please give us an overview of the project.

This is a studio and residence for a ceramic artist whose creative work blends completely into his daily live. For that reason it was critical that the house not only be comfortable, but that it also provide inspiration and pleasure to the artist and his family. One of the major themes I was trying to actualize here was the indivisibility of creation and everyday life.

In terms of the structure, the first floor where the studio is located is concrete, while the residential second and third floors are wood. The plan is very simple, with the boundary between various rooms defined loosely via lines inlaid in the flooring. Light from corridors on the periphery of the structure fills the interior. On the first floor, we experimented with a new kind of exposed concrete finish by blasting the concrete with a pressure washer after removing the formwork. In the residential portion of the house, rustic materials like plaster and oak pull the spaces together. Wooden reflectors installed in the long skylights running east to west along the roof send natural light bouncing off the vaulted ceiling at the building’s apex, communicating a sense of the passage of time and seasons. The exterior is finished with charred cedar cladding, a traditional building material in Okayama’s Setouchi region that helps the building blend in with its surroundings.

Approach

What was most important to you during the design process?

First, the surrounding landscape. Second, the sequence of processes involved in ceramics, from the storage and preparation of materials to the formation and storage of finished pieces. And third, ensuring that the client was able to both work and live comfortably.  

Corridor

What challenges did you face with this project, and how did you respond to them?

There were no prescribed methods for acheiving the washed finish we wanted on the concrete walls, so we used a process of trial and error to arrive at a tentative solution.

Ceramics studio
Corridor in residential area

What did you learn from this project? What will you take from it to future work?

I realized once again that while experimentation is necessary whenever we take on the challenge of trying new things, it’s critical to first have a strong foundation of trust in place between the architect, client, and contractor. 

Living room viewed from kitchen
Living and dining room

How does this project fit into current architectural trends such as environmental and social sustainability or technical advances? 

Within our current globalized society it’s become common to use construction materials from all over the world, but I believe that just like we talk about “food mileage” in the agriculture sector, we need to think about localizing production of architecture as well. The ideal would be to use locally-produced materials and labor to create community-level cycles of work, resources, and money. That sort of production process leads to the creation of unified, attractive landscapes that the community feels connected to. I thought a lot about those ideas while working on this project.

Third floor studio

What is the societal role of the architect?

To create examples of appropriate design and genuine value. 

Wall detail
1st Floor plan 
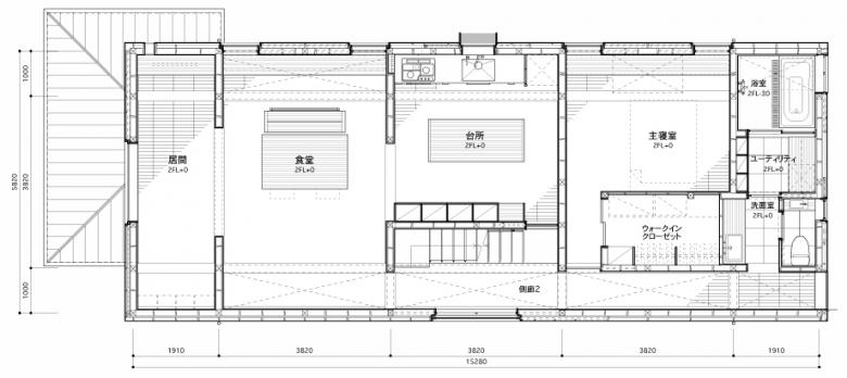
2nd Floor plan 
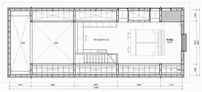
3rd Floor plan 
Section 


E-mail interview by Yuna Yagi (translated from Japanese) 

House In Imbe
2012
Okayama

Client
Koichiro Isezaki

Architects
t.teshima architect & associates

Design Principal
Tamotsu Teshima

Structural Engineer
Noriaki Yamada

Contractor
Arai Kenchiku

Constr. Manager
Shogo Yasuno

Bath
Tform (Kaldewei)

Toilet
TOTO

Hardware
HORI, BEST

Lighting fixture
ENDO

Site Area
183.92㎡

Building Area
94.56㎡

Total Floor Area
197.91㎡

Photo
Masao Nishikawa

Related articles 

Other articles in this category