House in Quelfes
House in Quelfes
For years Portugal has captured the attention of the international architecture scene, but has also proven to be a breeding ground for architects beyond the great masters such as Fernando Távora, Álvaro Siza and Eduardo Souto de Moura. The famous Porto School has given way to a new generation of talented architects from other parts of the country, including the Aires Mateus brothers from Lisbon (2G 28, 2003) or the architect Paulo David from Madeira (2G 47, 2008). And from an even more recent generation comes another Lisboan, Ricardo Bak Gordon, who combines the best architecture of his own country with an awareness of what is happening abroad.
His works range from a large number of single-family homes that put great emphasis on domestic comfort – for example, the houses in Quelfes and Pousos, the two houses in Casa Queimada, or the two in Santa Isabel, Lisbon – to the magnificent series of renovations of various schools in Lisbon and Porto, and unique projects such as the residence of the Portuguese Embassy in Brasilia, the mill in Oliveira da Serra (Ferreira do Alentejo), Albarquel Park (Setúbal) and the FACIM waterfront in Maputo (Mozambique).
In this publication, Ricardo Bak Gordon’s works and projects are accompanied by texts from the architect himself, the critic Ricardo Carvalho and Britain's Jonathan Sergison (of Sergison Bates architects, 2G 34, 2005). In the Nexus section, Diogo Seizas Lopez summarises an interview with Bak Gordon on the architect's main interests.
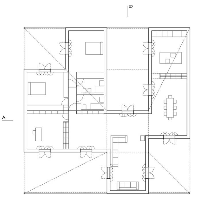
The site is almost flat and is surrounded by a landscape typical of the south, with drought-tolerant trees and various species of cactus, so the building appears to be very artificial. It is located at the centre of the property on a 20 x 20 m platform.
On this base one continuous wall is built, defining the interiors as well as the exterior spaces. Interior spaces are separated by timber elements that are painted to give great prominence.
Four external terraces, protected from the sun by a structure, complete the geometry of the roof and extend the house’s living spaces, providing a choice of views and temperature throughout the day. To intensify the relationship between interior and exterior all voids open onto terraces, and at the edge of the platform the walls are completely blank.
The deformed geometric shape of the roof emphasizes the centralized character of the building and generates a strong spatial dynamic. Working with the different materials of the form, although easily recognized, became one of the strongest generators of the project.
House in Quelfes
2007
Quelfes, Olhão
Architects
Ricardo Bak Gordon
Lisbon
Collaborators
Luís Pedro Pinto
Nuno Matos
Walter Perdigão
Technical consultants
Proença e Neves Associados
Built surface
220 m2
Photographs
Leonardo Finotti




