Houston Police Department South Gessner Division
Houston Police Department South Gessner Division
When a city opts to utilize prototype designs for public buildings, the results are often cheap and ugly; repurposed trailers or other modular units come to mind. But Houston, Texas has a recipe for good civic architecture in the first of what could be many police stations designed by Roth Sheppard Architects. In their hands, prototype equals simple, sustainable, layered, and inexpensive, but hardly cheap, and far from ugly. The architects answered some questions about the project.
What were the circumstances of receiving the commission for this project?
We responsed to a Request for Proposals (RFP).
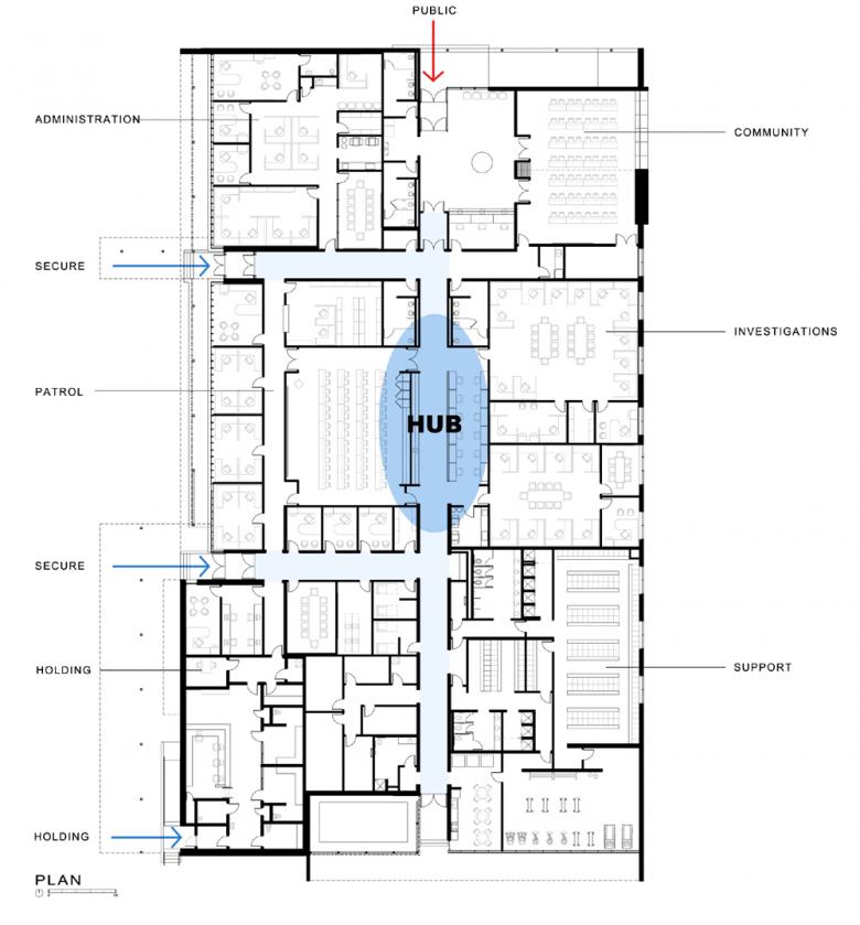
Can you describe your design process for the building?
The new, single-story 29,000-square-foot Fondren Police Station includes a public lobby, a large public meeting room, and patrol, investigations and locker functions. The station was designed to comply with the Leadership in Energy and Environmental Design (LEED) standards for Certified Level LEED Certification.
The City of Houston and the Houston Police Department (HPD) were seeking to redefine how the Department’s physical infrastructure is implemented through-out the City. The primary design goal was to establish an adaptable prototype that can be replicated for future stations.
How does the completed building compare to the project as designed? Were there any dramatic changes between the two and/or lessons learned during construction?
Initially, the client wanted to use prefab modular trailers to meet their budget, square footage and construction schedule needs. We provided a matrix evaluating several different construction methodologies and systems, eventually convincing the client to consider the alternative of a site cast tilt-up construction system and a pre-fabricated
steel structure that could be easily configured to provide the interior functional, volumetric and daylighting needs appropriate to a contemporary police facility.
How does the building relate to contemporary architectural trends, be it sustainability, technology, etc.?
The use of off-the-shelf common construction methodologies and materials such as resin-based composite wood decking as sun shading, tilt-up concrete construction and preengineered aluminum canopy systems were incorporated into the project to meet the strict functional and maintenance requirements of HPD while also providing opportunities to visually communicate the core philosophy of the division —“order through law, justice with mercy".
Email interview conducted by John Hill.
Houston Police Department South Gessner Division
2011
Houston, TX
Client
City of Houston, Houston Police Department
Architect
Roth Sheppard Architects
Denver, CO
Design Principal
Jeff Sheppard, AIA
Project Architect
Kelly Smith, AIA, LEED AP
Associate Architect/LEED
RdlR Architects
Houston, TX
Principal
Lorie Westrick, AIA, LEED AP
Project Manager
Daniel Ortiz, LEED AP
Structural Engineer
Ingenium
MEP/FP Engineer
Henderson Engineers
Landscape Architect
Asakura Robinson
Civil Engineer
Kuo and Associates
Cost Estimating
Gilbane
Site Area
119,615 sf
Building Area
29,018 sf





