In|Out
A series of one-story volumes covered in a varied material palette gives this one-story house near the Pacific Ocean its distinct, village-like character. The design takes advantage of its natural setting through large openings and numerous terraces. The architects at Wnuk Spurlock answered a few questions about the project.
Please provide an overview of the project.
This residence is situated along the mountainous coastline north of San Francisco in Marin County, California and sited to take advantage of spectacular views towards the Pacific Ocean and surrounding state park.
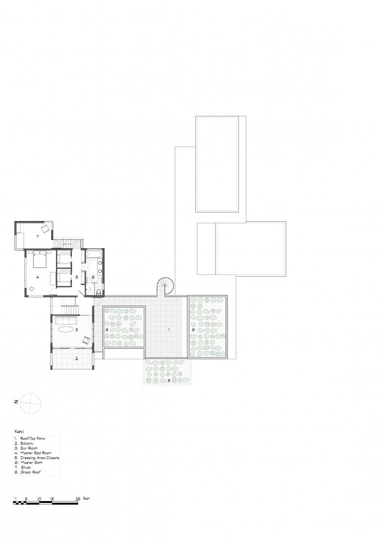
Organized about a central courtyard, the home is reminiscent of a small clustered village. The courtyard divides the residence into two sections: one for the family and one for a guest wing and pool house. The use of large operable windows, integral outdoor spaces, and indigenous plants diminish the boundary between interior and exterior spaces. Zinc and copper panels on the exterior identify spatial functions within the residence and blend into the natural environment.
What are the main ideas and inspirations influencing the design of the building?
The main ideas and inspirations were based on topography, orientation, views, and zoning restrictions. Organized around a central courtyard, the home was configured to address the topography, orientation and views of the Pacific Ocean and the adjacent state park that is reminiscent of a small clustered village.
How does the design respond to the unique qualities of the site?
Responding to natural topography and strict zoning height limitations, the design features a series of one-story volumes that step up the mountainside. At the highest point the first story recedes into the hillside, reducing the scale of the building while providing for a second story master suite with expansive views.
Was the project influenced by any trends in energy-conservation, construction, or design?
Sustainable design was important in the overall design. Vegetative roofs filled with regional plant material reduce storm water runoff and help the building blend into the natural environment. Pervious paving at the driveway and numerous outdoor terraces also aid in reducing storm water runoff. The building is energy efficient, using solar systems for both heating and hot water systems. An efficient, single-room width design and placement of large operable windows on opposing sides of the structure take advantage of natural breezes off the ocean, allowing air to pass through the building, providing natural cooling and eliminating the need
for mechanical air conditioning systems.
What products or materials have contributed to the success of the completed building?
Sustainable products are used throughout the residence: concrete and bamboo flooring, high- efficiency plumbing fixtures are used in the interior, and recyclable metal studs and steel for structure. The exterior is sheathed in a combination of natural and recycled materials. Fiber cement panels in natural hues, and metal panels of copper patina and bronze- coated zinc help identify spatial functions within the residence and blend into the natural environment.
Email interview conducted by John Hill.
In|Out
Stinson Beach, CaliforniaClient
Withheld
Architect
WNUK SPURLOCK Architecture
Washington, DC
Design Principal
Joseph E. Wnuk, AIA, LEED AP
Project Architect
Steven L. Spurlock, FAIA, LEED AP
Project Team
John Richards, LEED AP BD + C, Niko Tombras, LEED AP BD + C
Architect of Record
William Kirsch & Associates
Structural Engineer
Andersson Woodrow Structural & Architectural Engineering
MEP/FP Engineer
Sustainable Design and Project Management
Contractor
Allen Construction
Construction Manager
Hayden Collective
Civil Engineer
AYS Engineering Group, Inc.
Land Surveyor
L.A. Stevens and Associates, Inc.
Dining Room Table
Madera Furniture
Bathroom Cabinets
Robern
Bathroom Fittings
Dornbracht, Kohler
Cooktop
Miele
Dishwasher
Fleetwood, Mohawk Industries
Exterior Siding
James Hardie for the fiber cement other siding copper
Flooring (ceramic tile, stone, or concrete)
Heath Ceramics, Ergon, Architectural Ceramics
Flooring (wood)
Morning Star Bamboo Flooring
Garage doors
Bryce Parker Company
Kitchen fittings (faucets, etc.)
Grohe
Kitchen fixtures (sinks, etc.)
Franke
Lighting fixtures
Juno, Lightolier
Sustainable Features
Vegetative Roof Assemblies: LiveRoof; Permeable Unit Paving: Uni-Group USA; Bamboo Flooring; Energy Star Appliances; High Efficiency Plumbing Fixtures
Site Area
22,784 sf
Building Area
4,141 sf
Photographs
Bruce Damonte
Drawings
WNUK SPURLOCK Architecture














