In praise of the slab
In praise of the slab
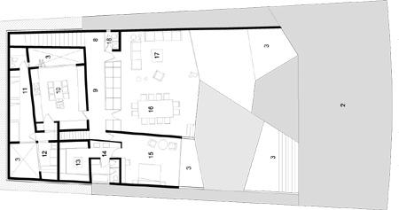
A large fragmented covering made of lightweight concrete articulates the spaces, lending the house its particular identity. The project is built on a sloped terrain, in an area where there is extreme heat during most of the year and temperatures below zero during the cold seasons. Taking these factors into consideration, we decided to bury most of the house.
The interior is divided in two sections linked by the continuation of the covering which accompanies the scaling of the house. A series of perforations in the roof create terraces and patios with wide vistas overlooking the city and the landscape. From the street level, the house looks like a traditional home, however, the inside reveals a complex geometry at different levels, whose language based in inclined concrete slabs resolves the covering with a single sculptural gesture.
The adopted materiality was key to the development of the project. The buried closing sector walls are made of a double layer of cement block with an air cushion in between them. The use of reticulated concrete slabs allowed for a surface without joints or variations in thickness.
Housing
Chihuahua, México
Architecture
PRODUCTORA
Carlos Bedoya
Víctor Jaime
Wonne Ickx
Abel Perles
Built surface
375 m2






