James | Swenson Civil Engineering Building
As sustainability continues to take hold in the architectural profession, the most desirable projects enable designers to express green features, making them educational devices to the clients and users. Chicago firm Ross Barney Architects has done such a thing to great effect at the University of Minnesota in Duluth. The architects answered some questions about their design of the James | Swenson Civil Engineering Building.
What were the circumstances of receiving the commission for this project?
The selection of Ross Barney Architects for this commission was procured following the State of Minnesota’s normal selection procedures. There was a public request for qualifications, a review panel shortlisted several firms and interviews were conducted. Our team was selected following this process to design the new James | Swenson Civil Engineering building.
Can you describe your design process for the building?
DESIGN PHILOSOPHY
Because Ross Barney Architects works almost exclusively in the public sector, our design process has evolved to extract the maximum value from the ideas of a sometimes large and disparate group of users. At the onset of the design process, we emphasize careful collection of data and opinion to help us make sure we are designing for true needs of the users and not the wants of individuals.
Our design studio has specific interests and concerns: we believe that well designed environments are a right not a privilege; we are dedicated to creating well crafted spaces. And we believe that sustainability is a requirement, not an option. Our clients have genuine interests in expressing their facility goals and objectives balanced by the very real need to deisgn within budget and schedule. Ease of operation and maintenance as well as first cost effectiveness is important. The best designs for any project, including the new James | Swenson Civil Engineering Building are found in the areas where these interests and concerns overlap. By working in this common area, the design can be pursued with conviction and enthusiasm by all stakeholders.
To work effectively in these common interest areas, We as the architect need to be able to listen and speak in the languages of our design partners and not just the language of architect and architecture. Communications are accomplished by empathy; empathy is developed by understanding; understanding happens by listening. This design, as with all of our designs happen by listening.
DESIGN OF THE UMD JAMES | SWENSON CIVIL ENGINEERING BUILDING
For the James | Swenson Civil Engineering building on the University of Minnesota Duluth campus, the Ross Barney Architects followed our typical process for design. Our design methodology is highly collaborative, and depended on contributions by the entire design team, and the project’s stakeholders. Key elements of the design process included partnering and consensus building. At the outset of the UMD Civil Engineering project, a team building or partnering session was held including representatives from the client, users, and A/E Team.
Design workshops and charrettes were conducted with the stakeholders and consultants to review and validate the goals and objectives of the project. Charrettes were also working sessions that encouraged all participants to “brainstorm” ideas for solutions to problems. The charettes used graphic materials to help people “visualize” opportunities. The product from the charettes were the “big” ideas for solving specific goals.
We strived to produce concepts that were holistic and practical with the “fewest moving parts” for operational simplicity. This process aided in producing a continuum of possible design approaches that ranged from the most conservative or obvious to the most innovative or unusual. By listening, considering, analyzing and synthesizing data a maximum number of viable alternates were identified. With the UMD stakeholders, the team decided where on the continuum the most likely answer for this place and time. With a commitment to the selected alternative, the design excellence was much easier to accomplish. Workshops and meetings vared in style and format, and included:
- Design workshops that allowed broad participation in addressing design issues at scales large and small
- Alternatives workshops that interactively engaged in evaluating options and making choices by consensus
- Progress reports that kept interested parties up-to-date and allowed extensive feedback
- Design presentations that secured general approval and support for the chosen plan
Analysis and design are interactive and iterative. As alternatives presented themselves they were tested against the objectives and goals identified in the facility program. In this way, the options incorporated the best ideas from the entire design team.
How does the completed building compare to the project as designed? Were there any dramatic changes between the two and/or lessons learned during construction?
The new James | Swenson Civil Engineering Building was built as it was designed. The only exception to this was the design and final execution of the French drain stormwater management system. The system consists of a gabion mattress installation that is used to cover underground water storage pipes for stormwater retention. As construction of the French drain progressed, it became apparent that there were deficiencies in the construction of the gabion mattress cover that could not be easily or economically remediated. At the client's request, the French drain cover was removed and redesigned by the design team. The redesigned installation maintains the stormwater retention capabilities of the original system while providing the ancillary benefit of additional site area for native plantings.
PROGRAM/DESIGN/CONSTRUCTION
In designing the Civil Engineering Building at the University of Minnesota Duluth, the project team was charged with the task of incorporating the numerous programmatic and equipment requirements in order to enhance the educational function of the building. The program called for large pieces of equipment, including a strong wall, gantry cranes, and a hydraulic flume. In addition to these items, the design developed to incorporate three large 36' x 24' operable doors to facilitate the movement of the cranes through the building, and a French drain system to manage stormwater on site.
Since the Civil Engineering program was new to the University, key stakeholders such as the program head and professors were not yet in place during the design process to provide their unique expertise and input. As a result, the parameters for many of the large pieces of equipment were not finalized until the program personnel were brought on board during the construction phase. To accomplish this, the design evolved to incorporate the major programmatic and equipment requirements while providing flexibility for future refinements. The design architect, local architect of record, engineers, University, and contractor worked closely to coordinate these elements during the design phase and to incorporate the final requirements during construction.
The program requirements for both the structural and hydraulics laboratories included two 15-ton gantry cranes to move heavy experiments in and out of the building and between these spaces. To maximize the efficiency of crane movement, the two laboratories and exterior loading dock were aligned in plan. This allowed the two cranes to move in a straight run on a single set of tracks between the two laboratories and directly to the loading dock. The operation of the gantry cranes required a high level of construction precision in order to ensure access through the spaces. Since the selection of the gantry cranes was finalized by the client midway through the construction process, the integration of the cranes required a concerted effort by the project team to make small adjustments to the original design as dictated by the final equipment parameters. This included the final operable door sizes and structural requirements for the doors. The electrical motors and structural support members for the exterior bi-fold door were redesigned during construction to reconcile incorrect information provided by the manufacturer during design that reduced the vertical clearance of the door and prevented movement of the cranes to the exterior. Since the precast concrete panels enclosing the structural laboratory were already in place, the structural engineer was required to develop a solution that maintained the clearance requirements for the cranes without altering the design intent.
The program for the structural laboratory also included a strong wall and strong floor system. These systems enable students to test the structural capacity of various components by attaching the items to nodes within the wall and floor. These nodes are equipped with sensors that record the compressive, tensile, and shear capacities of the components. The operational requirements of these systems, along with changes in their requirements, again required coordination between the design and construction teams to incorporate the systems into the building.
How does the building compare to other projects in your office, be it the same or other building types?
The James | Swenson Civil Engineering presented our firm with the opportunity to design and construct a building specifically for a special use within a higher education environment. The majority of Ross Barney Architect’s practice is for public buildings for educational clients, governmental agencies, schools, libraries and transportation projects.
How does the building relate to contemporary architectural trends, be it sustainability, technology, etc.?
ACHIEVING A LEED CERTIFIED BUILDING
In addition to the challenges presented by the programmatic and equipment requirements of the building, the University requested that the project team design and construct a building that would achieve a LEED Silver certification. During design and construction, the team challenged themselves to exceed the University's goals and to provide the most sustainable building possible for the client. Prior to implementation, all proposed changes to the project were evaluated based on their potential impact to the sustainable project goals. These efforts resulted in the building exceeding the original goal of Silver and achieving a LEED Gold certification.
BUILDING AS A TEACHING TOOL
There were many unique features of the UMD Swenson Civil Engineering building, mostly due to its end use as a civil engineering University building. The building materials were selected to showcase the beauty of locally available raw, natural, unaltered materials that not only provide the basis for a sustainable building product, but also serve as a teaching tool for the students within the Civil Engineering Department. These materials include Corten steel, pre-cast and poured-in-place concrete, CMU, reclaimed local taconite rocks, and reclaimed wood. Through highlighting the properties of the materials in their natural state, very few ‘finish’ materials are needed or used on the project. One key design decision was to use natural Corten steel as the building cladding and in interior spaces, rather than the specified pre-weathered Corten steel. This change resulted in the building staying true to its core concept of natural materials and saved the Owner a significant amount of money. The natural Corten steel weathered to the desired patina within a matter of months, and the interior Corten steel retains its original appearance, furthering the education of the properties of this material.
Designed to display the building systems as a pedagogical tool, the building showcases the structural, and mechanical systems as well as stormwater management techniques. The building acts as a working classroom for the students using the space. Structurally, the building utilizes precast concrete walls, precast hollowcore floor slabs, and steel. The puzzle piece precast walls of the structural lab educate that precast can be formed into any shape, while still forming together in a unique pattern offering slot windows throughout the finished concrete box. The south wall of the space retains the exterior tilt-up braces and kickers that are used as temporary supports during the construction process to feature the process of this construction.
Are there any new/upcoming projects in your office that this building’s design and construction has influenced?
Throughout the course of our practice, Ross Barney Architects have capitalized on lessons learned on previous projects and have applied that knowledge to subsequent projects. Our building designs benefit from those that have been constructed and proven to be successful details, systems and materials.
Prior to the completion of the UMD James | Swenson Civil Engineering building, our firm completed design of a LEED Platinum Synagogue. For the Synagogue project, our team designed integrated systems and sustainable features that have lead to further explorations for other projects, including the UMD Civil Engineering. These features included:
-Sustainable materials research and design
-Demolition rubble used to create “gabion” walls
-Reclaimed materials repurposed as cladding, construction site fill
-Recycled content building materials including fly ask concrete
-Rapidly renewable materials for cabinets, and other furnishings and fixtures and site improvements
-Regionally manufactured materials
-Use of displacement ventilation systems
-Daylight
E-mail interview conducted by John Hill
HVAC SYSTEMS
In designing the building HVAC systems, the unique requirements of each space were taken into account in order to provide the most efficient and cost-effective solution. The second floor houses offices and classrooms, where an underfloor air distribution system is employed. This system distributes air evenly through the spaces, while maintaining a high level of user controllability and providing flexibility for future space reconfigurations. The Hydraulics and Structure Laboratories required ceiling heights greater than 30 feet. In these areas, a thermal displacement ventilation system conditions the lower six feet of the spaces through stratification, enhancing the overall efficiency of the system. The introduction of conditioned air from below, freed the upper areas of these high-bay spaces for the incorporation of large clerestory windows and skylights. The displacement system diffusers and ducts are left exposed to view from the hydraulics lab, as well as the large central staircase and second floor above. Through the integration of architectural and mechanical systems, a modeled overall energy savings of 35% over a comparable base building was achieved.
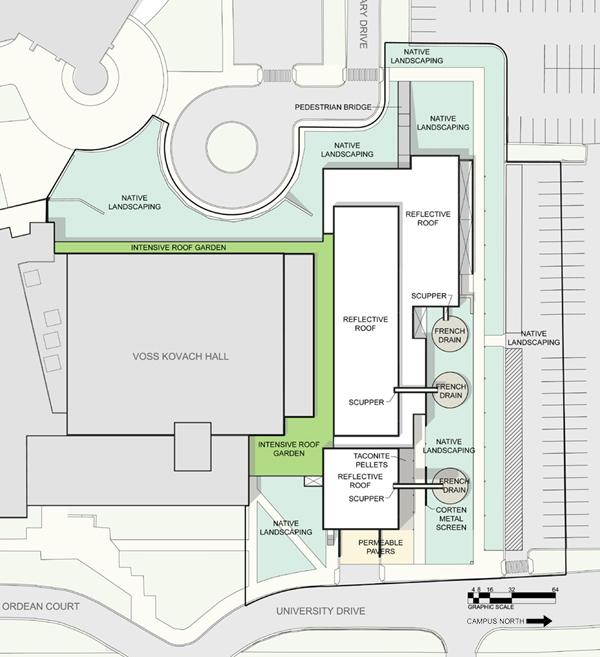
STORMWATER RETENTION
The oversized scuppers serve a functional role in preventing rainwater from overflowing the storm sewer system and causing environmental damage to the local stream beds. Water is directed from the rooftop, down the scuppers, and into a trio of above ground Corten cylinders, which distribute the water into an underground French drain. This reused greywater fills the flume in the Hydraulics Laboratory for student experiments, or gradually filters back into the hydrological system of the site. In addition to the French drain, a number of other stormwater retention strategies were employed, including; an intensive green roof over 30% of the total roof area, rain gardens with non-irrigated native plantings, and permeable pavers. Through the combination of greywater reuse and the implementation of low-flow restroom fixtures, a 56% reduction in water usage was achieved.
STRUCTURAL LABORATORY
The structural laboratory houses one of the only local strong wall and strong floor systems. Not only does the University use this as student testing facility, they also allow usage by engineering professionals in the local community that can benefit from this technology. The University has realized that this open door approach is mutually beneficial, by bringing in local professionals that can offer students hands on experience and growth. The new facility and civil engineering program will bridge the gap in the Duluth market on locally educated civil engineers, a dire need in a state with many infrastructure shortcomings.
James | Swenson
Civil Engineering Building
2010
Duluth, MN
Client
University of Minnesota Duluth
Architect
Ross Barney Architects
Chicago
Design Principal
Carol Ross Barney, FAIA
Project Architect
Kimberley Patten, AIA, LEED AP
Project Manager
Michael Ross, AIA, LEED AP
Project Team
Jonathan Graves, LEED AP
Associate Architect
Stanius Johnson Architects
Structural Engineer
MBJ Consulting Structural Engineers
MEP/FP Engineer
Dunham Engineering
Landscape Architect
Oslund and Associates
Interior Designer
Ross Barney Architects
Contractor
Stahl Construction
Civil Engineering
MSA Professional Services, Inc.
Site Area
90,285 SF
Building Area
35,300 SF
Photos
Kate Joyce Studios









