Jobie L. Martin Classroom Building, Hinds Community College

Jobie L. Martin Classroom Building, Hinds Community College

17. June 2013

Jobie L. Martin Classroom Building, Hinds Community College
2012

Jackson, Mississippi

Client
Hinds Community College/State of Mississippi

Architect

Duvall Decker Architects, P.A.
Jackson, MS

Design Principals
Anne Marie Decker, AIA and Roy T. Decker, AIA

Project Architect

Brett G. Cupples, AIA

Project Team
Ryan Hansen, Associate: Patrick Jackson, Assoc. AIA; Jennifer Burke Jackson, Assoc. AIA, LEED AP

Structural Engineer
Structural Engineering Associates, LLC
 
MEP/FP Engineer
Atherton Consulting Engineers and The Power Source, LLC

Interior Designer
Anne Marie Decker, AIA
 
Contractor
Flagstar Construction Co., Inc.

Zinc Roof and Wall Panels
Architectural Building Components (now MBCI)
 
Ground Face Masonry
Division 2-4/Tupelo Concrete Products

Lighting Controls
Hubbell Lighting Controls


Curtain Wall
YKK AP America, Inc.

Site Area
1 acre

Built Area
18,800 sf

Drawings
Duvall Decker Architects

South façade 

What were the circumstances of receiving the commission for this project?

In 2007, Hinds Community College, through the State of Mississippi, issued a RFQ for the project. At the time, we knew the College was in need of an academic building on one of their seven campuses, but knew little about the program. We gathered our team and submitted our qualifications. We received the commission after a short-list and interview process.

Laboratory with north-facing curtain wall 

Can you describe your design process for the building?

The College administration was adapting to the success of its innovative program model at this satellite campus, the smallest and fastest growing campus in the system. Classes are held day and evening accommodating a non-traditional and transient student community in a low-income area. Daycare is provided near the site to avoid this common barrier to higher education. Every space is utilized most of the time, so the planning process was fast and functional. Planning distilled to three primary goals: accommodate the functional program; prepare for campus growth and improvement; create spaces without formal program to promote interaction and foster a campus community.

The learning environment is an equal partner in the educational process, not just the context. A love of learning develops when abstract principles and complicated phenomena come alive in our worlds. The building is an instrument for the phenomena of its place; the orientation and cycles of the sun (modulated into the south, harvested, diffused into the north), planes taking off and landing to the west, fledgling campus and neighborhood context. Individual inquiry is promoted by making all of these conditions present in the character and experience of the building in productive ways.

The building is constructed of durable, lifetime materials; zinc, high-performance curtain wall, and brick. Polished concrete, exposed steel, and ground-face masonry form a rich environment of natural material and light. The full-glass walls on the north diffuse natural light deep into each classroom and laboratory. A light harvesting system provides minimal artificial light as needed. The shape and double-shell enclosures shield the building from heat and move and vent heat and humidity out of the wall and roof sections. The design fostered efficient HVAC zoning, easy maintenance and adjustment.

View of the north façade light lens from campus 

In response to the challenge to create an equal partner in the educational process, not just a teacher’s aid, the finished design exists as an instrument for environmental phenomena and exhibits such qualities that raise individual inquiry as an example.

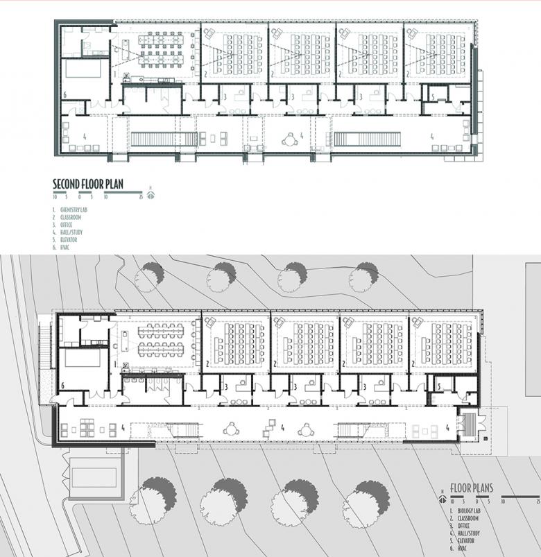
The south side of the building is a plural space for education outside of the classrooms. Hallways, stairs, lounge and study areas are intermingled on both floors overlooking the airport runway. Solar access is limited by dormers (penumbra instrument) that act both as environmental clocks and shade control devices. The classrooms are located on the north of the building. A northern light lens (curtain wall) diffuses and amplifies natural light into the classrooms. These light control and harvesting lens strategies proved to be even more effective than the models. The variety and character of light has also made this building the most desirable on campus.

Instrumental Diagram: The envelope is made of durable, lifetime materials – zinc, high-performance curtain wall, and brick

How does the building compare to other projects in your office, be it the same or other building types?

The Jobie L. Martin Classroom Building continues our inquiry and proposition that all buildings contribute to the growth of the individual, community, and culture. The opportunity to positively support growth is present with all building projects, but is particularly poignant in educational facility design, where learners, provoked by environmentally engaged spatial quality, can be immersed in an informal curriculum of individual inquiry. 

Floor plans

Are there any new/upcoming projects in your office that this building’s design and construction has influenced?

The building is planned to be very energy efficient by employing a combination of very economical passive and active strategies and systems. In our climate, we have extreme heat, humidity, and an average of 60 inches of rain per year. The Oak Ridge House and the Bennie G. Thompson Academic Center, both designed at a similar time, have learned a lesson from the Jobie L. Martin Classroom Building.

Natural light and heat diagrams

How would you describe the architecture of Mississippi and how does the building relate to it?

Clients and institutions in Mississippi often default to request familiar images of historical types without fully raising the questions about building performance that would require research towards a more responsive building. Together, Hinds Community College and Duvall Decker Architects suspended preconceptions about appearance and entered into a design-research process to realize this project. The result is an ecologically mature educational building that fits its campus and raises the expectations for future buildings.

Email interview conducted by John Hill.

Jobie L. Martin Classroom Building, Hinds Community College
2012

Jackson, Mississippi

Client
Hinds Community College/State of Mississippi

Architect

Duvall Decker Architects, P.A.
Jackson, MS

Design Principals
Anne Marie Decker, AIA and Roy T. Decker, AIA

Project Architect

Brett G. Cupples, AIA

Project Team
Ryan Hansen, Associate: Patrick Jackson, Assoc. AIA; Jennifer Burke Jackson, Assoc. AIA, LEED AP

Structural Engineer
Structural Engineering Associates, LLC
 
MEP/FP Engineer
Atherton Consulting Engineers and The Power Source, LLC

Interior Designer
Anne Marie Decker, AIA
 
Contractor
Flagstar Construction Co., Inc.

Zinc Roof and Wall Panels
Architectural Building Components (now MBCI)
 
Ground Face Masonry
Division 2-4/Tupelo Concrete Products

Lighting Controls
Hubbell Lighting Controls


Curtain Wall
YKK AP America, Inc.

Site Area
1 acre

Built Area
18,800 sf

Drawings
Duvall Decker Architects

Related articles 

Other articles in this category