Joukowsky Institute

9. April 2010

Joukowsky Institute
Brown University
2010
Providence, Rhode Island

Client
Brown University

Architect
Anmahian Winton Architects
Camebridge

Design Principal

Nick Winton, AIA
Alex Anmahian, AIA

Project Architect
Joel Lamere

Project Manager
Aaron Bruckerhoff
AIA, LEED AP

Project Team

Makoto Abe (Project Designer)
Aaron Stavert
AIA, Sabah Corso

Structural Engineer
Richmond So Engineers

MEP/FP Engineer
RDK Engineers

Landscape Architect
Hines Wasser Associates

Lighting Designer
LAM Partners

Interior Designer
Anmahian Winton Architects

Contractor
Shawmut Design & Construction

Construction Manager
Shawmut Design & Construction

Building Area

15,000 s.f.



Reading Room

Photos: Peter Vanderwarker

What were the circumstances of receiving the commission for this project?

RFQ/RFP/Interview process. AW was one of five firms considered.

2nd Floor Library

Can you describe your design process for the project?

The project is an adaptive re-use of an historic Greek Revival building - one of the oldest on the Brown University campus. We restored the exterior and completely gutted the interior of everything except the masonry walls and roof structure. Our approach was to establish a design vocabulary that would both dovetail and contrast with the existing building, as well as a new spatial order within the building that would support cross-pollination between research and teaching.

Mezzanine

How does the interior compare to other projects in your office, be it the same or other building types?

This project approach is similar to other adaptive reuse projects that we have done, and reflects a general strategy of contemporary intervention within a recognizable historic host, and the exploration of the relationship between shells and liners. And like other projects we developed a kit of parts or system of construction to support those relationships.

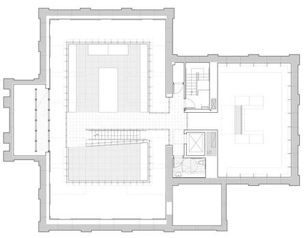
Second Floor Plan
(Drawing: Architect)

How does the project relate to contemporary architectural trends, be it sustainability, technology, etc.?

The building will be LEED Gold certified, and will exceed the University's sustainable mandates.

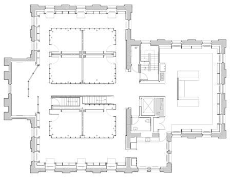
Mezzanine Floor Plan
(Drawing: Architect)
Building Section
(Drawing: Architect)

Joukowsky Institute
Brown University
2010
Providence, Rhode Island

Client
Brown University

Architect
Anmahian Winton Architects
Camebridge

Design Principal

Nick Winton, AIA
Alex Anmahian, AIA

Project Architect
Joel Lamere

Project Manager
Aaron Bruckerhoff
AIA, LEED AP

Project Team

Makoto Abe (Project Designer)
Aaron Stavert
AIA, Sabah Corso

Structural Engineer
Richmond So Engineers

MEP/FP Engineer
RDK Engineers

Landscape Architect
Hines Wasser Associates

Lighting Designer
LAM Partners

Interior Designer
Anmahian Winton Architects

Contractor
Shawmut Design & Construction

Construction Manager
Shawmut Design & Construction

Building Area

15,000 s.f.



Related articles 

Other articles in this category