Kamaishi Civic Hall TETTO
This civic hall in Kamaishi, Japan, that replaces the one destroyed in the 2011 Tohoku earthquake and tsunami offers numerous cultural venues marked by flexibility. Most striking is the glass-roofed "People's Plaza" that hosts outdoor performances and other events. Aat + makoto yokomizo architects answered a few questions about the project.
Location: Kamaishi, Iwate Prefecture
Client: Kamaishi
Architect: aat + makoto yokomizo architects, Inc.
- Chief Architect: Makoto Yokomizo
- Project Team: Kana Oshiki, Tomoki Ito, Wataru Kohno, Daichi Sato, Mitsuru Yamamori
Structural Engineer: Arup Japan
MEP/FP Engineer: Arup Japan
Lighting Designer: Izumi Okayasu Lighting Design
Interior Designer: Taiji Fujimori Atelier, Yoko Ando Design
Design Cooperation: AT/LA Takuji Aoshima
Theater Designer: Kukansouzoukenkyujyo Co.
Acoustic Designer: Nagata Acoustics
Acoustic Design Cooperation: AnS Studio
Disaster Prevention Planning: Akeno Facility Resilience Inc.
Signage: Nomura Products + Diagram
Quantity Surveyor: Futaba Quantity Surveyors Co., Ltd.
Site Area: 5,294 m2
Building Area: 4,618 m2
Total Floor Area: 6,980 m2
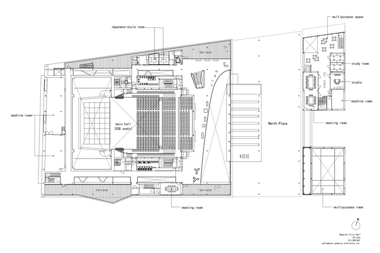
We designed this civic hall to replace the one that was destroyed in the 2011 Tohoku earthquake and tsunami, which devastated the coastal city of Kamaishi. Our proposal was selected in a 2014 design competition. The primary goal of the project was to revitalize downtown Kamaishi after the disaster. The city’s residents wanted a center for cultural activities that they could use in many different ways as they worked toward recovery. Comprised of Hall A (838 seats), Hall B (218 seats), a gallery, practice rooms, and other spaces, the civic hall has a number of distinctive features, including a People’s Plaza with a glass roof; a large performance hall finished in natural wood whose seats can be removed to create an open floor area; a smaller performance hall that faces and can be fully opened to the plaza; “pathways” leading through all areas of the building, without conventional divisions between public and behind-the-scenes spaces; and various retractable seating and large-scale cabinetry that can be rearranged so that the large and small halls, lobby, and citizen’s plaza form an 80-meter-long all-weather city plaza.
Four points were especially important. First was the inclusion of the People’s Plaza, which serves as a stage for a wide range of activities regardless of the weather, thanks to its 12-meter-high glass roof. Second was connectivity with the surrounding environment. The “pathways” that weave through the building are designed to feel like extensions of the narrow city streets outside. Third was the use of laminated veneer lumber (LVL) in the large hall. The ceiling is made from LVL panels developed by our firm, while the walls are built from LVL blocks. Both the blocks and panels are assembled in a random pattern determined using an acoustic optimization algorithm developed by our firm in collaboration with Tsukasa Takenaka at AnS Studio. Fourth was the 80-meter-long City Plaza, which can be formed by linking the stage of the large hall with the lobby, small hall, and People’s Plaza. Featuring a flat, automobile-accessible floor, the plaza can be used for many different events and festivals. This enhances the multifunctionality of the Civic Hall.
A central challenge was the application of Building Information Modeling (BIM) to the project. Although we did not use BIM during the planning stage, we did introduce it as we began to discuss construction. However, it could have been applied more effectively on the worksite. The issue for us moving forward is how to seamlessly integrate data from the planning stage through the construction and operation of facilities.
Another difficult aspect of the project was the sharing of data related to the algorithmically designed hall interior from simulations through fabrication. We were unable to adequately share this data with the company manufacturing the wood. On the other hand, we made several innovations related to materials. Due to widespread reconstruction going on in the area, construction materials were both expensive and limited. In order to express our design vision within these limitations, we utilized strategies such as leaving the ceiling substrate exposed, using styrene-foam forms for pouring concrete, and creating a finish texture from the rough side of ordinary concrete forms.
We wanted the Civic Hall to reclaim and pass on the community’s cultural DNA, to enable special events and everyday functions to coexist like they do in Japan’s Shinto shrines, and to function as a free public space full of creativity and flexibility. The community’s use of the Hall over time will determine whether or not we have succeeded, but in the two years since it opened, the Hall appears to generally be fulfilling our vision and developing in a positive direction.
Typically, behind-the-scenes areas of civic halls such as the dressing rooms and piano storage room are off-limits to the general public. In this project, however, because of the limited space resulting from the city-center location surrounded on four sides by streets as well as the client’s request for a citizen’s cultural center, we eliminated these distinctions and opened up the entire space to the public outside of special events. In addition, the small hall is a box-like structure set between the lobby and the People’s Plaza and not directly attached to the dressing rooms, piano storage room, or stage storage room. As a result, the piano has to be rolled across the lobby in full view of the public, and performers also walk across the lobby on their way to performances. This design helps to shrink the distance between spectators and stagehands, staff, and performers and make the hall a more intimate space that truly serves local residents. We hope that this architectural approach will contribute to creating a true public space that does not push culture on the community but rather creates it collaboratively with local residents.

















