Kenmore Library

Kenmore Library

28. November 2011

Kenmore Library
2011

Kenmore, Washington

Client
King County Library System

Architect
Weinstein A|U
Seattle, WA

Design Principal
Ed Weinstein, FAIA

Lead Designer/Project Architect/Project Manager
Matt Aalfs, AIA

Project Team
Joanne Wong Lee
Stephen Saude
Daniel Goodard, AIA
Jeff Boone, AIA
Dave Aynardi AIA

Structural Engineer
Magnusson Klemencic Associates

MEP/FP Engineer
WSP Flack+Kurtz

Landscape Architect
Swift Company

Lighting Designer
WSP Flack+Kurtz

Interior Designer
Weinstein A|U

Contractor
Sierra Construction Company

Construction Manager
John Barnes

Brick Veneer
Endicott manganese oxide

Wood Siding
TerraMai reclaimed teak

Interior Wood Panels
9Wood linear wood panels

Tension Rod Trusses
Macalloy Bar and Cable Systems

Casework
Paperstone (recycled paper and petroleum-free resin)

Site Area
17,000 sf

Building Area
20,000 sf (10,000-sf parking garage below 10,000-sf library)

Photos
Lara Swimmer

Partial north elevation, view from street

What were the circumstances of receiving the commission for this project

The client, King County Library System, issued a public Request For Qualifications for the design of a new library, which led to a shortlist of four firms who were each interviewed before final selection was made. The selection panel included library system administrators, librarians, and members of the local community.

Partial south elevation, view from garden

Can you describe your design process for the building?

We focused the design to address the community’s need for public space, and the library system’s need for a flexible building.

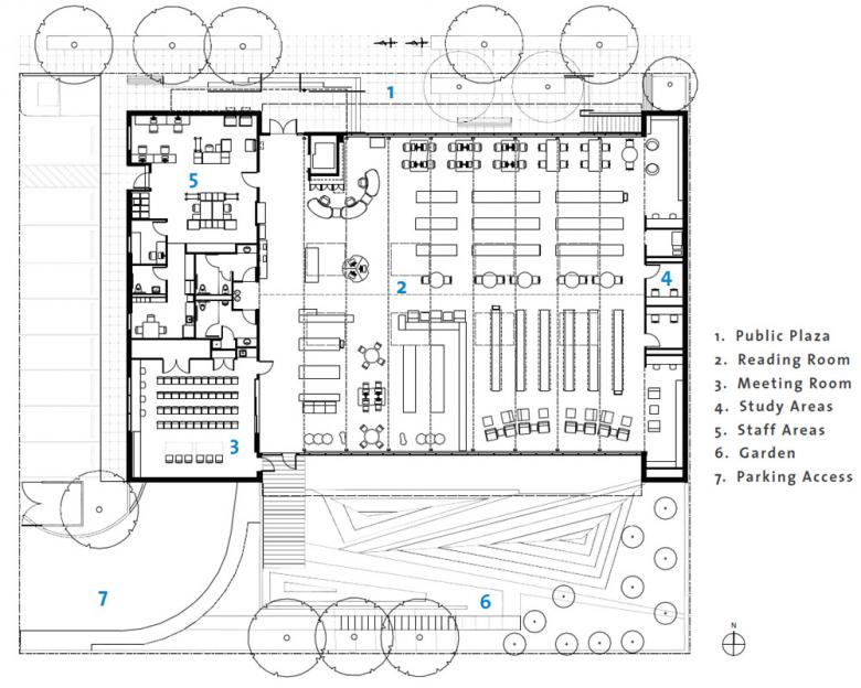
The project is located in a suburban environment that lacks public facilities and pedestrian amenities. In this context, we felt that the library should represent a recognizable public space that is inviting and welcoming to all members of the community. The building design brings the reading room to the street, a large garden space is provided, and parking is placed underground.

The client requested a building design that provides flexible and adaptable space, to accommodate future developments in library services. This led us to the use of a long-span roof structure system as a central design concept. Although lightweight tension structures are not often used in the U.S. because the high-strength steel members required are manufactured in Europe, we felt that a lightweight, delicate, and exposed tension rod roof structure system would complement the open floor plan and the daylighting design strategies that we proposed. In the resulting large space without interior partitions, the use of a raised floor system for distribution of conditioned air, power, and data, provides extremely flexible infrastructure to support reconfiguration of the space as services and uses evolve over time.

The extensive use of daylighting was also a central design strategy. A large-scale physical model was built during schematic design, which was used for thorough daylighting analysis (in consultation with the Integrated Design Lab, a building design research center at the University of Washington). As a result, the library reading room is fully daylit, with abundant and indirect natural light throughout the space. Electric lighting output is calibrated to the amount of daylight present, using a digital control system and daylight sensors.

Reading room interior, looking east

How does the completed building compare to the project as designed? Were there any dramatic changes between the two and/or lessons learned during construction?

Because the library system is a public agency, the general contractor was selected through a standard competitive public bid process, with the construction contract awarded to the lowest bidder. Therefore, in order to achieve a successful project outcome, we produced contract drawings and specifications that were thorough, consistent, and clear. As a result, the completed building is essentially identical to the project as designed.

Tectonic/Zoning Diagram

How does the building compare to other projects in your office, be it the same or other building types?

We look for simple and direct design concepts which respond in authentic ways to each project’s circumstances of site, program, and community. We endeavor to make buildings which exhibit high levels of craft, and spend a great deal of effort detailing assemblies, connections, and material intersections. This is a greater challenge with public and not-for-profit projects which often have limited budgets, but is all the more rewarding to do so.  The Kenmore Library is similar in these respects to our other recent buildings.

Site Plan/Floor Plan

How does the building relate to contemporary architectural trends, be it sustainability, technology, etc.?

Sustainability is an integral part of the design of effective, enduring, and high-quality buildings. The Kenmore Library employs a number of sustainable design strategies including on-site rain water infiltration, maximum use of daylight, a highly efficient HVAC and building control system, LED lighting, and regionally-sourced and reclaimed building materials.

Building Sections

Are there any new/upcoming projects in your office that this building’s design and construction has influenced?

In general, we continue to focus on daylighting as a fundamental approach to site response and building form, and we continue to explore the use of innovative and expressive long-span structural systems.

Email interview conducted by John Hill.

Kenmore Library
2011

Kenmore, Washington

Client
King County Library System

Architect
Weinstein A|U
Seattle, WA

Design Principal
Ed Weinstein, FAIA

Lead Designer/Project Architect/Project Manager
Matt Aalfs, AIA

Project Team
Joanne Wong Lee
Stephen Saude
Daniel Goodard, AIA
Jeff Boone, AIA
Dave Aynardi AIA

Structural Engineer
Magnusson Klemencic Associates

MEP/FP Engineer
WSP Flack+Kurtz

Landscape Architect
Swift Company

Lighting Designer
WSP Flack+Kurtz

Interior Designer
Weinstein A|U

Contractor
Sierra Construction Company

Construction Manager
John Barnes

Brick Veneer
Endicott manganese oxide

Wood Siding
TerraMai reclaimed teak

Interior Wood Panels
9Wood linear wood panels

Tension Rod Trusses
Macalloy Bar and Cable Systems

Casework
Paperstone (recycled paper and petroleum-free resin)

Site Area
17,000 sf

Building Area
20,000 sf (10,000-sf parking garage below 10,000-sf library)

Photos
Lara Swimmer

Related articles 

Other articles in this category