Kent Bellows Studio and Center for Visual Arts

Kent Bellows Studio and Center for Visual Arts

8. July 2013

Kent Bellows Studio and Center for Visual Arts
2010
Omaha, Nebraska
 
Client
The Kent Bellows Foundation
 
Architect
Randy Brown Architects
Omaha, NE
 
Design Principal
Randy Brown
 
Design Team
Brian Kelly, Neil Legband, Nathan Vanzuidam, WORKSHOP – Design/Build Summer Internship Program
 
Structural Engineer
Schnackel Engineers
 
MEP/FP Engineer
Schnackel Engineers
 
Storefront Glass
Pilkington

Building Area
4,500 sf
 
Photographs
Farshid Assassi
 
Drawings
Randy Brown Architects

RBA opened up the storefront below glass blocks that Bellow had inserted into the facade.

What were the circumstances of receiving the commission for this project?

Kent Bellows produced works that captivated the attention of art aficionados and sold to collectors from coast to coast. After his death, Kent’s studio space and building were transformed into The Kent Bellows Studio and Center for Visual Arts to serve as a catalyst for creative thought and mentoring for young artists in the Omaha metropolitan area.

RBA was commissioned to renovate the building facade and redesign the interior galleries, circulation and work spaces. To reduce the cost of construction, RBA WORKSHOP paid student design/build program constructed the design.

Bellows's signature parka still hangs by the front door.

Can you describe your design process for the building?

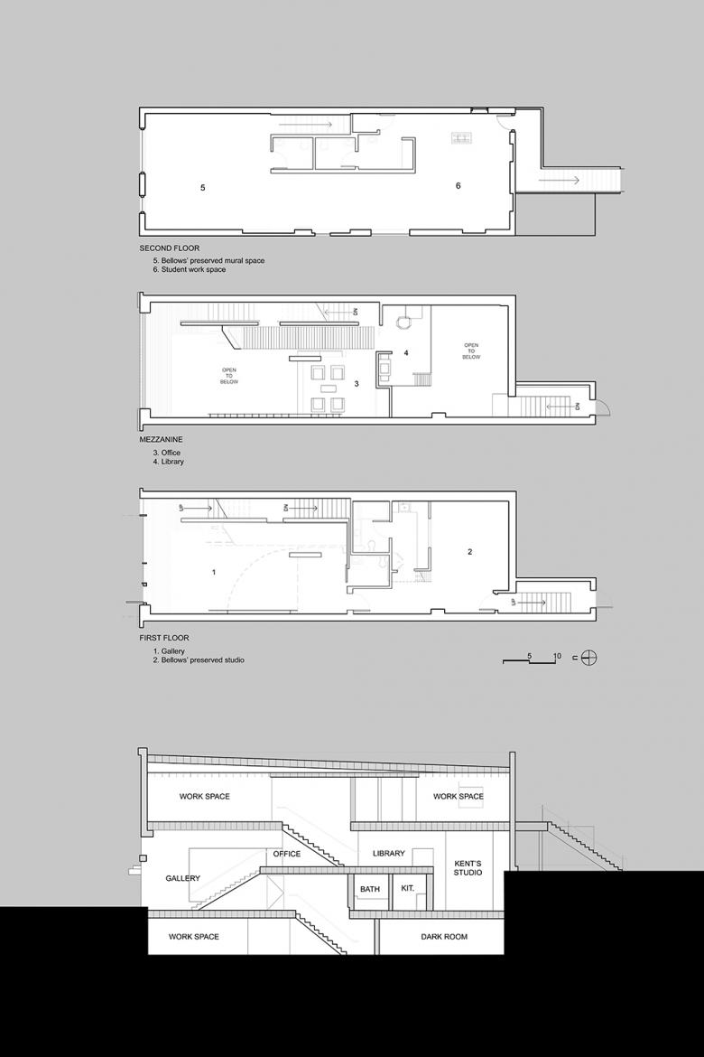
The renovation of the artist's late 19th-century two-story brick building consisted of a new storefront, ADA bathrooms, gallery space, library, office space, multi-purpose workspaces and preservation areas of the artists studio and backdrop installations. The project preserved several of the artist’s artifacts that tell a story about the artist and how he thought: the gallery floor (preserved under clear polyurethane), his parka, glass block transoms, moving backdrop wall, books, collages, light fixture pulley, wall mural, and wall installation.

A pivoting wall panel hides backdrops that Bellows was working on at the time of his death.

How does the completed building compare to the project as designed? Were there any dramatic changes between the two and/or lessons learned during construction?

To reduce the cost of construction, Brown made the bellows project his 2009 project for the RBA WORKSHOP paid summer design/build internship program for college architecture students from Iowa State University, Kansas State University, and the University of Nebraska. The students spent their 12-week internship program building the Kent Bellows Studio & Center for Visual Arts. The students were given the opportunity to redesign some of the elements of the design and then they spent 12 weeks building out the North Gallery space. Brown worked for 9 months to complete all of the phase one construction.

A small office/library at the mezzanine level overlooks the gallery below.

How would you describe the architecture of Nebraska and how does the building relate to it?

RBA was founded in 1993 with the mission to bring innovative and artistic architectural designs to his home state of Nebraska and teach the Heartland that the architectural solutions to their pragmatic needs and functional requirements could be creative and provoking. Almost 20 years later, RBA continues to educate and inspire the public by weaving award winning architecture into their every day lives. Inspired by the rural landscapes and communities of Nebraska, Brown and his team have developed a unique approach to architecture that couples the best of modern, ecologically-sensitive design with an appreciation of the natural landscapes and honest lifestyles of the Heartland. RBA is frequently recognized by the national and international design community resulting in numerous publications, and numerous state, regional, and national awards. The Kent Bellows Studio is the recipient of a 2012 Institute Honor Awards for Interior Architecture—one of the 10 best interior projects in the nation!

Email interview conducted by John Hill.

Floor plans
Axonometric

Kent Bellows Studio and Center for Visual Arts
2010
Omaha, Nebraska
 
Client
The Kent Bellows Foundation
 
Architect
Randy Brown Architects
Omaha, NE
 
Design Principal
Randy Brown
 
Design Team
Brian Kelly, Neil Legband, Nathan Vanzuidam, WORKSHOP – Design/Build Summer Internship Program
 
Structural Engineer
Schnackel Engineers
 
MEP/FP Engineer
Schnackel Engineers
 
Storefront Glass
Pilkington

Building Area
4,500 sf
 
Photographs
Farshid Assassi
 
Drawings
Randy Brown Architects

Related articles 

Other articles in this category