Kiral

Kiral

1. February 2012

Kiral
2011

Mexico City

Client
Various investors

Architect
Arquitectura en Movimiento Workshop

Project Architect
Arquitectura en Movimiento Workshop

Project Team
Fabio Correa
Eduardo Micha
Gabriel Merino
Oscar Osorio
Patricia Perez
Miguel A. Chiney
Nestor Moreno
Christian Rodriguez
Eduardo Cornejo

Structrual Engineer
Ing. Max Tenenbaum

Civil Engineer
Espacio Vectorial

Lighting Designer
Arquitectura en Movimiento Workshop

Contractor
Espacio Vectorial

Facade
Durock

Surface Area of Site
540m2

Surface Area of Building
2000 m2

Photos
Rafael Gamo

Kinetics and Op Art inspired the project, transmitting an optical illusion of movement that requires and captures an active attention from the viewer. Mexican society is experiencing a continuous and uncontrolled movement; therefore the building responds to this phenomenon and reflects the reverberation of the city.
By the geometric interplay of forms, a dynamic course is achieved, focusing on the main façade as a significant backdrop for the viewer. The horizontal and vertical lines of the balconies create a perfectly modulated grid. This grid is then perceived in a three-dimensional plane where overlapping spherical shapes are first subtracted, then extruded, resulting in a façade that moves. It moves depending from which angle the observer approaches the building; it moves responding to a play of light and shadows throughout the day; it moves, as the city itself is moving.
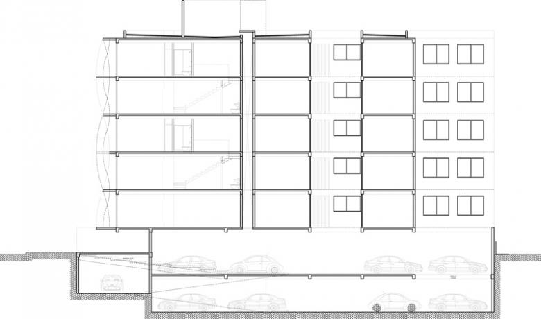
The 17 apartments are arranged around a common courtyard, which allows natural light and cross-ventilation. A gym, a roof garden complement a thorough design based on the logical principle of organization. There are one and two-storey apartments with balconies that give the building a sense of community and harmonious coexistence. Every apartment benefits from a private indoor and outdoor space, sharing main services, and maintaining privacy at the same time.


What were the circumstances in which you received the commission for this project?

From the outset, this project was, in particular, taken as a development investment and sale; that’s to say, a piece of land was sought (in this case, there were 2, and they were joined to provide enough space for the project), the project was undertaken and, at the same time, investors were sought to finance the work and the departments were marketed.

Please describe the design process for the building.

The project proposes a concept which has its inspiration in the artistic movements of Kinetics and Op Art, based on transmitting an effect or optical illusion of movement that demands an active attitude of the viewer. Taking inspiration from Jesús Rafael Soto, Cornelis Escher, Ferdinand Mobius and even Alexander Calder, the project, by means of the geometric games of shapes, manages to project said dynamism, which is concentrated on the main facade as a significiant spectator backdrop.

How does the finished building compare with the project design? Were there drastic changes between the two and/or were any lessons learned during the construction?

The building was finished just as it was designed; it’s surprising and very satisfying to be able to compare the finishing and the photos because they are the same.

Various modifications were made to the access in the design process and finally, for questions of security, the access viewpoint had to be isolated.

How does the building compare with other projects in your office, whether being of the same or a different type of construction?

Each project is different although of the same type; Kiral is one of those projects that leaves a great impression on you as finishing the work leaves you with enormous satisfaction as you can see the idea come to life and you see all the hard work made into reality.

How is the building related to contemporary architectural tendencies, whether being in relation to sustainability, technology, etc.?

We don’t pay heed to trends, we design according to the concepts that please us, that help us to express our ideas as faithfully and as inspirationally as possible.
As regards sustainability, in this particular case, an alternative system was implemented in order to utilise rainwater, collecting and treating it for sanitary uses.

E-Mail Interview conducted by Bernhard Althof

Kiral
2011

Mexico City

Client
Various investors

Architect
Arquitectura en Movimiento Workshop

Project Architect
Arquitectura en Movimiento Workshop

Project Team
Fabio Correa
Eduardo Micha
Gabriel Merino
Oscar Osorio
Patricia Perez
Miguel A. Chiney
Nestor Moreno
Christian Rodriguez
Eduardo Cornejo

Structrual Engineer
Ing. Max Tenenbaum

Civil Engineer
Espacio Vectorial

Lighting Designer
Arquitectura en Movimiento Workshop

Contractor
Espacio Vectorial

Facade
Durock

Surface Area of Site
540m2

Surface Area of Building
2000 m2

Photos
Rafael Gamo

Related articles 

Other articles in this category