Kirkpatrick Oil Hennessey
Kirkpatrick Oil Hennessey
Oklahoma sits atop some of the largest petroleum fields in the United States, so it's no surprise that the drilling and production of oil and natural gas is a major industry in the state. Kirkpatrick Oil is one of many companies making up the industry. Their headquarters is in Oklahoma City, but since 1967 they've had an office near Hennessey, a small town north of the state capital. The new office is in the middle of town on Main Street, a modern addition to the relatively historic streetscape. Elliott + Associates Architects answered some questions about the project.
What were the circumstances of receiving the commission for this project?
Elliott + Associates has had a 25 year relationship with the owner. We were chosen based on our past experience and long-term relationship with the client.
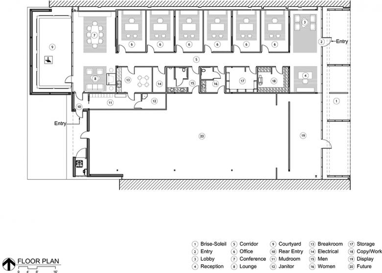
Can you describe your design process for the building?
We believe the idea of placing a modern building in downtown Hennessey is a serious responsibility. We had a responsibility to respond to the historic context and bring new energy to Main Street. We took inspiration from the historic 25’ lot lines, the scale of the adjacent masonry, and the acknowledgement of the historic building height. For example, the brise soleil horizontal dimensions are 2-3/8” high to match the adjacent masonry as a way to tie the history and the 21st century together. We are overjoyed that the project has been embraced by the community to the point where the high school prom was held there the same year it was completed. The project was the backdrop for the senior class street dance performing Footloose and recording the performance.
The design process included the development of sketches to be presented to the owner. A single concept was chosen from a sketchbook with 200 choices. Below are a few of the sketches presented including the chosen one.
How does the completed building compare to the project as designed? Were there any dramatic changes between the two and/or lessons learned during construction?
The completed building is very close to the original presented sketch. The final building maintains the spirit and character of the original sketch. The built project is always better than the sketches. The owner needs faith, confidence and courage in the team to trust in the outcome.
How does the building compare to other projects in your office, be it the same or other building types?
This project is similar in scope and expectations to other projects in our office. Our goal is to create an “architectural portrait” of our client, their aspirations and goals. Each project, like each client, is unique.
How does the building relate to contemporary architectural trends, be it sustainability, technology, etc.?
We do not follow architectural trends. Our projects are rooted in place, integrity of intent and the desire to create timeless architecture. Our projects adhere to the highest standards of sustainability.
Are there any new/upcoming projects in your office that this building’s design and construction has influenced?
Each project in our office is unique—no two are alike. We have a philosophy in our office: "We live and die in the details." In that sense, attention to detail has influenced our entire oeuvre.
How would you describe the architecture of Oklahoma and how does the building relate to it?
Oklahoma was settled by a series of land runs in 1889 and 1893. We are a state with an embedded pioneer spirit. Our work is like our place—open, unafraid of risk and thoughtful with our intentions. We are a community of genuine, hard-working people. The architecture reflects a functional grounding and the spirit of optimism.
Email interview conducted by John Hill.
Kirkpatrick Oil Hennessey
2011
Hennessey, Oklahoma
Client
Kirkpatrick Oil Company
Architect
Elliott + Associates Architects
Oklahoma City, OK
Design Principal
Rand Elliott, FAIA
Project Manager
Brian Berryhill, Assoc. AIA
Project Team
Michael Shuck, Assoc. AIA
Structural Engineer
Mark Eudaley Engineers
Mechanical Systems
Harrison-Orr Air Conditioning, LLC
Lighting Consultant
Smith Lighting Sales, Inc
Interior Designer
Elliott + Associates Architects
Contractor
Smith & Pickel Construction Co., Inc.
Electrical Systems
Metro Electrical Contractors, Inc.
Skylight
Bellwether Design Technologies
Structural Steel
Shawnee Fabricators
Masonry
Acme Brick
Brise Soleil Aluminum
ASI Signage
Cabinets and Custom Woodwork
Contemporary Cabinets
Site Area
10,500 sf
Building Area
9,400 sf
Photographs
Scott McDonald/Hedrich Blessing
Drawings
Elliott + Associates Architects









