Knowledge Park
Knowledge Park
The original proposal of the Prefecture of Santo André (São Paulo) required that a children's science museum, associated with the public school network, be built inside one of the city's parks. The project presented expands the initial program and proposes a wing to house not only the museum but also other activities, such as art exhibitions and various events.
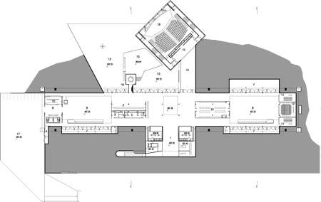
The area assigned for the construction of the wing is very close to the roads surrounding the park, which led to the construction of a restricted access floor, designed not to disturb the other activities in the park. Access to the museum is through a large square with a parking lot for cars and school transport. Entrance to the wing is through an uncovered ramp that provides access to an underground gallery linking the entrance esplanade directly to the inside of the building. This gallery contains supplementary services, such as restrooms, administrative halls and cellar.
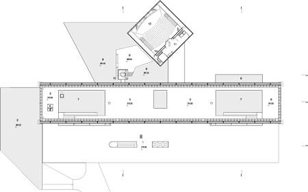
The wing, measuring nearly 9,000 m², emerges like a large rock or beam, taking advantage of the lie of the land. The beam is as high as the distance between the two floors, and is 60 cm above the ground, where it appears to be floating. To enter the building, one has to go down to the height of the entire mezzanine. The structure -a bay measuring 30 × 160 meters- comprises two reinforced concrete beams, containing the internal set-up of the pathways. Appearing to float, the building looks exuberant, based on three pillars, low features measuring 60 cm, with 80-cm openings and a 20-meter projection. It is a unique construction.
Given that the park is closely linked to the idea of nature, collecting rainwater from such a large area is very important from the formal point of architecture -the two beams are also continuous pipes that collect the water from the deck which they then channel not only through the four fountains situated at the ends of the wing, recreating the natural routes of the water in the park.
On the other side of the frames, large windows were set up in the shapes formed by a necessary support wall, which is slightly higher, meaning that the windows are not visible from either the inside or the outside, creating a surprising form of lighting. Another two buildings were proposed in addition to the wing: one to house the auditorium and other for a special display area. The two are connected to the main building through covered passages.
Paulo Mendes da Rocha (Vitória no Espírito Santo, São Paulo, 1928) is considered one of the most important architects of the second half of the twentieth century. His vast body of work has merited prizes such as the first and second Latin American Mies van der Rohe Architecture Prize, for the Brazilian Sculpture Museum (São Paulo, 1999) and for the Pinacoteca do Estado de São Paulo (2000), respectively. In 2006 he received the Pritzker Prize.
Knowledge Park
2003-2007
São Paulo, Brasil
Architecture
Paulo Mendes da Rocha
en colaboración con
MMBB Arquitetos






