Kohout Residence

Kohout Residence

14. October 2013

Kohout Residence
Dakota Dunes, South Dakota
 
Client
Sam & Kelly Kohout
 
Architect
Knowles Blunck Architecture
Des Moines, IA
 
Design Principal
Kirk Blunck, FAIA

Project Manager
Khalid Khan
 
Project Team
Matt Binder
Evan Shaw, AIA

Landscape Architect
Knowles Blunck Architecture
 
Contractor
Connely Tiehen & Sons
 
Appliances
GE Monogram

Bath & Shower Faucets
Hansgrohe

Bath Sinks & Toilets
Duravit

Kitchen Counter
Paperstone

Site Area
1 acre

Building Area
55,000 sf

Photographs
Cameron Campbell

Drawings
Knowles Blunck Architecture

West elevation at dusk

Can you describe your design process for the building?

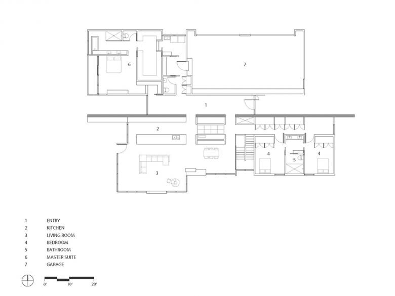
Our process consisted of listening to the owner and dividing up the house into zones based on use, adjacency, views, and privacy. This established the basic plan layout. For the roof shape and exterior materials we had to creatively interpret the development guidelines geared more toward developer driven spec homes. For example, the roof slope and material were dictated by the ordinance, but by inverting the roof into a butterfly configuration we were able to meet the letter of the guidelines and still create a clean modern exterior profile.

Kitchen and living room

How does the completed building compare to the project as designed? Were there any dramatic changes between the two and/or lessons learned during construction?

The completed project was not altered significantly from the original design. One thing we did learn during construction is that it is difficult to keep bystanders off the construction site when you are doing something so unique to the area.

Entry gallery view

How does the building compare to other projects in your office, be it the same or other building types?

While we treat each project as a separate design problem, there is a commonality to how we bring light into spaces and how views are controlled. Windows tend to be arranged so light can enter a room from more than one side and frame specific elements in the landscape, or arrangements within the room itself.

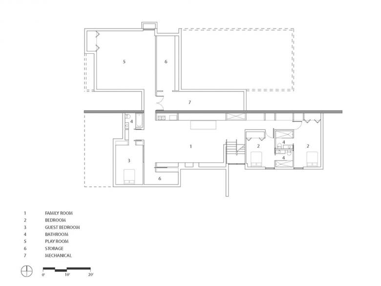
Basement play room and stair

How does the building relate to contemporary architectural trends, be it sustainability, technology, etc.?

While not designed to any standard the house does feature sustainable materials and techniques such as the extensive use of wood, natural light, and recycled paper countertops.

As viewed from the golf course

How would you describe the architecture of South Dakota and how does the building relate to it?

South Dakota really doesn’t have an architectural style apart from the endless McMansions, strip malls, and the occasional ‘western’ themed building. It was more our desire to make a house that was sensitive to its surroundings and embraced the low prairie covered sand dunes of the river plain.

Email interview conducted by John Hill.

Kohout Residence
Dakota Dunes, South Dakota
 
Client
Sam & Kelly Kohout
 
Architect
Knowles Blunck Architecture
Des Moines, IA
 
Design Principal
Kirk Blunck, FAIA

Project Manager
Khalid Khan
 
Project Team
Matt Binder
Evan Shaw, AIA

Landscape Architect
Knowles Blunck Architecture
 
Contractor
Connely Tiehen & Sons
 
Appliances
GE Monogram

Bath & Shower Faucets
Hansgrohe

Bath Sinks & Toilets
Duravit

Kitchen Counter
Paperstone

Site Area
1 acre

Building Area
55,000 sf

Photographs
Cameron Campbell

Drawings
Knowles Blunck Architecture

Related articles 

Other articles in this category