Kozakai Kifukan Community Center
This public building in the city of Toyokawa houses a variety of functions — community center, library, children's center, city hall — behind a patterned facade that is as welcoming to residents as the light-filled spaces inside. Architect Yasuyuki ITO answered a few questions about the Kozakai Kifukan Community Center.
Principal uses: Community center, Library, Children’s center, City hall branch office
Location: Toyokawa, Aichi, Japan
Client: City of Toyokawa
Architectural design: C+A Coelacanth and Associates
- Chief architect: Yasuyuki ITO
- Team: Naoaki Isogai, Haruka Okuma, Yoshitaka Sakata
Structural design: Fujio and associates
Equipment: Setsubikeikaku.Co.,Ltd.
Landscape design: SfG landscape architects
Fabric Design: Taiji Fujimori Atelier
Site area: 7859.45 ㎡
Building area: 2202.36 ㎡
Total floor area: 3102㎡
Main construction: Steel structure
Number of floors: 2 stories + penthouse
This core community building in the Kozakai district of Toyokawa contains a community center, library, children’s center, and city hall branch office. The design was selected in a 2017 competition. The spatial appeal of a mixed-use building such as this comes largely from its handling of common areas. While individual spaces such as the meeting rooms, music studio, event hall, and kitchen are of course also important, it is the natural overflow of sounds, sights, and other hints of activity into the common areas that gives the facility as a whole its vibrancy.
Two concepts contribute to the appeal of the common spaces in this complex. One is the idea that different activities can coexist and enliven a shared space. For example, in the common area of this building, visitors can share food prepared in a cooking class as the sound of music and dance performed in the event hall filters out along with the voices of children in the children's center. People are allowed to bring books and magazines into the common area from the library, which in other facilities is usually an independent, closed space. It was important to us to design a facility in which visitors naturally become aware of the various activities taking place around them in this way.
The second key concept was to create places for people who have no set reason for being there. Community centers need comfortable areas where people can wait between activities such as completing paperwork at the reception desk and using the rental room. These spaces are also suited to those who visit the facility without a specific reason. Making room for people to spend time alone without any special purpose enriches the common areas.
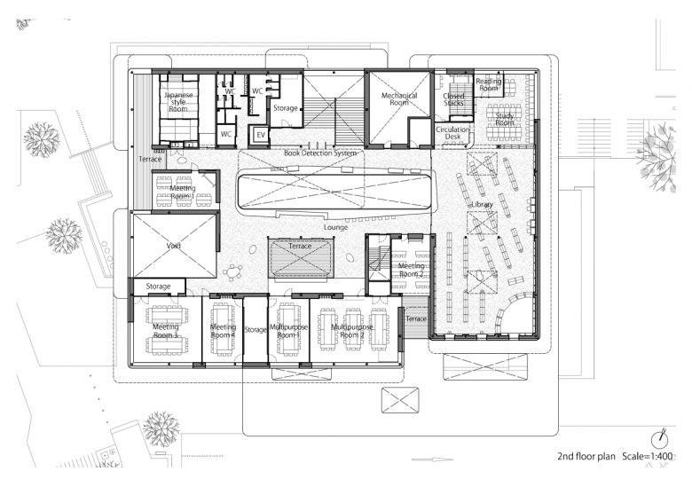
The building is two stories high in most areas, except the central common area, which has a three-story-high (12 m) ceiling and a long, narrow footprint measuring 40 m long by 10 m wide. On the first floor, this central area is flanked on both sides by the city office, children’s center, kitchen, event hall, and several other rooms, making it the heart of the building. On the second floor, a void occupies the central space, surrounded by a ring-shaped common area that connects to an outer ring of community center rooms and the library. On both the first and second floors, this long, narrow, tall core space includes zones with varying ceiling height, small courtyards, and connections to large volumes such as the library and children’s center, yielding spaces of different scales for people to spend time in. On the second floor, the void is surrounded by a built-in feature called the Oval. The Oval is a single unit of furniture with a 60-meter circumference that incorporates magazine racks, display stands, tables, sofas, and benches, allowing users to spend time as they choose, either alone or in groups. Clerestory windows above the void bring in natural light and ventilation when desired, lowering the energy requirements for lighting and air conditioning.
In the exterior design, it was important for this core neighborhood facility to have a symbolic character and to be loved by community members. The facade consists of metal panels perforated with a stylized motif based on pinwheels used at traditional shrine festivals in the neighborhood, giving local residents a sense of ownership and belonging. The panels are extremely weather resistant, reducing maintenance costs over the long term.
The site faces a large (currently unused) piece of public land on the east and residential areas on the other three sides. We left the east side of the property open to serve as a spacious approach to the building and put a parking lot on the south side. Large eaves overhang the east and south sides, sheltering the approach and providing a comfortable outdoor space for community members. The parking lot and open space are used to host events during the yearly community festival. On the west side of the parking lot is a terrace that can be used as a stage during events.
Interview conducted by Neoplus Sixten Inc.





















