Kukkula Winery
Kukkula Winery
Buildings for wineries have become one of the most unexpected typologies for high-profile architecture, resulting in designs by Frank Gehry, Santiago Calatrava, Herzog & de Meuron, Steven Holl, and other household names. Yet flashy forms are not appropriate for all vitners. Studio B Architects' design for the Kukkula Winery between Los Angeles and San Francisco taps into the popular relationship between wine and architecture but also the local context and the process of winemaking. The architects answered some questions about the building.
What were the circumstances of receiving the commission for this project?
The client commissioned us to complete his house after seeing our firm published in a national magazine. After successfully completing the residence, we started design on the winery building.
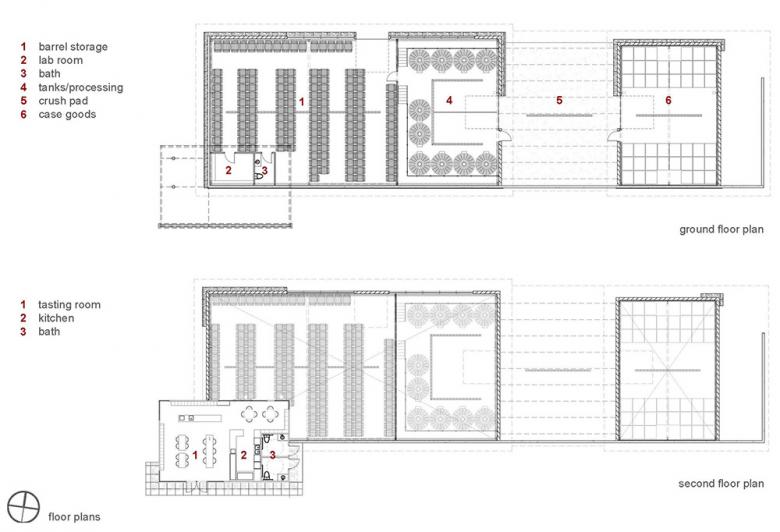
Can you describe your design process for the building?
After gaining a great knowledge of the site and wine making in the area we completed three options to study. After adopting a diagram and direction we worked through design drawings and computer rendering to complete the final building.
How does the completed building compare to the project as designed? Were there any dramatic changes between the two and/or lessons learned during construction?
Early in the project's design we worked closely with the client, steel subcontractor and others to ensure the final project was very close to the design. The final building very much meets our design intent.
How does the building compare to other projects in your office, be it the same or other building types?
Like all our projects at Studio B, this project is rooted in a strong modern aesthetic, minimalist design, and elegant site integration.
How does the building relate to contemporary architectural trends, be it sustainability, technology, etc.?
To minimize temperature swings the building was set into the hillside, and rocks from the site were set in baskets (gabions) on the front façade to absorb heat during the day to be release that heat at night. All the exterior materials are low maintenance and simply detailed.
Are there any new/upcoming projects in your office that this building’s design and construction has influenced?
The materials used have influenced many of our projects. The simple and inexpensive steel design shows that interesting things can happen with standard steel construction.
Email interview conducted by John Hill
Kukkula Winery
2010
Paso Robles, CA
Client
Kevin Jussila
Architect
Studio B Architects
Aspen, CO
Design Principals
Scott Lindenau
Project Architect/Manager
Joseph Spears
Structural Engineer
Taylor + Syfan Consulting Engineers
Contractor
US Building + Development
Steel Fabrication/Erection
Allied Steel
Site Area
88 acres
Building Area
5,000 sf + 995 sf tasting room
Photographs
Derek Skalko





