La Caracola Casa de Playa
La Caracola Casa de Playa
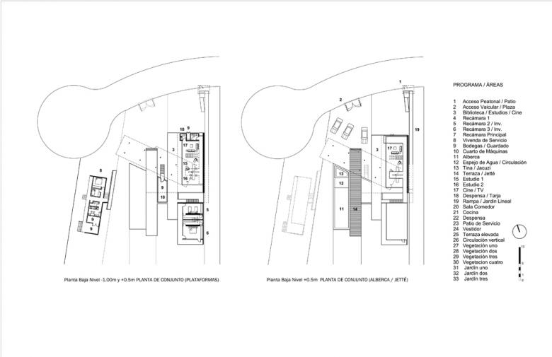
Describe the design process for the building
The design process begins with an analysis of the project, the areas and the context, as well as taking into account the number of storeys that the building will have and the relation between them. With that covered, we can begin to test an endless range of ideas. We use any of the resources that we have –or sometimes we use all of them– such as conventional and digital models, hand drawings, animated sketches, drafts, or anything that will enable us to try out different ideas.
We don’t work with just one particular methodology, but some of them have more appeal to us than others. The composite language is the result of various strategies and it responds to the essential questions of what the building should be like.
In what way did the location influence the project? (Culture, topography, etc.)
The location/context is an essential part of the project. We think that the project should work like the natural production systems do, and therefore, we need to study them. We have considered several evident factors which have to do with weather, wind, temperature and materiality. For example, the main purpose of large cantilevers is to form shadows to create cool areas. Big volumes, such as simple concrete cubes, will create wind currents and promote cross ventilation throughout every area. The project has several glass stretches, which can be opened to form open blocks where wind can flow.
The concrete is a mixture of sand found in situ, in order to integrate it chromatically and reduce costs of material transportation. There are many details that make the location and the final result come together. With such an extreme weather, like the one the border of the Pacific Sea in Mexico has, it is crucial to pay attention to these characteristics as part of the whole composition strategy.
In what way does the building relate to the current architectonic trends regarding sustainability, technology, etc.?
We don’t think of sustainability as a superficial trend. To us, sustainability can be achieved simply by creating a good design.
The problem is that, nowadays, creating a “good design” has become more complex. The way we are treating the material world is irresponsible and destructive for ourselves and for the species with which we share the planet. Any design has the obligation to improve the environment and to create abundance for it. This is a challenge, and balance is sometimes difficult to achieve because, for a long time now, buildings have started to become disassociated from the natural environment. This particular work takes into account primary topics such as orientation, ventilation, temperature and safe materials, although it does not have a specific strategy focused on enriching the environment. We try to make different types of efforts according to the possibilities of each project and client. At times it can be a frustrating task, but it is also the right thing to do.
Technology is a powerful and amazing tool, inasmuch as it is used to create opportunities, beauty, abundance and wellbeing. We try to use every technological tool available through an informed research and with a specific purpose.
Our processes are closely related to the technology available at the time and, depending on the budget we have for each project, we use different resources. Technology has more influence in the creative stage and in the tests of our conceptual ideas, than the building implementation itself.
Are there any new/upcoming projects in your office which have been influenced by the design and construction of this building?
Yes, all of them.
Every project is influenced by the previous ones. In each one of them we learn an enormous amount of new things, and we learn from our mistakes. Besides, we are always interested in certain matters which come across in every project –maybe with a different approach for each– but they are still the same ones. We design and build in a specific country, and that is also why our projects are produced the way they are.
The Caracola Beach House
2010
Club de Golf Tres Vidas
Guerrero
México
Client
Private
Architect
Paul Cremoux Wanderstok
Design Principle
Creating shadows
cross ventilation and views
Interior Design
Arquitecta Greta Hauser
Project Team
Gerente de Proyecto: José Ignacio Echeverría
Advisors
Cocina Piacere
Site Area
1000 m2
Building Area
536 m2
Photos
Paul Cremoux Wanderstok





