La Casa Permanent Supportive Housing

1. February 2016

La Casa Permanent Supportive Housing

2014
Washington, DC

Client
District of Columbia

Architect
Studio Twenty Seven Architecture/Leo A Daly
Joint Venture

Design Principal
John K Burke AIA

Project Architect
Jake Marzolf

Project Manager
Jim Spearman,AIA  Pierre Gendrau AIA

Project Team
Jason Shih, Raymond Curtis

Structural Engineer
Silman

MEP/FP Engineer
MC Engineers

Civil Engineer
A Morton Thomas

Contractor
Monarc Construction

Construction Manager
DC Department of General Services

Exterior Wall Panels
Trespa Panels

Exterior Concrete Panels
Silbonite

Countertops
Alkemi Countertops

Site Area
7,000 sf

Building Area
29,192 sf

Photography
Anice Hoachlander

What were the circumstances of receiving the commission for this project?
The project was the award of an open-end contract that the joint venture of Studio Twenty Seven Architecture/Leo A Daly held with the District of Columbia Department of General Services.  The open-end contract was won through a public RFP process.

Please provide an overview of the project.
This project is a permanent supportive housing facility designed for, and operated by, the government of the District of Columbia. “La Casa” is the first permanent supportive housing project for the District’s Department of Human Services. The project consists of 40 single-occupancy units with community and support spaces covering 24,946 square feet. Currently the city operates a variety of housing types and models to accommodate the homeless, most of which focus on temporary, nightly shelter. The La Casa Permanent Supportive Housing Project is the first to develop private dwelling units, with full living spaces, kitchens and baths for the chronically homeless. 

In addition to maximizing the number of individual living units that could be accommodated on the small site, the city wanted to redefine a homeless care paradigm that typically produces antiseptic intuitional facilities. The architects were fortunate in having a municipal client that required design quality that will “meet and/or exceed” that of adjacent market-rate condominium buildings. As the first permanent supportive housing facility in DC, La Casa is an important milestone for the District in its effort to redefine the concept of housing for the homeless community.

Throughout the design and construction process, six different city agencies were involved in assuring that the project met sustainability, durability and programmatic goals. Comments and concerns from City officials were incorporated with design revisions through construction change directives, stretching a twenty four month schedule into thirty six months.  It was essential that the architects and other team members shared a stamina of creativity and attention to detail throughout the elongated duration and on-going modifications.  

As mentioned previously, a central design challenge was to create “home” rather than institution. It was repeatedly stressed that the city wanted a building that defies the homeless shelter archetype. True to the spirit of permanent supportive housing, each resident is provided with a place to call their own. From the exterior, large and individualized windows on the façade identify particular spaces to which the occupants can point and exclaim: “That is where I live!” Striking design fosters a pride of ownership, and the security and predictable domestic environment encourage the continual growth and change of the residents. Each living unit is designed for single-person efficiency while collectively the facility operates as a community. La Casa communal spaces are interspersed with offices where residents can seek substance abuse counseling, case management, and employment and housing placement assistance, among other services.  
 
In doing so the project is also a welcome addition to a diverse, vibrant and rapidly growing neighborhood.

What are the main ideas and inspirations influencing the design of the building?
La Casa is designed to foster individualized identity within the context of collective housing. The building mass is carved at street level to create an open and inviting entry. Layers of glazing provide visual access to the interior, reinforcing to the community the accessibility of the programs within, while also providing security. The overall building massing is informed by the urban street edge, zoning setbacks and height restrictions. The upper floors align to the zoned building plane to maintain the urban street edge; the first two levels fold away to provide a foreground to the entry and the adjacent pocket park. A small gated rear entry is provided from the south, which passes through the private refuge of an exterior terrace nestled within a courtyard. Practically, the courtyard opening reduces the building massing to achieve the requisite floor-to-area ratios, while also providing light and air to the rear facing units.

The facades reflect the vibrant activity along Irving Street. The solid-void pattern of the façade emulates the adjacent multifamily residential buildings to achieve a contextual scale, and the fenestration further refines this texture while providing equal amounts of glazing for each dwelling unit. Above the street-level datum, the façade cladding-to-window pattern was developed to allow individuals to easily identify their particular floor and unit, and resultantly their place within the city. Below this same datum, the design team wished to emphasize entry and pattern through layering, spatial density and variations of light. The primary façade faces north, so the interplay of light, shade and shadow is limited. To circumvent this inherent flatness, the design team sought to employ the contrasting light from within each unit as darkened voids in the daytime, and illuminating beacons in the evenings. Between windows, the exterior cladding comprises a syncopated rhythm of gray cement board and Trespa panels. These materials were chosen for their aesthetics, durability and resilience. They reduce the municipality’s overall maintenance expenditures and provide integral beauty that augments the lively context of Irving Street, and the vitality of city night life. 
 
Unit interiors are designed for space efficiency and durability. Inspired by more costly studio loft apartments, each dwelling unit provides floor-to-ceiling operable windows for natural daylighting and ventilation. The units offer functional simplicity, coupling a hybrid living, eating, and kitchen space with a sleeping niche. Warm and durable flooring of exposed concrete and bamboo complements crisp white walls and a refined gray kitchen. Countertops are made by Alkemi, comprising shredded, recycled aluminum cans floating in resin. The bathrooms are finished in ceramic tile, with industrial fixtures.  Each unit is fully ADA compliant. 

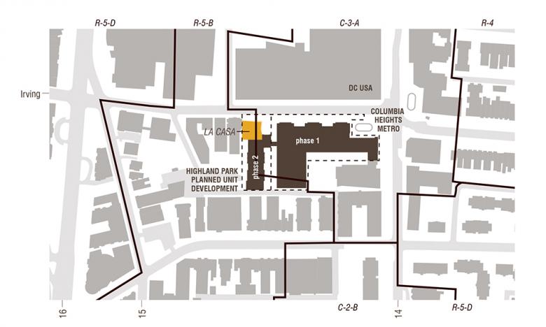
Location Plan

How does the design respond to the unique qualities of the site?
La Casa is located in Columbia Heights, a neighborhood in the northwest quadrant of Washington, DC. The Metro came to the neighborhood in 1999, and in the wave of redevelopment that followed neighborhood demographics diversified. Census data reveals that the current population is almost half Hispanic, while African American and White populations are around a quarter each.  Columbia Heights was once known as a “City with a City,” but now it is probably better known as “the World within a Neighborhood.” It is arguably one of Washington, DC’s most ethnically and economically diverse neighborhoods. 

La Casa has important urban planning responsibilities. Pedestrians exiting the metro station and traveling west will be greeted by its transparent glowing lobby. Sightlines extend from La Casa to the metro station, and the vibrancy of the building and its residents is reflected in the comings and goings of metro riders.

Site Plan with Ground Floor Plan

The District initiated redevelopment with the opening of the metro station, which created enough economic draw for urbanized big box shopping facilities to follow. The new metro station also became a centralized transportation hub with bus lines, parking garages, dedicated bike lanes, and bikeshare docks all nearby. DC, as a pedal-friendly city, included secure bicycle storage along the first floor of the new La Casa structure. The multi-modal opportunities along Irving Street allow the new building tenants to disperse easily and conveniently throughout the city, extending their employment possibilities.   
 
La Casa’s seven stories also help to make the transition from the nine story buildings that face Fourteenth Street to the lower four and five story buildings that comprise the Irving Street residential neighborhood behind.
 
La Casa’s first two floors are intentionally set back from the bulk plane along Irving Street to provide a sense of urban relief, which is emphasized with landscaping. During design it was discovered that the adjacent building had an entrance garden that would never be exposed to direct sunlight. The light filled and glass walled lobby of La Casa allows light to flow into this garden in the evenings.

La Casa Permanent Supportive Housing

2014
Washington, DC

Client
District of Columbia

Architect
Studio Twenty Seven Architecture/Leo A Daly
Joint Venture

Design Principal
John K Burke AIA

Project Architect
Jake Marzolf

Project Manager
Jim Spearman,AIA  Pierre Gendrau AIA

Project Team
Jason Shih, Raymond Curtis

Structural Engineer
Silman

MEP/FP Engineer
MC Engineers

Civil Engineer
A Morton Thomas

Contractor
Monarc Construction

Construction Manager
DC Department of General Services

Exterior Wall Panels
Trespa Panels

Exterior Concrete Panels
Silbonite

Countertops
Alkemi Countertops

Site Area
7,000 sf

Building Area
29,192 sf

Photography
Anice Hoachlander

Related articles 

Other articles in this category