La Purificadora – Hotel, Puebla
La Purificadora is a vanguard proposal in the hotel sector undertaken in the city Puebla. It is located in a historic building constructed in 1800 as an ice factory where water was bottled and purified. During the renovation, the resident archaeologist found numerous vestiges of the early days of the factory, such as bottles and pieces of glass, which were incorporated into the design and graphic image of the hotel.
La Purificadora is in the oldest part of Puebla's historic downtown, next to the Church of San Francisco and the Convention Center, and not far from a picturesque square and the Galería de Arte Contemporáneo. Fine views of the city can be enjoyed from the terrace of the hotel.
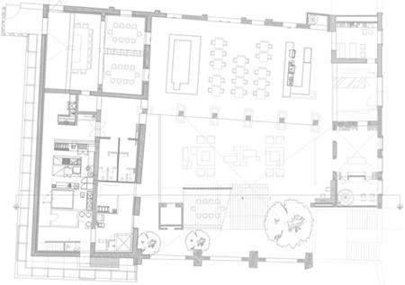
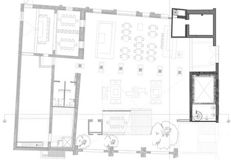
The L-shaped building is articulated around a large lateral patio. On the ground floor, the triple height of the restaurant-bar and reception area is prolonged into the common area. The void of the two upper levels is delimited by the circulations leading to the 26 rooms, while a fourth level is outfitted with amenities, including a swimming pool, whose large roof covers a part of the patio.
The stone and plaster of the façades are continued in the interior finishes. The principal materials are the stone and wood of the original construction, onyx, and specially fabricated glazed tiles for the floors.
Ricardo Legorreta (Mexico City, 1931) graduated as an architect from the UNAM. His professional career began in 1948 at the firm of José Villagrán. In 1963 he founded, with Noé Castro and Carlos Vargas, Legorreta Arquitectos, which became Legorreta + Legorreta in 2000. He has received the Premio Nacional de las Artes (1991) and the Gold Medals of the International Union of Architects (1999), the American Institute of Architects (2000), and the Panamerican Federation of Architects' Associations (2005).
Víctor Legorreta (Mexico City, 1966) studied architecture at the Universidad Iberoamericana. After gaining professional experience at the firms of Leason Pomeroy & Associates, Martorell, Bohigas Mackay, and Fumihiko Maki, he joined Legorreta Arquitectos in 1991. In 2007 he was named an honorary member of the American Institute of Architects (AIA).
Juan Pablo Serrano (Mexico City, 1969) graduated as an architect from the Universidad Iberoamericana in 1991. He has worked with Teodoro González de León and Francsico Serrano, Augusto H. Álvarez, and Ricardo Legorreta. In 1993 he founded his own firm with Gad Liwerant and Enrique Macotela (LMNS Arquitectos), later inviting Rafael Monjaraz to participate (SerranoMonjaraz Arquitectos). Among the numerous awards he has received are the Gold Medal of the Mexican Architecture Biennial (2002), the Cemex Prize (2003), and the Premio Nacional de Vivienda (2003 and 2006). A member of CAM-SAM, he has taught at the Universidad Iberoamericana since 1992.
Rafael Monjaraz Fuentes (Mexico City, 1969) studied visual arts at the Academia Dante Alighieri and began his studies at the Architecture School of the Università degli Studi di Roma "La Sapienza." In 1992 he began to specialize in urbanism and established the firm of Monjaraz Arquitectos in Rome. In 1998-1999 he worked with LMNS Arquitectos, which in 2000 became SerranoMonjaraz Arquitectos.
Hotel La Purificadora
2007
Puebla
Architecture/ Interior Design
Legorreta + Legorreta
México D.F.
SerranoMonjaraz Arquitectos
México D.F.
Project Team
José Martín González Montagut
Structural Engineering
García Jarque Ingenieros SC.
Installations
Proyectos de Ingeniería Eléctrica y
Sistemas Automatizados S.A.de C.V.
Art
Laureana Toledo
Constructed Surface
3.000 qm









