Laird Norton Addition at the Winona County History Center
The Winona County History Center in southeastern Minnesota is located in a former National Guard Armory from 1915. This historic brick structure helped determine much of the Laird Norton Addition’s contemporary design, which occupies a surface parking lot immediately to the south. HGA’s design responds to the scale, material, and detail of the Armory but departs from it in terms of character, to respect the old building while creating something new. The architects answered some questions about the recently completed addition.
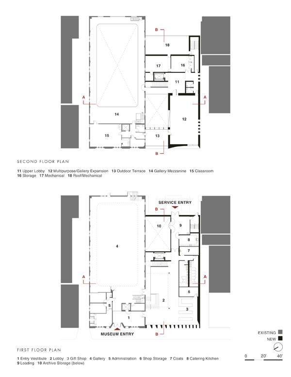
Can you describe your design process for the building?
Our process is guided by intense research and the exploration of design issues through models; for Winona, we worked iteratively across scales and media during the design phases as we studied the project’s potential formal, spatial, and material expressions. The small infill site and its charged historical context were both a constraint and inspiration, and we paid considerable attention to make sure the new addition was proportionally and materially conversant with the existing Armory. The client was also an invaluable resource throughout the design phases, especially in helping to source reclaimed materials from the region to use in the interior finishes.
How does the completed building compare to the project as designed? Were there any dramatic changes between the two and/or lessons learned during construction?
The development of design details through mockups is an integral part of our studio’s design process. The street-level colonnade in particular evolved during construction as we worked with the contractor and suppliers to develop an innovative system that seamlessly coordinated a custom rear-glazed curtain wall with precast and masonry components.
How does the building compare to other projects in your office, be it the same or other building types?
Our studio sees each project as a unique expression of purpose, program, and site. Though our focus is in museum and sacred typologies, the history and context that we drew inspiration from on the Winona County History Center engendered a truly unique response.
How does the building relate to contemporary architectural trends, be it sustainability, technology, etc.?
The client wanted a signature contemporary building that reflected our own era much as Winona’s signature historic buildings had in their own time. Rather than drawn on stylistic pastiche, the design of the addition takes cues from the materiality of its context and reinterprets them in a way that clearly reflects the building technologies and aesthetic values of our own time.
E-Mail Interview conducted by John Hill
Laird Norton Addition
at the Winona County History Center
2010
Winona, MN
Client
Winona County Historical Society
Architect
HGA Architects and Engineers
Los Angeles
Design Principal
Jim Goblirsch, AIA, LEED AP
Project Architect
John Cook, FAIA
Project Lead Designer
Joan M Soranno, FAIA
Project Manager
Jim Goblirsch, AIA, LEED AP
Project Team
Nicholas Potts, AIA
Michael Koch, AIA
Robert Johnson Miller
Structural Engineer
Sarah Jorczak, PE
MEP/FP Engineer
Ed Clements, PE, LEED AP
Electrical Engineer
Ben Gutierrez
Civil Engineer
Kenny Horns, PE, LEED AP
Landscape Architect
HGA Architects and Engineers
Lighting Designer
Tao Ham, PhD, LC, LEED AP, IESNA
Graphic Designer /
Environmental
Graphics Gretta Fry
Contractor
Alvin E. Benike, Inc.
Site Area
12,400 GSF
Photos
Paul Crosby Photography





