Lake House

4. January 2016

Lake House

2015
The Berkshires, Massachusetts, USA

Client
Private

Architect
Taylor and Miller
Brooklyn, NY

Design Principals
B. Alex Miller, Jeffrey Taylor

Structural Engineer
Georgi Petrov

Lighting Designer
Taylor and Miller Light

Contractor
Taylor and Miller Industries

Construction Manager
Jeffrey Taylor

Site Area
12,000 sf

Building Area
1,650 sf

Photography
Studio Dubuisson

What were the circumstances of receiving the commission for this project?

The clients are a Manhattan-based fashion executive and musician/music teacher who split their time between NYC and the Berkshires, Western Massachusetts. They found Taylor and Miller originally by seeing one of our previous projects in the Berkshires, the Pull House, in a feature in Dwell Magazine. Taylor and Miller Architecture and Design are based in New York with fabrications facilities in the Berkshires, so it seemed like a really good match in terms of aesthetic approach, proximities for meetings, and ease of coordination.  

Please provide an overview of the project.

This residence in Western Massachusetts maintains a dualistic relationship with the lake against which it is nestled. When seen from the street, the house is abstract in form, showing no aperture or puncture. As one steps down the walking path and towards the lake, however, the house opens itself up. A singular stacked timber wall, serving as both retaining wall for the landscape in which the home is embedded and as a primary enclosure for the home, becomes punctured intensely as the home turns towards the lake. A series of sleeves act as spatial leaks, breaking through the timber and allowing the interior spaces to reach out to the lake in the form of very specific views.

As one moves through one of the sleeves and into the interior of the home, two different spatial orientations are introduced – one horizontal orientation that is defined by the sleeves looking out to the lake and a vertical orientation that is defined by the sleeves looking up to the sky up to the sky. Each of these types of spaces is defined differently in their materiality. In the case of the spaces oriented horizontally, they are characterized by neutral tone and materiality. In the case of the spaces oriented vertically, they are characterized by their view of the sky through a skylight aperture and intense changes in material; the entry vestibule with stacked plywood, the kitchen with hot-rolled steel, and the stair with rusted steel. Moving through the home, these vertical spaces provide a kind of cinematic "hard cut" that interrupts the modernist notion of continuous flowing space as they present themselves between the horizontal spaces of more neutral character.

How does the design respond to the unique qualities of the site?

There was actually an existing home on the site.  Due to local zoning and code restrictions, the new home had to fit that original building footprint almost exactly.  So, although the new house is completely divergent in form and space from the original, there is an echo from the lake cabin that was originally there.  In early design discussions with the client, the notions of landscape in relationship to the home always became a primary topic of conversation.  Of course…  this is obvious given the position of the home alongside the beautiful Stockbridge Bowl lake… but it was more than that.  The houses that surround the lake are very closely packed together, which means that the views of the lake are very selective as one moves along the roadway that access all of the homes.  It’s almost as if the homes become a barrier to the experience of the very thing they are supposed to embrace. We wanted to avoid that.

TM wanted to intensely compose the way the home was experienced both from the arrival from the street (and car) but also as one moved from one space of the home to the next.  From the street, the ‘architecture’ is intended to be more abstract; more sculptural.  There is little about the white forms seen from the street side that would readily connote architecture; no windows, no doors, no welcome mats.  The mass of the home is as eroded as possible, leaving as much unencumbered view of the lake as possible.  As one moves from the parking area and around the stacked timber retaining wall via a set of steps that move their way down to the entry elevation, the first architectural opening is seen; this is the front door.

How did the project change between the initial design stage and the completion of the building?

Both the inside and the outside are defined by the juxtaposition of clean and abstract form and highly textured natural surfaces.  On the outside, this is defined by the basic timber retaining wall that unravels around the perimeter of the home and is meant to be of the landscape vs the more abstract white volumes that "leak" out from it beneath it.  On the inside, these material juxtapositions help to define a series of spatial "hard cuts" as one transitions from one space to the next.

During design discussions with the clients, we always described these internal transitions from one space to the next as "hard cuts" in a kind of cinematic way. One scene transitions very quickly without any fade into the next.  We also talked about it like a doll house or even Victorian home, where some of the spaces have a definitive "theme" that is associated with their use and that is defined by the material that wraps it.  We even showed some schemes during the design process where all of the interior spaces were wrapped in wallpaper…  but we ended up with a slightly different final composition.

What products or materials have contributed to the success of the completed building?

Aluminum sheet, welded, bonded, painted for the white volunes, stacked pine for the retaining wall, Cor-ten for the stairwell, stacked plywood for light well, and exposed concrete.

Email interview conducted by John Hill.

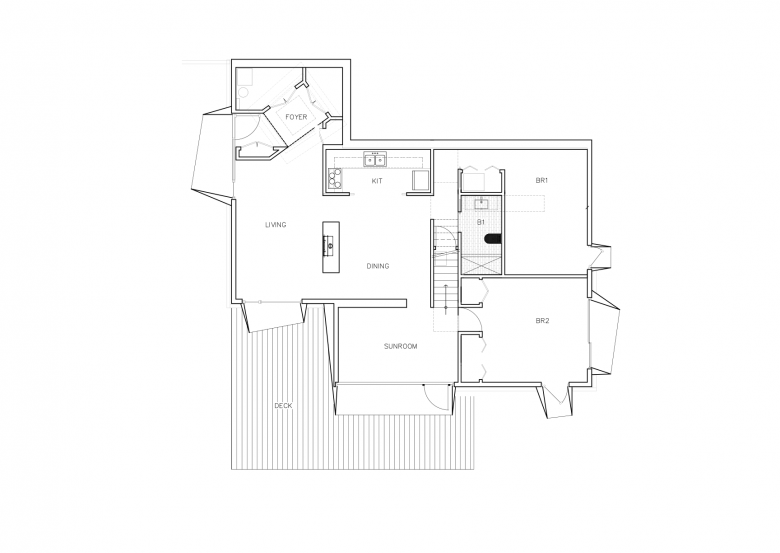
Lower floor plan
Upper floor plan
Elevation
Elevation
Elevation

Lake House

2015
The Berkshires, Massachusetts, USA

Client
Private

Architect
Taylor and Miller
Brooklyn, NY

Design Principals
B. Alex Miller, Jeffrey Taylor

Structural Engineer
Georgi Petrov

Lighting Designer
Taylor and Miller Light

Contractor
Taylor and Miller Industries

Construction Manager
Jeffrey Taylor

Site Area
12,000 sf

Building Area
1,650 sf

Photography
Studio Dubuisson

Related articles 

Other articles in this category