Lakewood Garden Mausoleum
Lakewood Garden Mausoleum
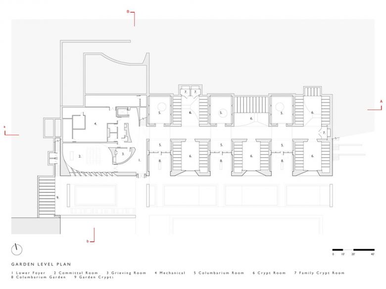
The Lakewood Cemetery in Minneapolis, Minnesota, is not alone in having to deal with a lack of land, symptomatic of development in American cities and suburbs. Yet this condition is balanced by the growing trend of cremation and other above-ground burials, which has pointed the way for Lakewood to build a second mausoleum. Designed by HGA Architects and Engineers, the mausoleum sensitively merges itself into the cemetery's landscape, reducing its impact on the surroundings but also creating a spiritual place, inside and out. Design principal Joan M. Soranno answered some questions about the project.
What were the circumstances of receiving the commission for this project?
This was a two-stage selection process. Lakewood Cemetery sent an RFQ to architects around the county. From there, Lakewood shortlisted the responses to five architects and invited them to respond to an RFP and interview process. In April 2010 Lakewood awarded the project to HGA Architects and Engineers.
Can you describe your design process for the building?
The design and research process took its cue from Lakewood itself, a lawn-plan cemetery inspired, in part, from by Père-Lachaise in Paris. My design partner, John Cook, FAIA, and I immersed ourselves in the project’s history, context and typology. We studied the background of Lakewood Cemetery and funerary architecture through numerous resources, from published books and documents to on-site tours of historic cemeteries around the country. We focused specifically on the relationship between architecture and landscape to gain a stronger understanding of how the new Mausoleum would fit within Lakewood’s historic context and landscape. This research helped illuminate not only Lakewood’s history but such related topics as the evolution of rural and lawn plan cemeteries in America, memorials and monuments, mausoleum design, funerary symbolism and iconography, and cemetery typology.
In addition, we met extensively with Lakewood’s stakeholders, including the president, the Mausoleum Building Committee, landscape designer Halvorson Design Partnership, and others to fully understand goals and priorities.
As the design concepts evolved from this research, we conducted rigorous 3-D visualization studies, utilizing both built models and computer simulation. We focused our studies on three themes—connection to nature, sense of intimacy, and use of natural light.
How does the completed building compare to the project as designed? Were there any dramatic changes between the two and/or lessons learned during construction?
We had a strong client who was committed to creating a singular and lasting piece of architecture. Everyone involved—from the general contractor to subcontractors—was invested in making this a meaningful project. We had a sound budget that reflected the expectations for the project. As a result, the Mausoleum was perfectly executed as designed with no compromises or budget overruns throughout the 20-month construction process.
How does the building compare to other projects in your office, be it the same or other building types?
Although we have done religious architecture before, this was our first mausoleum. The client was not necessarily looking for an architect with mausoleum experience, but rather someone who understood the unique potential of Lakewood Cemetery. A related project in architectural detail and artistic expression is Bigelow Chapel at the United Theological Seminary of the Twin Cities, which won a national AIA Honor Award for Architecture. As with Lakewood, we immersed ourselves in the research process, studying the background of the ecumenical seminary itself and the history of liturgical architecture. Our research focused on three driving qualities—intimacy, natural light and warmth. This tripartite of qualities is most evident in the sanctuary, where a series of curving, translucent maple panels filter natural light streaming through the windows, creating a peaceful, warm environment for reflection and prayer.
How does the building relate to contemporary architectural trends, be it sustainability, technology, etc.?
Lakewood Mausoleum is a contemporary expression of an enduring building type. Most traditional funerary architecture in this country tends to be dark, somber and inwardly focused. Yet Lakewood Mausoleum is outwardly focused through expansive windows and skylights, abundant natural light and a strong interior connection to nature and the landscape. Materials, too, reinterpret traditional architectural forms. The split-faced grey granite façade lends solidity while white mosaic tile framing the entrances and windows follows the traditional artistry of Lakewood Chapel’s intricate and colorful mosaic tesserae interiors from 1910, here reimagined in infinite loop patterns across white billowing surfaces.
Additionally, two-thirds of the program is tucked into the hillside, minimizing the Mausoleum’s visual presence on the landscape while offering thermal benefits and energy savings. A green roof over the crypt and columbarium rooms reduces rainwater run-off and heat gain as a white reflective roof over the remaining spaces further reduces heat gain.
Are there any new/upcoming projects in your office that this building’s design and construction has influenced?
Funerary architecture is an incredible opportunity to create meaningful architecture for a community. The Mausoleum allows visitors to experience a sense of peace and calm in an environment conducive to contemplation and healing. We are using our success with Lakewood to pursue similar projects.
Email interview conducted by John Hill.
Lakewood Garden Mausoleum
2012
Minneapolis, MN
Client
Lakewood Cemetery - Ron Gjerde, President
Architect
HGA Project Team:
Principal
Dan Avchen, FAIA
Project Manager
Steve Fiskum, AIA
Design Principal
Joan M. Soranno, FAIA
Project Architect
John Cook, FAIA
Project Team
Nick Potts, AIA, Michael Koch, AIA, Eric Amel, AIA, Steve Philippi, Jay Lane, Robert Johnson Miller, Ross Altheimer, ASLA
Structural Engineer
Paul Asp, PE, Soon Sim Hakes, PE
Mechanical Engineer
Craig Lemma
Electrical Engineer
Ben Gutierrez
Civil Engineer
Jim Husnik, PE
Lighting Designer
Tao Ham
Interiors
Rich Bonnin, Amy Ciani
Graphic Design
Gretta Fry
Outside Consultants:
Landscape Architect
Halvorson Design Partnership
Mausoleum Consultant
Carrier Mausoleums Construction, Inc.
Acoustics
Kvernstoen, Ronnholm and Associates
Audio Visual
Electronic Design Company
Reflecting Pool
Commercial Aquatic Engineering
Mosaic Tile
Tom D. Lynch, CSI
General Contractor
M.A. Mortenson Company
Owner’s Representative
Nelson, Tietz & Hoye
Building Area
24,500 s.f.
Photos
Paul Crosby Photography







