LAPD Motor Transport Division + Main Street Parking

LAPD Motor Transport Division + Main Street Parking

25. May 2011

LAPD Motor Transport Division + Main Street Parking
2009

Los Angeles, CA

Client
City of Los Angeles
Bureau of Engineering for Los Angeles Police Department

Architect
John Friedman Alice Kimm Architects
Los Angeles

Design Principal
John Friedman, FAIA

Project Architect
Claudia Kessner
Robert McFadden

Project Designer
Robert McFadden

Project Team
Alice Kimm, FAIA
Patrick Hwang
Ben Ragle

Architect of Record
DMJM Design

Structural Engineer
TMAD Taylor & Gaines

MEP/FP Engineer
TMAD Taylor & Gaines

Landscape Architect
Melendrez Landscape Architects

Lighting Designer
HLB Lighting Design

Contractor
S.J. Amoroso

Custom Stainless Steel screen manufacturer
W.S. Tyler / Haver Boeker

Site Area
76,150 SF

Building Area
300,000 SF

Photos
Fotoworks (copyright)

Street View at Dusk

What were the circumstances of receiving the commission for this project?

We were part of a team that was awarded this project through an invited competition. In 2005, the Los Angeles Police Department decided to hold a competition for a new headquarters and associated facilities. DMJM Design in Los Angeles (now part of AECOM) formed a joint venture with Denver-based Roth+Sheppard (known for their expertise with police facilities) to go after the project and invited us to be part of their team. Originally, our part of the project was a freestanding day care center for the children of LAPD employees, but 18 months after our team won the competition, the site for the project had been moved and our part in it had changed as well. From a day care center, our program switched to a mechanics’ garage serving the Department’s top officers, to which was eventually added an 800-car parking structure. Though DMJM was the Architect of Record for the project, we had full responsibility for the design, construction documents, and construction administration.

View from 2nd floor walkway

Can you describe your design process for the building?

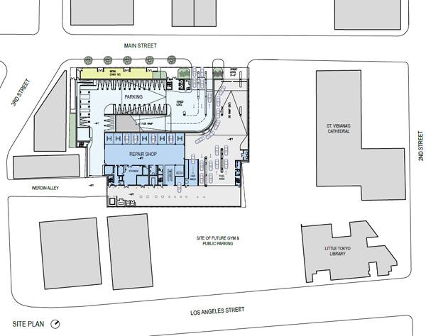
This project is located in the Historic Core of Downtown Los Angeles, one property away from LA’s oldest Cathedral and a block away from City Hall. As such, it was a controversial choice to locate this project here (not made by us) and our design needed to be sensitive to the cultural and historical qualities of the site – while still meeting a relatively tight budget.

In order to minimize negative impacts on the developing neighborhood, we located the mechanics’ garage at the rear of the site, one-half level below the street, where it could not be seen or heard. We set the main volume of the structure twenty feet back from the sidewalk in order to preserve views of St. Vibiana’s Cathedral, which until recently was the home of the Archdiocese and now serves as a cultural center. Between the main structure and the sidewalk, we designed a one-storey, completely glazed structure (slated to be an art gallery) whose purpose is to activate and enliven the street.

Holding all these elements together is an undulating, vertically-banded, stainless steel mesh screen which stretches across the full width of the 300-foot long structure. Serving as an ever-changing veil for the structure, it performs on a number of levels. Painted in a pattern of leaf-like forms, it creates a dynamic, joyful image that suggests the “greening” of Los Angeles, while also acknowledging the district’s reputation as one of the most active centers of art galleries in the City. (The City would not allow us to integrate living plants into the design.) The metal mesh also provides a high level of security for the LAPD employees in a manner that allows the structure to be naturally ventilated. Lit up at night, it creates a warm, friendly glow for the neighborhood.

Street View with Retail in foreground

How does the completed building compare to the project as designed? Were there any dramatic changes between the two and/or lessons learned during construction?

The project was built as designed. This was a public project built by a low-bid contractor, and though there were challenges along the way, by having a solid set of drawings, and fighting for what we thought was fair and right, we manage to realize a project with the quality and design features that the City paid for and expected.

Site Plan

How does the completed building compare to the project as designed? Were there any dramatic changes between the two and/or lessons learned during construction?

The project was built as designed. This was a public project built by a low-bid contractor, and though there were challenges along the way, by having a solid set of drawings, and fighting for what we thought was fair and right, we manage to realize a project with the quality and design features that the City paid for and expected.

Exploded Axonometric

How does the building compare to other projects in your office, be it the same or other building types?

This is the only parking structure and mechanic’s garage that we have done, so it was a programmatic first for us. Most of our projects these days are residential, institutional, or educational. Having said that, the emphasis on a dynamic, colorful element that activates public (or semi-public) space is something that we have incorporated in a number of our projects, and it was an enjoyable challenge to undertake this kind of element at a much larger scale. We are pursuing more of these types of projects now.

Screen Section

How does the building relate to contemporary architectural trends, be it sustainability, technology, etc.?

More and more buildings these days create their identities through strong graphic imagery on their public facades, often in combination with dynamic textures, interesting patterns, and carefully detailed screens that serves as second skins to the main body of their structures. I would say that this project reflects this trend. It recognizes that the bulk of the building needed to be handled in as straightforward and efficient a manner as possible. But facing the street, the lightweight stainless steel screen creates a contrasting element that belies the massive concrete box that it veils, even as it performs all of the necessary functions required of it.

Are there any new/upcoming projects in your office that this building’s design and construction has influenced?

Not at the moment, except that we are, and always have been, eager to explore ways to create effective and surprising architectural images for our projects – as a way of giving them effective identities or brands, and to enliven and give meaning to our urban environments and experiences.

E-Mail Interview conducted by John Hill

LAPD Motor Transport Division + Main Street Parking
2009

Los Angeles, CA

Client
City of Los Angeles
Bureau of Engineering for Los Angeles Police Department

Architect
John Friedman Alice Kimm Architects
Los Angeles

Design Principal
John Friedman, FAIA

Project Architect
Claudia Kessner
Robert McFadden

Project Designer
Robert McFadden

Project Team
Alice Kimm, FAIA
Patrick Hwang
Ben Ragle

Architect of Record
DMJM Design

Structural Engineer
TMAD Taylor & Gaines

MEP/FP Engineer
TMAD Taylor & Gaines

Landscape Architect
Melendrez Landscape Architects

Lighting Designer
HLB Lighting Design

Contractor
S.J. Amoroso

Custom Stainless Steel screen manufacturer
W.S. Tyler / Haver Boeker

Site Area
76,150 SF

Building Area
300,000 SF

Photos
Fotoworks (copyright)

Related articles 

Featured Project 

Atelier KI JUN KIM

House by the Wall

Other articles in this category