Architecture Building Culture
Laura’s Place
Central City Concern’s Letty Owings Center treats mothers for drug addiction and alcoholism, while also teaching them essential parenting skills. Laura's Place serves women who have "graduated" from Letty Owings, giving them a place to translate those skills to everyday life. Designed by Portland, Oregon's Architecture Building Culture, Laura's Place expresses its goals by taking on the simple form of a dwelling. The architects answered a few questions about the project.
Project: Laura’s Place, 2015
Location: Portland, Oregon, USA
Client: Central City Concern
Architect: Architecture Building Culture, Portland
Design Principals: Brian Cavanaugh AIA AIBC NCARB, Mark Ritchie AIBC MRAIC ANZIA
Project Architect/Manager: Brian Cavanaugh AIA AIBC NCARB
Project Team: Samuel Orr MRAIC LEED AP BD+C
Structural Engineer: Nickerson Engineering
Contractor: O'Neill Construction Group
Site Area: 5,000 sf
Building Area: 660 sf (new construction), plus interior & exterior renovations, site improvements, new entry decks, new solar hot water
What were the circumstances of receiving the commission for this project?
We received the project through a public RFP (Request for Proposals) process.
Please provide an overview of the project.
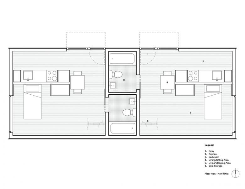
Laura’s Place is a supportive transitional housing facility for women who have graduated from Central City Concern’s Letty Owings Center, an in-patient treatment facility that also provides health services to pregnant or parenting women. Laura’s Place offers mothers who have successfully completed their treatment programs a communal home where they can take their next step in the recovery process and translate new skills to everyday life. Laura’s Place serves an average of 16 women and 16 children every year.
The existing facility is comprised of four efficiency units and a day-lit basement and garage. The project expands the capacity of Laura’s Place by adding two new housing units via a strategically positioned addition and creative use of density bonuses. The site’s R5 zoning allowed for five units as of right. Additional density was achieved through the application of a series of amenity bonuses, which included expanded outdoor space, solar hot water for all units, and safety and security improvements. All of which combined to transform the facility and site within the confines of tight funding constraints.
What are the main ideas and inspirations influencing the design of the building?
We saw the fundamental role of the expansion of Laura's Place as one of reflecting, supporting, uplifting and, in many ways, transforming the cultural context of the residents. This was done in a number of ways from the overall site planning to the design the new transitional housing units. The emphasis was to create a safe, supportive and propelling transitional home for the mothers and their children.
Reflecting Community
The initial site planning move of locating the two new units on the north end of the site formed an 'L' shaped configuration with the existing building creates a shared courtyard at the heart of the site. This courtyard is then the extension to the new common room which was previously the garage. In this way, the project reflects and facilitates a critically important element of the recovery process — community.
Reflecting Home
Another critical aspect of the recovery process at Laura's Place is providing a sense of home for the mothers and their young children. The challenge we set out for ourselves was to create multiple spatial/programmatic conditions within the 330 square feet of each new housing unit (see slides 4,5,6,7), thus reflecting a sense of home.
How does the design respond to the unique qualities of the site?
Fundamental to the planning of the expanded facility was the siting of the new building. Site analysis showed that the north side of the site provided the greatest transformative potential. By placing the addition in this location the project improves overall site accessibility by eliminating the existing elevated grade and establishes the communal heart to the facility by creating a courtyard directly adjacent to the new Common Room.
The Common Room and expanded outdoor areas were added by renovating the existing garage and providing new lawn areas and shared entry decks. The safety and security of the facility was improved through a comprehensive redesign of the site providing well defined points of access to the individual units, new site and entry lighting, and redesigned landscaping that creates greater visibility of the facility.
The two new 330-sf units are comprised of a small kitchen, living and sleeping area, and bathroom. Each unit is conceived as a single generous volume that is programmatically defined by the placement of a plywood casework block. One side of the block creates the kitchen, and the other side creates the living and sleeping area. In this way the domesticity of each unit is made more complex through the subtle creation of multiple spatial conditions within a simple volume.
What products or materials have contributed to the success of the completed building?
The cladding of the two-unit addition provided a new aesthetic direction for the overall facility. A durable black composite roof shake (EcoStar Seneca) was used for both the roofing and cladding for the addition’s north and south elevations outlining the gabled building form. The same shake was then used to reroof the mansard parapet of the existing building.
In support of Central City Concern in their mission to provide safe housing to families in need, Innotech donated all new windows, doors, and window and door coverings. Their generousity greatly contributed to the overall design aesthetic and performance of Laura’s Place.
Email interview conducted by John Hill.
Related articles
-
-
The Three-Body Problem: Trapped in a Wave Sandwich
Eduard Kögel, Scenic Architecture Office | 13.04.2026 -














