Lawrence Public Library Expansion and Renovation
Lawrence is a city of about 90,000 people in northeast Kansas, best known as the home of the University of Kansas (KU). The university's presence means Lawrence has a thriving downtown, one that stretches along Massachusetts Street. Near the north end of the street is the Lawrence Public Library, which was renovated and expanded by Gould Evans "to establish a new 'place' within the downtown area." The architects answered a few questions about the project.
What were the circumstances of receiving the commission for this project?
The process we went through with the community began about ten years ago. Around 2005, there was a community workshop that tested ideas for a new library location. We had been in close contact with the library director at the time, so he took interest in what we had developed. The project got tabled for some time, but when a new mayor of Lawrence was elected, he took interest in the library again and wanted to begin a campaign for a bond issue. Designers from Gould Evans then helped the library and city representatives conduct a study and produce preliminary designs to assist in the promotion of the bond campaign. On November 2, 2010, Lawrence voters approved a referendum to expand and renovate the Lawrence Public Library and increase parking for the library, senior center, outdoor pool, and downtown Lawrence. The project received $18M from the local Lawrence government and library funds, as well as a private gift of $1M to expand the library and build the parking garage.
Please provide an overview of the project.
The renovation and expansion of this 1970s concrete library has transformed it into a 21st century civic place: from book repository to multimedia community hub. The design solution wrapped the existing library on all sides with a continuous reading room, emphasizing places of spontaneous gathering, reflection and learning. The addition also provides a high-performance thermal envelope engineered to harvest daylighting and reduce energy usage. Openings at each corner reveal unique public amenities, including children's cubbies, teen gaming zones, meeting spaces and a coffee bar. Within a few months of reopening, user visits increased 55%, with youth program attendance up 160%.
What are the main ideas and inspirations influencing the design of the building?
Through extensive community dialogue, the citizens of Lawrence voiced their thoughts and established key design considerations for the project, including an enhanced children’s area, greater access to technology and an emphasis on environmental sustainability. The citizens recognized the significance of the library’s location in the community and the opportunity it provided to establish a new “place” within the downtown area.
How does the design respond to the unique qualities of the site?
The existing library, designed by Lawrence architecture firm Robertson, Peters Ericson, Williams P.A. and constructed in 1972, was uninviting due to poor thermal performance, difficult wayfinding and a lack of daylighting and openness. Library attendance was down, particularly with younger generations. Gould Evans responded with a design that addresses the changing role of the library in the 21st century.
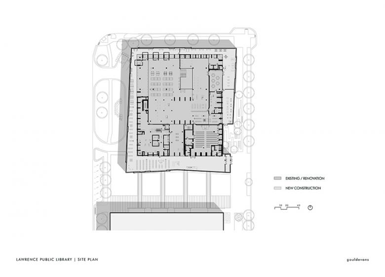
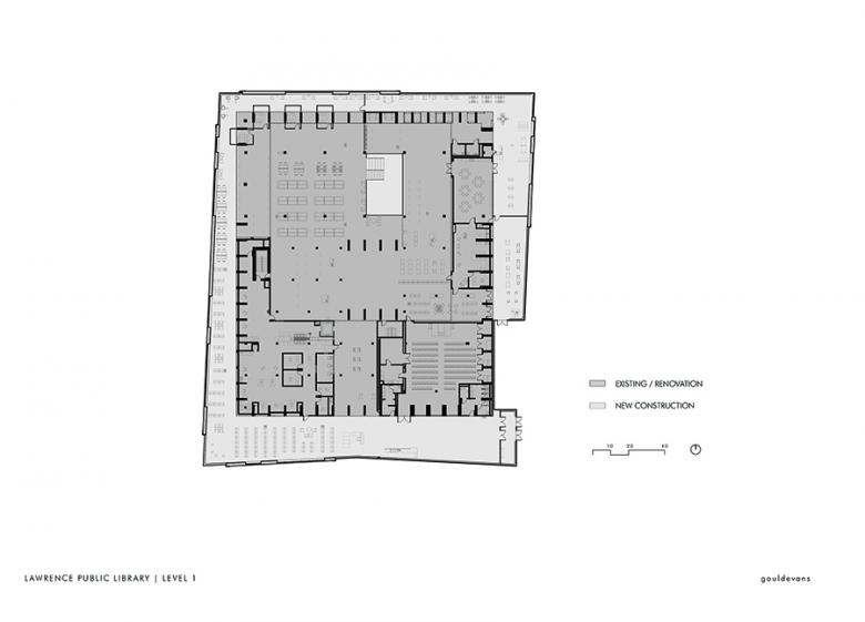
The design for the addition is based on a simple expansion diagram. A continuous reading room wraps the existing library on all sides, transforming it into a forward-looking, community-centered place. Each new elevation opens up to a different public constituency: neighborhoods to the west, the post office to the north, downtown to the east and a new plaza to the south. Each corner is designed with floor-to-ceiling curtain walls that reveal glimpses of spaces like children’s cubby areas, teen gaming zones, small meeting spaces, and a coffee bar in the main lobby.
In addition to stacks for books and periodicals, the addition and renovation provides dedicated areas for different age groups and places emphasis on community gathering places over silent spaces. New youth areas are organized around two main zones: a younger children’s zone and a teen zone, each with appropriately scaled technologies. Meeting and maker spaces are also distributed throughout the library, adjacent to and in support of the other library spaces.
How did the project change between the initial design stage and the completion of the building?
In the beginning, the façade was highly porous throughout, so we re-designed it with the intent to be more selective with large openings, creating views of the community at the plaza and at the corners. Openings in the rest of the facade were treated much more judiciously to create a more pleasant reading environment and preserve the books.
The main circulation workroom, which was on the lower level and adjacent to the new drive-thru book drop off, was shifted up to the main level, making it adjacent to the main entry and pedestrian traffic. This change was a result of the new library director coming on board.
Was the project influenced by any trends in energy-conservation, construction, or design?
The sustainable design strategy for the addition focused on increasing energy efficiency via daylight harvesting throughout the interior, improving thermal performance via the terra cotta rain screen system, and strategic sun-shading to eliminate glare. Most expansions are added to one side of the building; however, we chose to wrap the existing library on all sides with the addition. A striking new high-performance building envelope enabled us to transform a familiar institution and make it more sustainable at the same time. The new library now uses less energy than it did before the addition.
While not tied directly to energy savings, the existing building and mechanical systems were re-used rather than completely replaced, which reduced some of the embedded energy involved in building a new structure. The net result of these strategies was the library was able to increase its size by 50% while actually reducing the building’s energy consumption. The building is in the LEED certification process.
What products or materials have contributed to the success of the completed building?
Three primary building materials were selected to work in concert with each other and convey the concept of a continuous experience for patrons. A high performance terra cotta rain screen is the primary exterior material. This was selected as a gesture to the historic red brick of downtown Lawrence while demonstrating a very modern application: its high-performance assembly helps control thermal transfer from exterior to interior. Clear-coated tongue-and-groove ash paneling installed over the previous exterior walls of the original library form a continuous interior surface, providing warmth in contrast to the original painted concrete walls. An abundant use of glass opens the library up at each of its corners and via new skylights and clerestories, bringing light into the core of the original library.
Email interview conducted by John Hill.
Lawrence Public Library Expansion and Renovation
2014Lawrence, Kansas
Client
City of Lawrence, Kansas
Architect
Gould Evans
Kansas City, Missouri
Design Principal
John Wilkins
Project Architect
Sean Zaudke
Project Manager
Steve Vukelich
Project Team
Kelly Dreyer, Jonathan Holley
Structural Engineer
Bob D. Campbell and Co., Inc.
MEP/FP Engineer
Professional Engineering Consultants, PA
Landscape Architect
Bartlett & West Engineers, Inc.
Lighting Designer
Professional Engineering Consultants, PA
Interior Designer
Anna Morrell, Gould Evans
Contractor
B.A. Green Construction Co., Inc.
Construction Manager
B.A. Green Construction Co., Inc.
Civil Engineering
Bartlett & West Engineers, Inc.
Sustainable Design Consulting
Syska Hennessey Group, Inc
Terracotta Rain Screen
NBK (Terrart-Mid, smooth and sawtooth profiles)
Storefront and Curtain Wall Glazing
EFCO (S433 Storefront, S5600 Curtain Wall)
Tongue-and-Groove Wood Planks
Ash with clear finish, supplied by Cabinetry and Millwork Concepts
Metal Baffle Ceiling
Lindner (LMD-L 601, 3 colors)
Solar Daylighting System
Solatube (750 DS)
Site Area
112,000 sf, includes parking structure
Building Area
20,000 sf addition, 50,000 sf renovation
Photographs
Tim Griffith
Drawings
Gould Evans











