Legacy ER | Allen
Healthcare architecture brings to mind large buildings and complexes with fairly generic exteriors and interiors to match. This is not the case with Legacy's small emergency rooms in suburban Dallas, Texas, designed by 5G Studio Collaborative. In the second and most recent ER, in Allen, a buoyant exterior of pleated zinc panels is balanced by light-filled interiors. The architects at 5G Studio answered a few questions about the building.
What were the circumstances of receiving the commission for this project?
5G designed Legacy ER's first facility in Frisco, Texas, which launched its business and brand. It was a start-up company founded by three young emergency physicians. Since its beginning in 2008, Legacy ER has been voted consistently by the citizens of Frisco as the best emergency room in the city for the past five years. Building on the brand hallmark of having an outstanding facility design, Legacy ER opted to replicate the success model and directly appointed 5G as their architect.
Please provide an overview of the project.
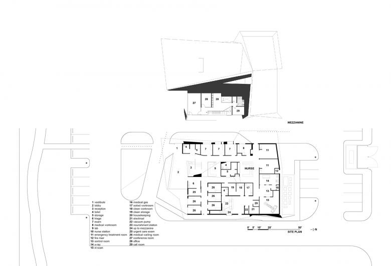
Running a hybrid program comprising of urgent care and 24/7 state-licensed emergency Room functions, Legacy ER aims to advance community access to high-quality healthcare services by positioning the architectural significance of its facility into direct alignment with its goal of elevating the patient care experience to an unprecedented level. The facility is an 8,432 SF building containing (1) Triage, (3) Exam Rooms, (5) Urgent Care Rooms, (2) Emergency Treatment Rooms, (1) X-Ray Room, and (1) CT-Scan Room, along with Administrative Offices and Clinical Staff Areas. Provisions were made for a Physicians' Call / Nap Room, a hospitable double-height Staff Lounge, and the On-Stage / Off-Stage division between the Clinical Staff and the Patient / Public.
What are the main ideas and inspirations influencing the design of the building?
Conceptualized as a potent reflection of the organization’s identity, the architecture sought to capture in aesthetic terms the duality of the emergency medical professionals' character, projecting outwardly the knowledge, skill, precision, and decisiveness necessary for the competent practice of emergency medicine and expressing inwardly the gentle, empathic, and humanistic qualities of the persons beneath the robe.
The building profile extrapolated the conventional residential roof planes and was given a new tectonic grammar to drive its programmatic transformation around the building. Gradient perforated panels were mapped onto the exterior surfaces to allow for diffusive building lighting and passive solar shading. Zinc, being the most sustainably-sourced metals for construction, was selected for its inherent greyish-blue warmth and resiliency during extreme Texas weather events. The zinc panels were patterned to maintain continuous readings of the vertical standing seams with knife-edged thickness along their planar perimeter.
Relating in contrast, the interior spaces blur their edges and receive natural and artificial light softly. The points of admission of natural daylight and outdoor views create apertures that penetrate through the building envelope and interior planes and elucidate those intersecting tectonic moments. The atmospheric quality of the interior continually morphed in response to the natural climatic conditions and poetically linked the users to nature. The detailing of the interior skylights read as frameless apertures puncturing through the exterior membrane. At the material level, the mirror aggregates in the polished concrete floor mix and the frosted glass panes reflected the outdoor light colors and set a pleasantly calming ambiance.
The building integrated the principles of Evidence-Based Design within its spatial, circulatory, and sensory structure while being careful not to create a facility that could be perceived as overly methodical. Multiple skylights were situated at strategic intersections of the circulation to form a sensible system of way-finding. The components of workspaces were designed for peer collaboration, patient accessibility, and data privacy, while the patient care areas were crafted for hospitality and treatment efficacy to reduce errors in the administration of medicine. The off-stage environment of the medical staff was as well accounted for; the staff lounge and office areas were connected through a daylight-filled double-height space and were provided access to a balcony tucked under the zinc roof.
From outside in, the project sought to propose an architectural possibility for an emerging delivery model that fulfilled the functional program, as a baseline, and elevated the experience of seeking medical care within a contextually catalytic structure.
To what extent did the clients and/or future users of the building influence the design and the outcome of the building?
The building program combines Urgent Care and Freestanding Emergency Medical Care facilities under one roof which allows patients to utilize the facility for the broadest possible range of services without having to discern their needs themselves. Hospital-based emergency departments are becoming inadequate, due to the increasing number of emergency medical care visits, generally a nationwide problem. The high demand for the service, the challenges of rapid growth, insufficient funding, rising operational costs, among other issues set the stage for a new and more efficient model of care delivery to emerge. The state of Texas is leading the charge in the development of these new state-licensed freestanding emergency medical care facilities by the numbers. With the Legacy ER at Allen building, the quality of the architecture, in aesthetic and pragmatic terms alike, was intended to set a paradigm of emergency medical care architecture for years to come.
For the longest time, healthcare architecture had to struggle with its imagery and representation in addition to the operational efficiency ratio per building area. Emergency medical care facilities were traditionally a programmatic requirement of a general hospital which tended to mean that they had to adopt the architectural baggage that came with being part of a larger institution. With the newly accepted model of State-licensed freestanding emergency medical care facilities, the opportunity has presented itself for these facilities to express themselves independently from the larger institution, to formulate themselves into the more confident architectural presence within the communities they enter. They can also plan their operational models to be as efficient as their owners and designers can conceive, within the State-licensing guidelines. Recent improvement in healthcare architecture has benefited greatly from empirical data derived from Evidence-Based Design (EBD) research. The research has assisted owners, operators, and designers in learning new ways of doing things that result in better care delivery; it is an important stride. How does one synthesize these various findings into a coherent architectural thought and design without creating a building that can be perceived as being overly methodical? We propose instead that healthcare architecture can begin with the questions of human experiences, evaluated through the lens of EBD. It will do well to care for its users by providing spaces that support intangible healing and lift their spirits. Healthcare architecture, after all, is one of the last defenses of human welfare.
How would you describe the architecture of Texas and how does the building relate to it?
Texas architecture is characterized by the expression of local construction techniques referencing structural expression and materials found in its agricultural and mining economy. It is also influenced by the historical remnants of the Spanish Missions. Being a host to a group of cities that boast the fastest population growth rates in the US, the suburban cities have been affected by the aggressive housing demands which continue to give way for speculative home builders with the capacity to meet the demand. This project is located in Allen, Texas, a suburban city located 25 miles North of Dallas, situated among open fields and nondescript suburban development. It administered an episodic architectural intervention to agitate the chronically lethargic context beyond its lot line. Beginning with a landscape design strategy that reconciled nature and man-made settings, drought-tolerant vegetation species such as the cedar elm trees, pink muhly grass, weeping love-grass, and buffalo-grass were selected and subtle grading of land were composed to evoke memories of natural landscape forms. The soft- and hard-scape elements seamlessly dissolved their boundaries along the public domain. The building profile extrapolated the conventional residential roof planes and was given a new tectonic grammar to drive its programmatic transformation around the building.
Email interview conducted by John Hill.
Legacy ER | Allen
2013
Allen, Texas
Client
Legacy ER
Architect
5G Studio Collaborative
Dallas, TX
Design Principal
Yen Ong
Project Architect
Paul Merrill
Project Manager
Christine Robbins-Elrod
Project Designer
Josh Allen
Interior Designer
Danielle Cross
Structural Engineer
Datum Engineers
MEP/FP Engineer
Jordan & Skala Engineers
Landscape Architect
SMR Landscape Architects
Interior Designer
5G Studio Collaborative
Contractor
UEB
Civil Engineer
RLK Engineering
Zinc
Rheinzink
Curtainwall
YKK AP
Glass
PPG
Skylight
Velux
Automatic Door
Besam
Site Area
1.3 acres
Building Area
8,432 sf
Photographs
Michael Moran/OTTO
Drawings
5G Studio










