Library Park España

Library Park Santo Domingo

7. October 2008

Library Park España
Santo Domingo
2007

Medellín
Colombia

Architecture
Giancarlo Mazzanti
 
Project Team
Andrés Sarmiento
Juan Manuel Gil
Freddy Pantoja
Pedro Saa
Gustavo Vásquez
Iván Ucros
 
Contractor
Alcaldía de Medellín
Arquitectura y Concreto
 
Structural Engineering
Sergio Tobon
Alberto Aschner
 
Constructed Surface Area
2,960 m2

Photos: Sergio Gómez

The mountainous outskirts of the city are made up of an intricate network of paths created by the irregular terrain and the vestiges of green areas. Since it was not possible to build on the mountain, points of encounter were sought out to interconnect the public spaces, in the manner of great urban "pier" stretching out over the city, and to make the most of the exiting urban communication network by connecting the work to the lookouts develops by the Medellín Urban Development Company and the "metro-cable" station.

The complex consists of three volumes of different sizes and
heights, perched on the slope like artificial stones. Its form reflects that of the enormous rocks on the summit, redefining the folded structure of the mountain.
The design is articulated around two structures: first, the artificial vertical rocks, which organize the program into three large blocks: library, community center, and cultural center; second, the platforms on which the buildings rest, with their roofs serving as public plaza and mirador.

The image projected is variable, defined by the changes in light and the position of the viewer, because of the turns and deformations in the planes that generate the folds. Lit up at night, the three pieces create an urban symbol, regenerating the public activity of the zone.
The objective was to create atmospheres rather than architectures, places for education which evolve from a system of abstract organization to one of environmental relations, in which objects work not only by their position, but foster the interaction of systems of ambiences. The sequence of changing, thematic vertical and lineal circulations makes for the possibility of different kinds of events and activities.
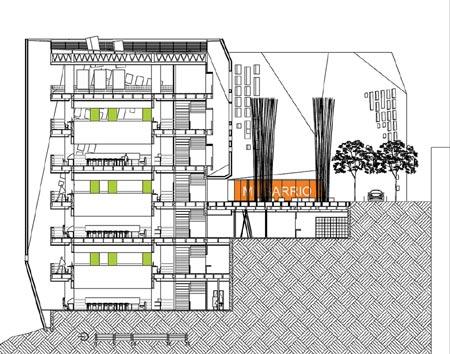
The black slate panels of the façade and the modules are supported by a porticoed structural system of reinforced concrete, with each module independent of the platform. This creates a grid of metallic columns filled with concrete and a retaining wall of stone gabion backed by concrete. Rolled vinyl floors of different colors and patterns mark off the educational areas.

First Level Plan
Second Level Plan
Section

Giancarlo Mazzanti (Barraquilla, 1963) graduated as an architect from the Universidad Javeriana in 1987. He studied industrial design and the history and theory of architecture in University of Florence (1991). He has taught at the Universidad Javeriana, the Universidad de los Andes, and the Universidad Tadeo Lozano in Bogotá. Since 1995 he has been at the head of his own firm. In 2006 he won in the Public Space category at the XX Colombian Architecture Biennial for his Parque Tercer Milenio.

Library Park España
Santo Domingo
2007

Medellín
Colombia

Architecture
Giancarlo Mazzanti
 
Project Team
Andrés Sarmiento
Juan Manuel Gil
Freddy Pantoja
Pedro Saa
Gustavo Vásquez
Iván Ucros
 
Contractor
Alcaldía de Medellín
Arquitectura y Concreto
 
Structural Engineering
Sergio Tobon
Alberto Aschner
 
Constructed Surface Area
2,960 m2

Related articles 

Other articles in this category