Robert Maschke Architects
little_BIG house
Folded metal roofs and black stucco walls unite the two parts of the little_BIG house, which is located on a narrow lot in Cleveland's Little Italy neighborhood. Robert Maschke Architects' design responds to the client's wish for a house and studio and for the flexibility to split the property into separate homes in the future. An enclosed outdoor space is formed by the two volumes. The architects answered a few questions about the project.
What were the circumstances of receiving the commission for this project?
The little_BIG house is located in Cleveland, Ohio’s historic Little Italy neighborhood, known for its rich culture and artisanal background. The husband and wife client, both industrial designers, commissioned the project to create a studio for their work and a home to raise a growing family. The site, one of the few available buildable lots in the area, was a challenge as it had an imposing and collapsing retaining wall to the rear, a condemnable house, and a public utility pole situated in the middle of the property.
Please provide an overview of the project.
The residence is located on a dense and constrained urban street away from the idyllic neighborhood center. The site is narrow and bound by three “shot gun” homes to the north, a retaining wall to the east, and a multi story condominium to the south. A former open framed steel warehouse, now used as a covered surface parking structure, is to the west, obstructing views from the site. The imposition of these structures help to inform the design approach.
What are the main ideas and inspirations influencing the design of the building?
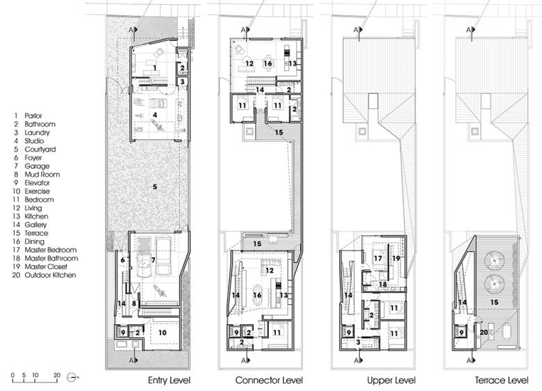
The architecture emerges from the reconciliation of inherent contradictions embedded within the site and program. The client desired an urban presence, while also creating private exterior space secluded from the surrounding context. The couple asked for flexibility to "split" the property into independent homes in the future. In response to these constraints, the massing of the house became parsed into two distinct volumes, pushed to the extreme boundaries of the site, connected by a covered bridge. This organization creates a communal courtyard from the residual space between the volumes. A monumental stair connects the various programmatic elements. The stairwell folds upon itself overlapping and separating, creating a visual connection between levels. The movement of the stair is evident on the metal surface of the exterior envelope, a folded logic that unites the parts into a cohesive whole.
How does the design respond to the unique qualities of the site?
The site is narrow and deep with imposing structures on both sides. The view is fairly unremarkable, forcing the solution to impose an internal view within the project.
How did the project change between the initial design stage and the completion of the building?
Apart from a few minor modifications to enhance the project, the design stayed true to the original concept.
Was the project influenced by any trends in energy-conservation, construction, or design?
The project was not influenced by any trends but took advantage of contemporary construction techniques, materials, and a sophisticated HVAC Systems. The project is a continuation of the dialogue in our studio on a daily basis.
What products or materials have contributed to the success of the completed building?
The material palette is simple and elegant. The exterior facade is black stucco concrete in concert with a color-matched metal folding wall and roof. Patterned Cor-ten panels provide privacy from the street and the adjacent properties through their use as entry gate and perimeter fencing. The interior is composed of hard troweled concrete floors with white walls, floor to ceiling book matched and sequenced marble slabs in the bathrooms, and richly colored bamboo for the architectural millwork and stairs. Additionally, the monumental stairwell is veiled in white perforated steel panels. This textured strategy is implemented on select glazing units through etching. These patterns were developed through a series of photo manipulations of light passing through a bamboo forest. A transposition inspired by the materiality of the millwork and stairs.
Email interview conducted by John Hill.
little_BIG house
2016Cleveland, Ohio
Client
Withheld
Architect
Robert Maschke Architects
Design Principal
Robert Maschke, FAIA
Project Team
Robert Maschke, FAIA; Marc Manack, AIA; Matt Lindsay, Associate AIA
Structural Engineer
I.A. Lewin, P.E. and Associates
Lighting/Interior Designer
Robert Maschke Architects
Contractor
Schirmer Construction Company
Construction Manager
Robert Maschke Architects
Doors and Windows
Kolbe
Bamboo Surfaces
Plyboo
Metal Roof
Garland
Toilets and Sinks
Toto
Building Area
5,475 sf
Photographs
Brad Feinknopf
Drawings
Robert Maschke Architects











