Little House on the Ferry
In name, this house recalls Little House on the Prairie, the books and television series about one family's life in the American Midwest in the late 1800s. It's fitting then that Little House on the Ferry is composed of three separate volumes rather than one: moving from living space to bedrooms requires braving the elements. Further, akin to 19th-century log cabins, this house in Maine is made from the 21st-century equivalent: cross-laminated timber. The architects at Go Logic answered a few questions about the project.
Please provide an overview of the project.
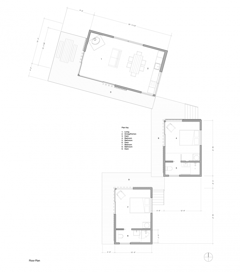
The project is a seasonal residence comprised of three separate structures linked by elevated wooden decks. The main volume contains a kitchen, dining, and living space. The two smaller volumes each contain a bedroom and a bathroom.
What are the main ideas and inspirations influencing the design of the building?
The design was inspired by the traditional structures typical of the island setting, which include "fish houses" – workshops located on the water that lobstermen use to tend their traps. Historically these structures were simple structures with little or no eave and clad in weathered cedar shingles.
How does the design respond to the unique qualities of the site?
The project is located on the site of and old granite quarry. The ground is sloping and uneven. The separate structures step with the topography and orient along the primary cut in the old quarry wall. The placement of the structures also responds to and frames views.
How did the project change between the initial design stage and the completion of the building?
During initial design work, schemes that proposed a single structure were considered. The decision was made to proceed with a dispersed organization of volumes because the separate structures allowed for guests to have a greater degree of autonomy and privacy.
Was the project influenced by any trends in energy-conservation, construction, or design?
The buildings are constructed entirely of cross laminated timber (CLT) panels made of spruce. This prefabricated construction method saved on-site labor while providing both structure and finish.
What products or materials have contributed to the success of the completed building?
The buildings are clad with locally sourced eastern white cedar slats that will weather to silver gray in the coastal environment. On the interior the wood grain of the CLT panels provides texture to the walls and ceilings.
Email interview conducted by John Hill.
Little House on the Ferry
2014Vinalhaven, Maine
Client
Nicholas van Praag, Nadja Zerunian
Architect
GO Logic Architecture
Belfast, Maine
Project Architect
Riley Pratt
Structural Engineer
Bensonwood
Contractor
CW Conway and Sons
Cross Laminated Timber (CLT) Panels
Nordic Structures, Canada
Windows and Doors
Arcadia Windows and Doors
Site Area
< 1 acre
Building Area
890 sf
Photographs
Trent Bell
Drawings
Go Logic







