Little Owl Preschool

Little Owl Preschool

9. January 2012

Little Owl Preschool
2010

Long Beach, CA

Client
Watt Development

Architect
Architecture M Inc.
Long Beach, CA

Design Principal
Meg Beatrice, AIA, LEED AP

Structural Engineer
MHP Structural Engineers
Ken O'Dell, SE, Vice President

MEP/FP Engineer
Davar and Associates
Gilbert Dilanchian, PE, Principal

Lighting Designer
LRA Engineers
Cirilo Regalado, EE, Principal

Interior Designer
Architecture M
Meg Beatrice

Contractor
JV General Building Contractor
John Vengoechea, Owner

Living Wall
Seasons Landscaping
Scott Hutcheon, Principal

Green Roofs
Green Grid

Site Area
16,100 sf

Building Area
8,130 sf (including 1,030-sf roof garden)

Photos and Drawings
Wajid Drabu

View of school from northeast corner of site

Can you describe your design process for the building?

The developers were looking for a strong sense of nature on the site, and my primary goals were to create a building that supports the teaching process, is friendly for the children, and utilizes passive strategies for environmental controls.  The flat, narrow lot created challenges as the program needs were sizable for the small site.
    
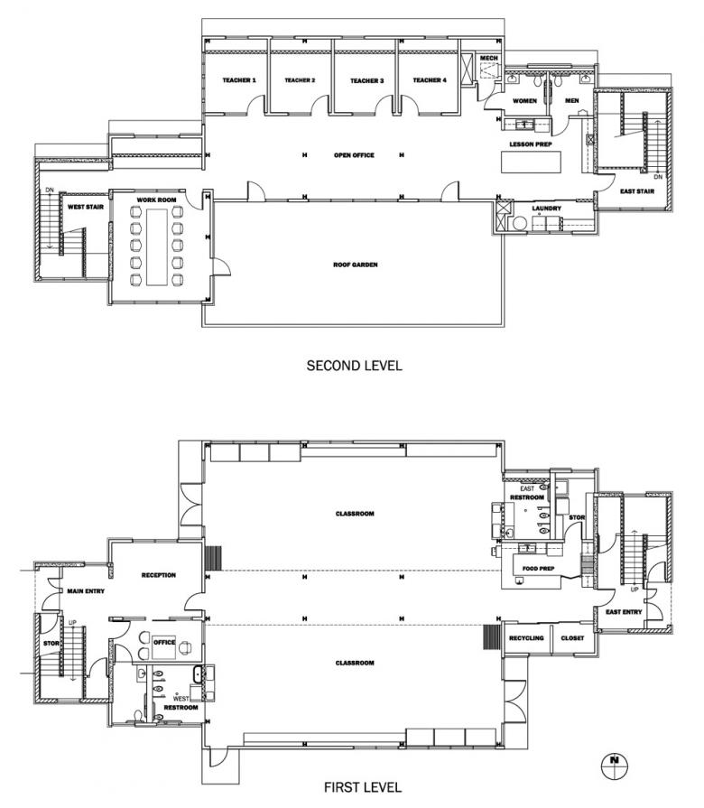
The school’s teaching philosophy, the Reggio Emilia Approach, provides children with many alternatives for playing and learning, so variety and flexibility were key issues both on the inside and the outside of the building. The building’s footprint defines a variety of exterior play spaces.  After extensive schematic review discussions with school directors and teachers, space use was boiled down to a very simple diagram with a central, completely open classroom area (and corresponding office use on the second level) flanked by service spaces.  Teachers enclose smaller areas using movable wall panels and furniture.  Concrete stair enclosures are lateral anchors for the central open space and provide an excellent substrate for the living walls.  

Daylighting systems and natural ventilation informed the building shape and configuration. The north wall is canted and the south side of the building steps down to one story to process light on the interior and present an unimposing two-story building to the playgrounds. No electric lighting is used on sunny days; all areas are lit through a system of sun shades, light shelves, angled walls and light channels between floors.  High ceilings on the upper level and operable windows at varying heights catch breezes and allow preschoolers and teachers to enjoy natural ventilation throughout the building.

The infill site is more than three times longer than its width along the street, and storm water elimination was a major concern.  Permeable paving throughout the playgrounds and driveway contribute to water elimination.  The use of living walls and green roofs bring nature directly to the school and assist with water processing on the site,while also cooling the site, and providing substantial insulation.

View of reception and office area

How does the completed building compare to the project as designed? Were there any dramatic changes between the two and/or lessons learned during construction?

The final building is very close to the original design.  A major challenge during construction was the fabrication of the sun shades and light shelves - as a fairly large portion of the budget was used for the green roofs and living walls, a low cost solution for daylighting was necessary. I custom designed the shade canopies and light shelves using standard stock materials and parts to allow small local fabrication shops to do the work. That plan was successful for the budget, but the fabricators had never seen anything like these systems and requested meetings and approvals at every stage of the process, along with mock-ups and extensive details.  It became a lengthy process and the last two sun shades were installed the day before the grand opening, so I was really on the edge of my seat!  Custom manufacturing will definitely be an early priority in future construction.

View of roof garden

How does the building compare to other projects in your office, be it the same or other building types?

This was an unusually exciting opportunity for my office, largely due to the open minded developers who liked the idea of using the building form to illustrate and facilitate environmental controls.  I have designed a few other buildings (a residence and an office building) with passive systems as design features, but they have not been built. Even in very small projects, we utilize passive systems to minimize energy use as much as possible. I’m very excited about the sea change that has occurred with sustainable design demand in the last 5 to 6 years; it’s wonderful now to get a huge positive reaction to design concepts with minimal energy needs and to see life cycle costs considered.

Site Plan

How does the building relate to contemporary architectural trends, be it sustainability, technology, etc.?

The sustainable features are consistent with contemporary trends, for example, the use of self-finishing products such as stained concrete floors and integral color stucco helped minimize materials and lower cost.

Green roofs and walls deserve to become a bigger trend, and the technology is changing quickly. Bringing the beauty of nature into everyday environments is clearly beneficial.  Living walls and roofs are controversial in California, and the product development and greywater systems and policies have a long way to go, however, designing in conjunction with ever evolving living systems is a rewarding effort.

Floor Plans

Are there any new/upcoming projects in your office that this building’s design and construction has influenced?

Amongst other educational benefits of the preschool design, the knowledge gained from developing the Preschool’s daylighting will be highly useful for all future projects.  I consulted with optical and lighting engineers to determine solutions for the specific set of conditions and learned a great deal about the subtleties.  The vast majority of our built environment consists of small and mid-size buildings that can’t support the cost of automated or pre-engineered daylighting, and I’m looking forward to designing low cost, simple and effective solutions for natural lighting.

Little Owl Preschool
2010

Long Beach, CA

Client
Watt Development

Architect
Architecture M Inc.
Long Beach, CA

Design Principal
Meg Beatrice, AIA, LEED AP

Structural Engineer
MHP Structural Engineers
Ken O'Dell, SE, Vice President

MEP/FP Engineer
Davar and Associates
Gilbert Dilanchian, PE, Principal

Lighting Designer
LRA Engineers
Cirilo Regalado, EE, Principal

Interior Designer
Architecture M
Meg Beatrice

Contractor
JV General Building Contractor
John Vengoechea, Owner

Living Wall
Seasons Landscaping
Scott Hutcheon, Principal

Green Roofs
Green Grid

Site Area
16,100 sf

Building Area
8,130 sf (including 1,030-sf roof garden)

Photos and Drawings
Wajid Drabu

Related articles 

Other articles in this category