Lone Mountain Ranch House

4. August 2014

Lone Mountain Ranch House
2012
Golden, New Mexico

Client
Mary Lloyd and Robert Estrin

Architect
Rick Joy Architects
Tucson, AZ

Design Principal
Rick Joy

Project Architect
Philipp Neher, Nicolas Norero

Project Manager
Philipp Neher

Project Team
Claudia Kappl, Luat Duong, Stephanie Griffith, Daniela Lopez, Jerry Park, Natalia Zieman

Structural Engineer
Harris Engineering

Lighting Designer
CLL - Concept Lighting Lab, LLC

Contractor
Paul W. Kenderdine Inc.

Site Area
27,000 acres

Building Area
4,800 sf (indoors); 3,200 sf (outdoors)

Photographs
Peter Ogilvie

Drawings
Rick Joy Architects

Distant view of south elevation

What were the circumstances of receiving the commission for this project?

We were selected for the project based on a personal recommendation and a direct inquiry from the client.

North elevation at twilight

Please provide an overview of the project.

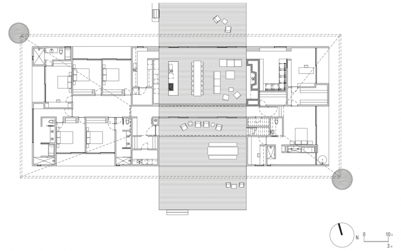
The project is a solitary, six-bedroom family retreat on a 27,000-acre Wagu beef ranch in the high desert landscape of New Mexico, USA. A central wood living deck with thru-views divides the house. The master bedroom and office suite are on the east and the guest bedroom wing is to the west. The two forms are clad in dark stained wood in the shadows below the silver corrugated sheet-metal roof. A singular twisted hip roof with perimeter gutter channels water to water harvesting cisterns at the two opposing corner-points of the house. The retreat includes a secret roof deck for stargazing.

East elevation

What are the main ideas and inspirations influencing the design of the building?

The retreat expresses our interest and a strong relationship to japan, art, philanthropy, and film.

Entry porch

Were there any significant challenges that arose during the project? If so, how did you respond to them?

Construction started after the economic downturn in a remote area of New Mexico that required extensive exchanges with the contractor on site.

Kitchen/dining/living

How does the building relate to contemporary architectural trends, be it sustainability, technology, etc.?

The project includes a fully operational 6,400-gallon rainwater harvesting system, with two water harvesting tanks at two corners of the building. The design incorporates water protection along the eaves of the building and wildfire mitigation through the charred wood siding. A propane gas tank and site-located water well systems supply the house. Inside, lighting and appliances are Energy Star, consuming little energy.

Cross view to kitchen

How would you describe the architecture of New Mexico and how does the building relate to it?

Rick Joy Architects, and the work coming out of the office, is known for its strong reference to "Building Culture of Place." Being located out in the remote landscape of New Mexico, the building is contructed as stick frame with wood siding that is charred for wildfire mitigation.

Email interview conducted by John Hill.

View to office through TV room
View to Lone Mountain
Roof terrace
Floor Plan
Elevations
Building Sections

Lone Mountain Ranch House
2012
Golden, New Mexico

Client
Mary Lloyd and Robert Estrin

Architect
Rick Joy Architects
Tucson, AZ

Design Principal
Rick Joy

Project Architect
Philipp Neher, Nicolas Norero

Project Manager
Philipp Neher

Project Team
Claudia Kappl, Luat Duong, Stephanie Griffith, Daniela Lopez, Jerry Park, Natalia Zieman

Structural Engineer
Harris Engineering

Lighting Designer
CLL - Concept Lighting Lab, LLC

Contractor
Paul W. Kenderdine Inc.

Site Area
27,000 acres

Building Area
4,800 sf (indoors); 3,200 sf (outdoors)

Photographs
Peter Ogilvie

Drawings
Rick Joy Architects

Related articles 

Other articles in this category