Frances M. Maguire Hall for Art & Education
A 21st-Century Museum in a 19th-Century Residence
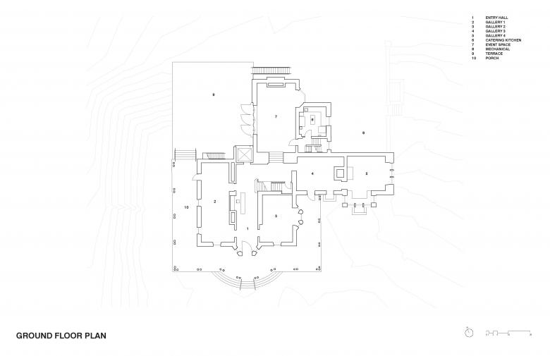
Open since early November, the Frances M. Maguire Hall for Art & Education is the most significant expansion of the Woodmere Museum opened, which opened in 1910 in Philadelphia. The project renovates a 19th-century residence and provides the museum with fourteen additional galleries. Matthew Baird Architects answered a few questions about the project.
What were the circumstances of receiving this commission?Baird Architects worked on a comprehensive plan for Woodmere Musuem, through which we identified a need for further exhibition and storage space. When neighboring Maguire Hall become available, the director of Woodmere, Bill Valerio, identified it as a solution.
It combines a 19th century historic estate with exhibition needs of contemporary arts culture, and it has new ideas regarding connection to the estate grounds.
Fusing historic landscape with contemporary programming and breathing new life into an old estate that may have otherwise been demolished.
Contemporary ethos of environment and landscape, as expressed through the work of Andropogon, transformed the relationship between the building and the grounds.
Bill Valerio (Woodmere director) was an active collaborator and pushed the design team to maximize arts and community impact.
The initial scope was to add a freestanding auditorium as well as a restaurant to the back, which due to budgetary constraints are now part of a second phase of construction.
Like many of our adaptive reuse projects, it is the juxtaposition of traditional historic preservation with contemporary architectural expression.
Email interview conducted by John Hill.
Location: Philadelphia, Pennsylvania, USA
Client: Woodmere Art Museum
Architect: Baird Architects, New York
- Design Principal: Matthew Baird
- Project Architect: Paul Golisz
- Project Team: Anna Creatura, Le Xie
Structural Engineer: Keast & Hood
MEP/FP Engineer: Altieri Sebor Wieber LLC
Landscape Architect: Andropogon Associates
Contractor: Sullivan Construction
Building Area: 17,000 sf








