World Building of the Week
Mezcal Production Palenque
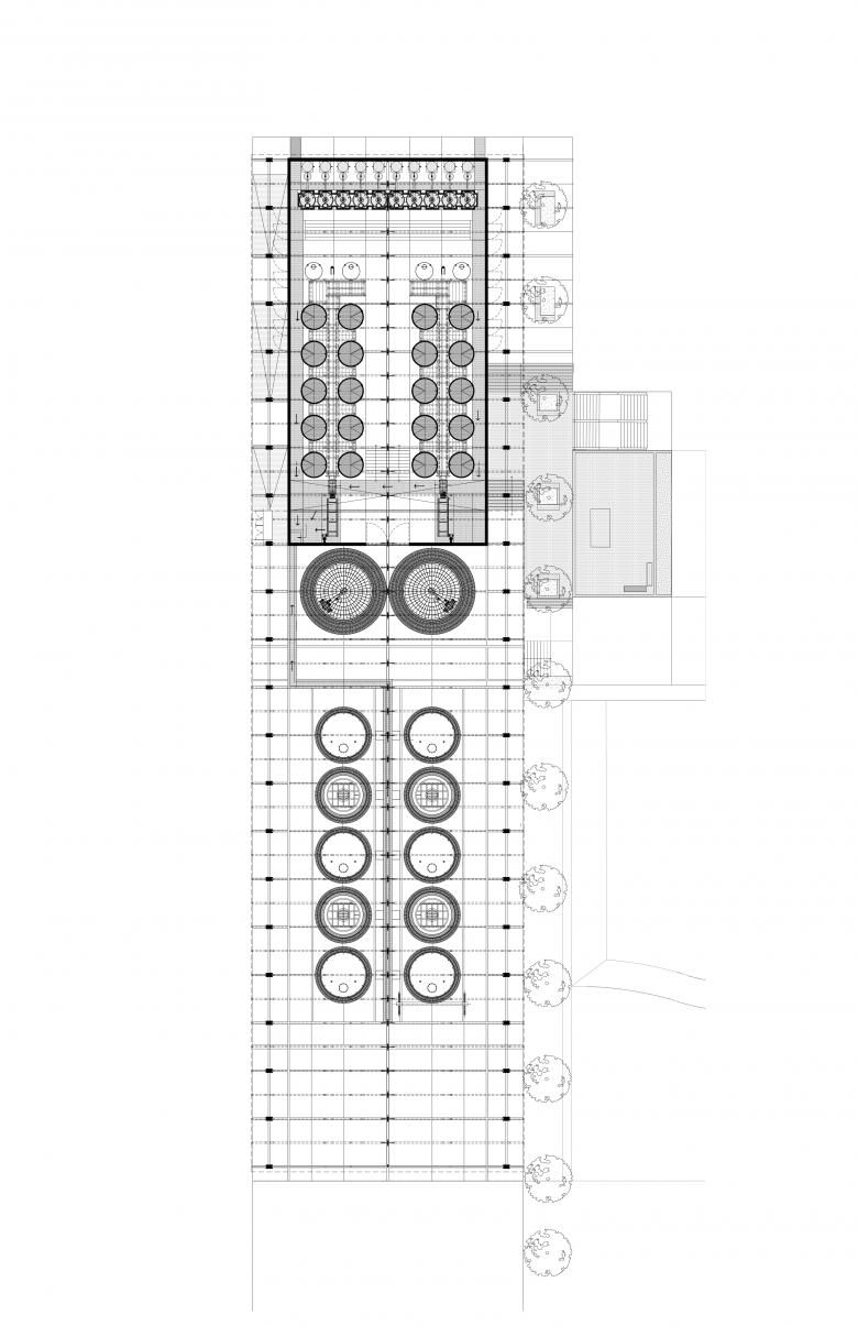
Estudio ALA's project for a mezcal distillery, or palenque, in the Mexican state of Michoacan includes production areas, worker dining areas, and recreational spaces. The programmatic spaces are shaded by generous roofs supported by mass timber and integrated into the natural topography through stepped brick platforms. The architects sent us some text and images on the project.
The Mezcal Palenque reinterprets the traditional mezcal distillery through a contemporary architectural lens, drawing from the vernacular typologies and cultural landscape of Michoacán. The Mezcal Palenque draws inspiration from the local culture, traditional mezcal distilleries, and the vernacular wooden architecture of Michoacán. We have been learning that recognizing the language of a place would shape the language of our projects.
The origin begins by looking at and understanding history—a re-origination through an abstraction of the origin's form. We aimed to extract the function of the origin and reinterpret it through function, form, material, and contemporary techniques. We view this process as an exploration and recycling of meanings. What sustains Octavio Paz’s idea of tradition is: “The characteristic trait of modernity is criticism: the new is opposed to the old, and it is this constant contrast that constitutes the continuity of tradition.”
Traditional mezcal distilleries tend to be smaller in scale. We sought to avoid the lack of human scale and the monumentality found in industrial spaces. It was important to prioritize physical and cultural integration with the place, focusing on the comfort of daily users, workers and visitors. The project was conceived through participatory design processes that emphasized cultural and topographical integration. We sought environmentally friendly materials such as laminated wood and bricks.
The brick and the laminated wood play a central role in the project—not only for its environmental performance, such as thermal mass, low maintenance, and durability—but as a material that conveys continuity with local building traditions and enables a grounded, human-centered industrial space.
All the structure is made of laminated wood and bricks were used across walls, platforms, and pathways, forming a continuous material language that negotiates between infrastructure and landscape. It establishes a physical and symbolic base: the floor and walls operate as a unified plinth that connects the building to the terrain and mediates scale.
This man-made topography engages the natural slope of the site while referencing the material and thermal logic of traditional agave ovens. The selection of smoky gray brick was intentional, evoking the tonal and textural qualities of fire, ash, and smoke—shared elements in both mezcal production and brick firing. The brick’s chromatic and tactile properties reinforce the building’s conceptual origin in the oven: a shared site of transformation between organic matter and architecture.
Adjacent to the mezcal plant, we designed a bio-pond and a botanical garden. The water for the plant's fire protection system, which is typically stored in tanks, was substituted with a bio-pond. This infrastructure provides ecological services, enhancing the local flora and fauna.
Rather than imposing monumental forms, the accommodation respects human scale and the fluidity of everyday practices, fostering a poetics of becoming that values the ordinary and unexpected qualities of spatial experience. The integration of bio-ponds and botanical gardens exemplifies how material transitions can contribute ecological services and enhance coexistence between built and natural environments. An active negotiation between tradition and modernity, where architecture is not fixed but adaptable and layered, sustaining a meaningful dialogue with the evolving cultural and environmental context.
The project enacts a material and spatial transition attentive to the complexities of contemporary life, forging a built environment that is both responsive and responsible.
Location: Jiquilpan de Juarez, Michoacan, Mexico
Architect: Estudio ALA; Guadalajara, Jalisco, Mexico
- Architects in Charge: Armida Fernández and Luis Enrique Flores
- Collaborators: Diana Martínez, Jose Luis Elenes, Benjamin Orozco
Built Area: 2800 m2














