Mid-North Residence
Mid-North Residence
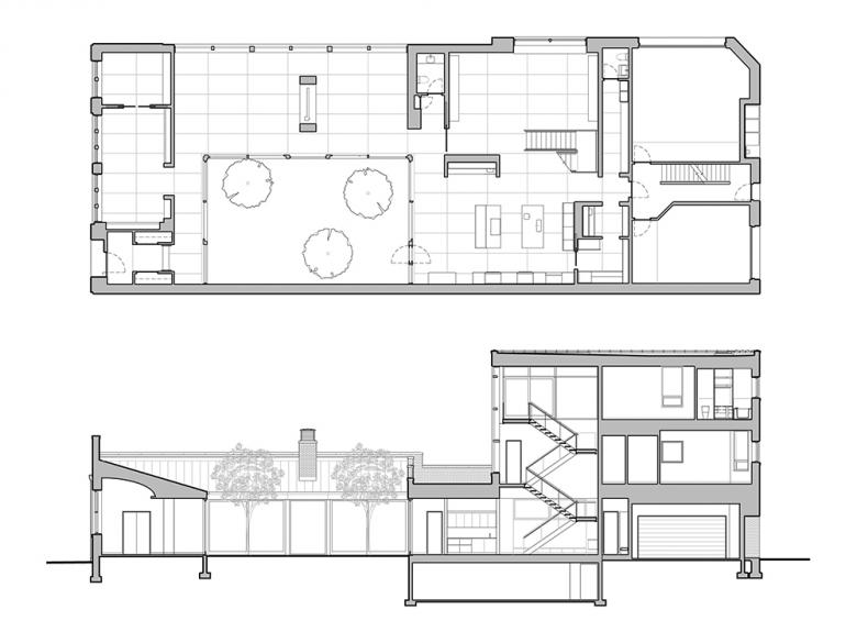
A 19th-century barn in Chicago's Lincoln Park neighborhooed was originally used as a dairy distribution center and later as an artist's studio and gallery. It was recently transformed by Vinci | Hamp Architects into a house for a family of five. Forced with literally rebuilding the old buildings' brick walls, the house is a conversation between the historical exterior, modern interior, and new courtyard. The architects answered some questions about the project.
What were the circumstances of receiving the commission for this project?
Our firm was contacted directly by the owner, who knew our work through word of mouth and past projects.
Can you describe your design process for the building?
The property is located in a landmark district and its lot-line-to-lot-line masonry volume exceeds current zoning limits. Thus the masonry shell was maintained and the design challenge was to develop the architectural program and arrange it within the volume. Because the property lacks yards, outdoor spaces were part of the program as well. Simultaneous to the development of the program, the design team studied the existing masonry structures. With the program and the existing buildings well understood, spaces were laid out within the shell.
How does the completed building compare to the project as designed? Were there any dramatic changes between the two and/or lessons learned during construction?
The building was built as drawn. The most significant change during construction was the reconstruction of more original masonry than planned.
How does the building compare to other projects in your office, be it the same or other building types?
Most of our projects, including commissions for new construction, involve significant historic buildings, and we take our cues from the original architecture. For restoration projects, we endeavor to enhance the intentions of the original design. For adaptive reuse and new construction, we follow the owner’s architectural program and respond with contemporary design solutions that complement the historic fabric. The Mid-North Residence fits in this latter category.
How does the building relate to contemporary architectural trends, be it sustainability, technology, etc.?
We hope our projects will be long-lived and age gracefully. To that end, we strive for clearly organized buildings, well proportioned spaces and enduring materials. We believe that long lasting buildings are a responsible sustainability strategy. Additional sustainable features of the Mid-North Residence are its location within a dense urban neighborhood and its tightly sealed, high-performance exterior envelope.
Email interview conducted by John Hill
Mid-North Residence
2012
Chicago, IL
Client
Withheld
Architect
Vinci | Hamp Architects
Chicago, IL
Design Principals
John Vinci, FAIA
Philip Hamp, FAIA
Project Architect
Daniel Roush
Project Team
Connie Bank, Tony Prom
Structural Engineer
Enspect Engineering
MEP/FP Engineer
Advance Consulting Group
Landscape Architect
McKay Landscape Architects
Lighting Designer
Lux Populi
Interior Designer
Stephanie Wohlner
Contractor
Goldberg General Contracting
Windows & Doors
Grabill Windows
Kitchen
Bulthaup
Lighting Controls
Lutron
Metal Roofing
Rheinzink
Site Area
6,000 sf
Building Area
9,100 sf
Photographs
Eric Hausman







