Jensen Architects

Minnesota Street Project

Jensen Architects | 3. April 2017

Minnesota Street Project

2016
San Francisco, California

Client
Deborah & Andy Rappaport

Architect
Jensen Architects
San Francisco

Design Principal/Project Architect
Mark Jensen

Project Managers
Frank Merritt, Laura Messier, Audrey Harris

Project Team
Ryan Golenberg, Lauren Takeda, Matt Adams

Structural Engineer
Ian Kelso, Tipping Structural Engineers

MEP/FP Engineer
Zeid Arnaout, Integral Group

Lighting
Ray Juachon, Integral Group

General Contractor
Nathan Dunn, Plant Construction Company

Site Area
20,000 sf

Building Area
34,519 sf

Photographs
Mariko Reed

Drawings
Jensen Architects

What were the circumstances of receiving the commission for this project?
The commission was received as a result of the architect's and client's mutual involvement with a Bay Area arts organization.

Please provide an overview of the project.
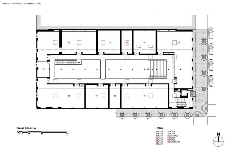
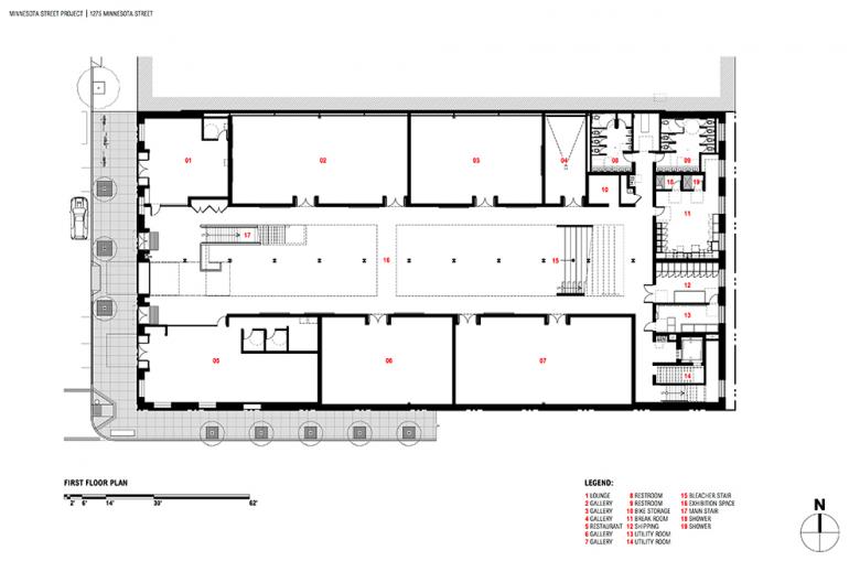
The design pivots around the renovation of a 1937 industrial warehouse. Preserving the rich textural qualities of the past while providing for a new vibrant arts occupancy was primary to the project. Original wood plank ceilings supported on delicate steel trusses define the new central atrium and exhibition space.

What are the main ideas and inspirations influencing the design of the building?
The existing warehouse building had absorbed years of working hands in its very materiality and we didn’t want the ambitious new program to erase this history. Our intent was to leave as many of the existing surfaces untouched and let them be framed and amplified by a new spatial composition of pristine gallery walls.  

How does the design respond to the unique qualities of the site?
The project is unique amongst the fabric of the historic Dogpatch neighborhood. By taking advantage of an exception stated in the planning code, 1275 Minnesota has become an understated yet strongly present platform for a new typology program within a traditionally industrial zone. 

How did the project change between the initial design stage and the completion of the building?
Due to the fast track nature of the project, much of the design phase required heavy coordination with the contractor. As a result, a large portion of the original design intent and concept was successfully implemented in the completed building.

Email interview conducted by John Hill.

Minnesota Street Project

2016
San Francisco, California

Client
Deborah & Andy Rappaport

Architect
Jensen Architects
San Francisco

Design Principal/Project Architect
Mark Jensen

Project Managers
Frank Merritt, Laura Messier, Audrey Harris

Project Team
Ryan Golenberg, Lauren Takeda, Matt Adams

Structural Engineer
Ian Kelso, Tipping Structural Engineers

MEP/FP Engineer
Zeid Arnaout, Integral Group

Lighting
Ray Juachon, Integral Group

General Contractor
Nathan Dunn, Plant Construction Company

Site Area
20,000 sf

Building Area
34,519 sf

Photographs
Mariko Reed

Drawings
Jensen Architects

Related articles 

Featured Project 

Atelier KI JUN KIM

House by the Wall

Other articles in this category