Minnesota Valley National Wildlife Refuge Rapids Lake Unit Visitor Center

Minnesota Valley National Wildlife Refuge Rapids Lake Unit Visitor Center

18. October 2010

Photos

Pete Sieger

Cost Consultant

CPMI

Civil Engineer/Surveyor

Barr Engineering Company

Contractor

Gunderson Construction, General Contractor

Interior Designer

Meyer, Scherer & Rockcastle, Ltd. (MS&R)

Lighting Designer

Carla Gallina, Project Lighting Designer

Landscape Architect

Close Landscape Architecture

MEP/FP Engineer

Karges-Falcoubridge, Inc. (KFI), Mechanical/Electrical Engineers

Structural Engineer

Meyer, Borgman, and Johnson, Inc. (MBJ)

Project Team

Jessica Harner, LEED AP (Architecture)
Brent Holdman (Architecture)
Matt Kruntorád, AIA, LEED AP (Architecture)
Byoungjin Lee, AIA, LEED AP (Architecture)
Michael Madden (Architecture)
Brendan Sapienza, LEED AP (Architecture)
Aubrey Foltz (Interior Design)
Caroline Lundgren (Interior Design)
Steven Rothe, CID (Interior Design)
Alana Zbaren (Interior Design)

Project Manager

Sean Wagner, AIA, LEED AP,
Project Manager and Director of Sustainable Design

Project Architect

Vanessa Sethi, AIA, LEED AP, Project Manager/Architect

Design Principal

Thomas Meyer, FAIA, Principal in Charge

Project Dates

Completed October 2008

Building Area

12,800 square feet

Architect

Meyer, Scherer & Rockcastle, Ltd. (MS&R)

Client

The Minnesota Valley National Wildlife Refuge Trust, Inc.
U.S. Fish & Wildlife Service

Minnesota Valley National Wildlife Refuge Rapids Lake Unit Visitor Center

Carver, Minnesota
Overview of building from historic farm ruins

What were the circumstances of receiving the commission for this project?

Situated on a bluff overlooking the Minnesota River, the Minnesota Valley National Wildlife Refuge’s new Rapids Lake Education and Visitor Center was financed through the Minnesota Valley National Wildlife Refuge Trust to provide opportunities for visitors and education groups to learn about the unique wildlife conservation efforts of the U.S. Fish and Wildlife Service.

Viewing port framing a tree outside

Can you describe your design process for the building?

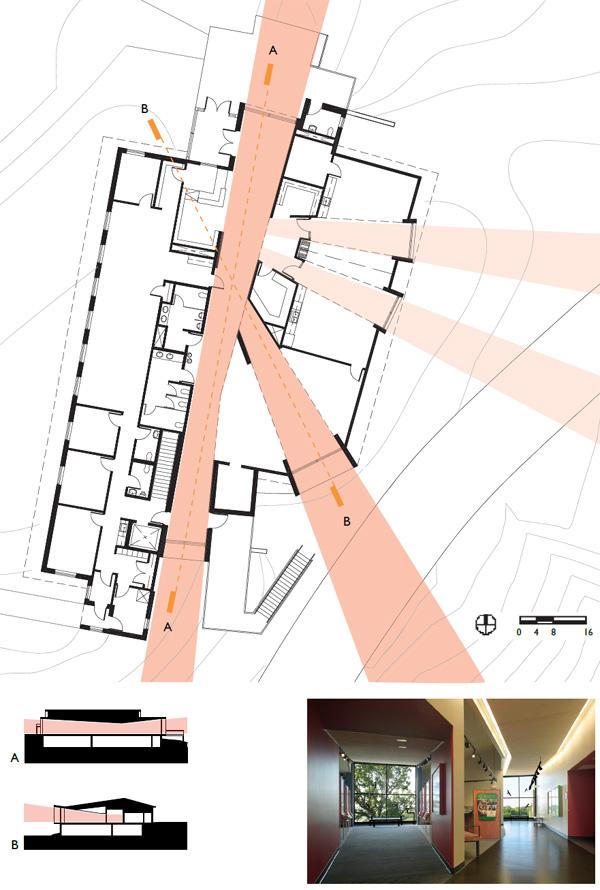
Building siting, vehicular approach, site restoration, and the development of accessible trails played key roles in the design. The building is designed as a series of viewing ports that allow visitors to engage with a scenic vista of the riverbed, restored prairie, native burr oaks, and the historic farmhouse. By focusing outward, the building encourages visitors to make their time indoors brief, inviting them instead to devote their visit to exploring the site’s extensive hiking trails.

Detail of building materials and connections

How does the completed building compare to the project as designed? Were there any dramatic changes between the two and/or lessons learned during construction?

The client’s overall goal was to create a gateway for visitors to explore the refuge. The visitor center provides a space to gather, where visitors can orient themselves before heading into the river valley landscape and historic Gehl farmstead, featuring a fully intact Chaska brick farmhouse dating from the early 1860s, located on the site.

Site plan (before)

How does the building relate to contemporary architectural trends, be it sustainability, technology, etc.?

The building is also designed to be inconspicuous and light on the landscape both in form and performance. Measures were taken to ensure that the building meets the performance goals of the 2030 Challenge and the U.S. Department of the Interior. It features a geothermal heating and cooling system and heat exchanger, as well as an instantaneous hot water heater and low-water consumption fixtures. In the first year of operation, the building used 57.7% less energy than the Department of Energy’s baseline, with a 57.4% smaller carbon foot print. Material choices were also made with an emphasis on natural, recycled, FSC certified, and low VOC products. In recognition of these sustainable strategies, the U.S. Department of Energy and Federal Interagency Energy Policy Committee recently honored the visitor center with a 2009 Federal Energy and Water Management Award.

Site plan (after)
Floor plan and sections

E-mail interview conducted by John Hill

Floor plan and sections

Photos

Pete Sieger

Cost Consultant

CPMI

Civil Engineer/Surveyor

Barr Engineering Company

Contractor

Gunderson Construction, General Contractor

Interior Designer

Meyer, Scherer & Rockcastle, Ltd. (MS&R)

Lighting Designer

Carla Gallina, Project Lighting Designer

Landscape Architect

Close Landscape Architecture

MEP/FP Engineer

Karges-Falcoubridge, Inc. (KFI), Mechanical/Electrical Engineers

Structural Engineer

Meyer, Borgman, and Johnson, Inc. (MBJ)

Project Team

Jessica Harner, LEED AP (Architecture)
Brent Holdman (Architecture)
Matt Kruntorád, AIA, LEED AP (Architecture)
Byoungjin Lee, AIA, LEED AP (Architecture)
Michael Madden (Architecture)
Brendan Sapienza, LEED AP (Architecture)
Aubrey Foltz (Interior Design)
Caroline Lundgren (Interior Design)
Steven Rothe, CID (Interior Design)
Alana Zbaren (Interior Design)

Project Manager

Sean Wagner, AIA, LEED AP,
Project Manager and Director of Sustainable Design

Project Architect

Vanessa Sethi, AIA, LEED AP, Project Manager/Architect

Design Principal

Thomas Meyer, FAIA, Principal in Charge

Project Dates

Completed October 2008

Building Area

12,800 square feet

Architect

Meyer, Scherer & Rockcastle, Ltd. (MS&R)

Client

The Minnesota Valley National Wildlife Refuge Trust, Inc.
U.S. Fish & Wildlife Service

Minnesota Valley National Wildlife Refuge Rapids Lake Unit Visitor Center

Carver, Minnesota

Related articles 

Featured Project 

Atelier KI JUN KIM

House by the Wall

Other articles in this category