Mott Haven Educational Campus

Mott Haven Educational Campus

17. October 2011

Mott Haven Educational Campus
2011

Bronx, NY

Client
NYC School Construction Authority

Architect
Perkins Eastman
New York

Design Principal
Aaron Schwarz FAIA

Project Architect
Perry Nunez

Project Manager
Christine Schlendorf

Project Team
Kate Hanenberg
Joseph Iannucci
Dean Jacobsen
Melissa Schroeder
Jonathan Thomas
Ernesto Vella

Associate Architect
Alexander Gorlin Architects

Structural Engineer
Leslie E. Robertson Associates

MEP/FP Engineer
WSP Flack + Kurtz

Landscape Architect
RGR Landscape

Interior Designer
Perkins Eastman

Contractor
DeMatteis

Civil Engineer
Langan Engineering & Environmental Services

Food Service
Romano Gatland

Theater and Acoustics
Harvey Marshall Berling Associates

Site Area
6.5 acres

Building Area
287,000

Photos
Chris Cooper

Front façade and street entrance

What were the circumstances of receiving the commission for this project?

Perkins Eastman was awarded the job though an association with Alexander Gorlin Architects. Gorlin and the Bronx Church group originally brought the job to the NYC School Construction Authority (SCA) as a six-school campus. Once the SCA brought the project under their management, it turned into a four-school campus and was the biggest project of the Mayor’s five-year plan construction plan.

Rear campus with auditorium

Can you describe your design process for the building?

Perkins Eastman in association with Alexander Gorlin Architects collaborated extensively with the School Construction Authority (SCA) and neighborhood associations to design a campus that met the community’s needs, worked with the context of the neighborhood as well as complied with the standards of the SCA.

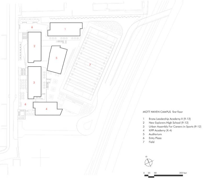
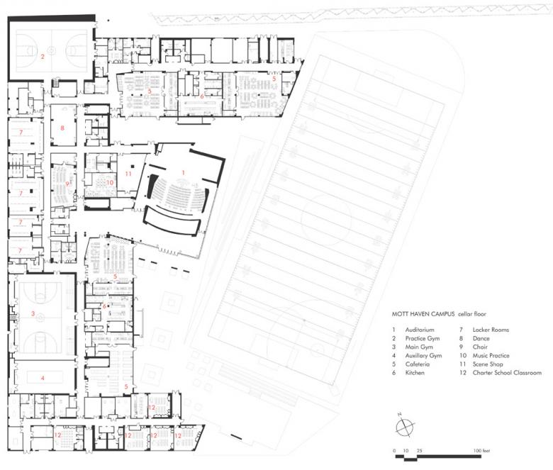
The Mott Haven Campus marked the emergence of a new facility solution that addresses the growing demand for seats while providing an economy of scale in both capital costs and operational expenses. In response to the proven benefits of a small school model, more recently adapted into “small learning communities,” the design team programmed a campus of four distinct schools that share programmatic elements. The solution, which also solved the challenge of a site 15-30 feet below street level, was to locate the four schools above a podium of shared spaces. With this design, the dining and recreation spaces open onto the field, while the schools face the street, providing a contextual and welcoming front door.

An important design criterion was to ensure that each school preserves its own identity through dedicated entry, administration, dining, and learning spaces. Each of the four very different schools employs a unique interior color scheme rooted in the shared base building, where dedicated cafeterias orient each population within the u-shaped concourse. A state-of-the-art 600 seat performing arts center activates the site through material use and location, and provides an exceptional amenity for the community.

Formerly a rail yard, the site is bordered along the southeast by the Metro-North tracks, affording passengers a fleeting, elevated view of the site. Contrasting this is the pedestrian approach along Grand Concourse West, characterized by a scaled-down, storefront appeal that is in harmony with the surrounding buildings. The solution to bridge what was essentially a two-faced, two-level site condition was to engage the street level with a building plinth to draw community members into the building and out onto the feature regulation-size field below.

Issues of circulation were addressed for programmatic clarity as well as for ensuring safety and security as a true community facility. The sloping site allowed three different entry points along the street at two different levels. The northern and southern entries are at the first floor of the school buildings, while the building’s main public entry is at the basement level. The open-air plaza transitions into a double-height main lobby, with direct access to the auditorium; a grand stair ushers visitors down one level to the gymnasiums, cafeteria and access to the field. The allocation of primary teaching spaces within each tower, with the majority of public-use spaces in the lower levels allows this entry to be separated from the rest of the school to allow community access to amenity spaces while the schools remain secure.

Auditorium lobby

How does the completed building compare to the project as designed? Were there any dramatic changes between the two and/or lessons learned during construction?

Aside from some minor material changes made during the design phases, the completed building carries a remarkable resemblance to the computer renderings developed during design. Changes during construction were minor and did not impact the overall concept.

Site Plan

How does the building compare to other projects in your office, be it the same or other building types?

The Mott Haven Campus is a unique project in many respects; its size, location, and the community it serves. Labeled the “largest construction project” of its time, addressing the scale of the facility was a priority. Although there were some built in efficiencies due to the shared nature of some of the specialty spaces, the overall development was much larger than any other project built by the SCA. In the sense that the school would function both as a school for students during the day and a community use facility at night, the dual-use aspect was one our firm was familiar with from previous schools work.

There is a growing trend of shared large-group spaces and the zoning of use and access to encourage public engagement while keep the facility secure. Schools today more than ever are seen as public facilities with an inherent responsibility to activate neighborhoods and business centers. For a number of our projects, accessibility to gymnasiums, auditoriums and cafeterias is a driving force in the design. Many schools are teaming up with local organizations for co-use of these spaces; revenue generated from this partnership often rationalizes their inception.

Across the practice we are seeing a trend towards a convergence of building types with shared uses. Perkins Eastman initially focused on a finite group of complementary building types. Reflecting the founding principals' personal interests, these building types were also selected because knowledge gained in one had the potential to inform the issues relevant to another. Ranging from hotels to hospitals, housing to office buildings, educational to science and technology facilities, these building types are indicative of the firm's commitment to bringing its research-oriented design process to bear on a limitless range of projects.

First Floor

Are there any new/upcoming projects in your office that this building’s design and construction has influenced?

We are continuously taking lessons learned from past projects and applying those to new projects both within the building type as well as across practice areas. Our award-winning intranet is the centralized hub for research in practice. Research has shown that physical environments can impact quality of life, job performance, the healing process, the ability to learn, and many other psychological and physical experiences. Perkins Eastman’s research teams have developed methodologies to improve the knowledge and capabilities of our planners, architects, and designers. From a long-standing commitment to advancing best practices in the field of architecture, the firm conducts and applies research across our practice areas including senior living, education, and healthcare so that our designers and clients can make more informed decisions during the design process.

As a building typology, the Mott Haven project opened our eyes to the importance of the community spaces within a facility. At the inception of the project, a small school model more recently branded the Small Learning Communities (SLC) concept was still fairly new. The emergence of this combination of use and the efficiencies it afforded inspired a renewed look at the true potential of school as community center. Infusing a building with multi-functional but usable spaces has since been an important aspect of all our school projects whether for a public or private client. Developing a methodology that places upfront the programming stage as an opportunity to ensure that schedule of use is comfortably accommodated within the number and configuration of spaces proposed frees the design phase to focus primarily on applying architecture to the planning.

E-Mail Interview conducted by John Hill

Building Section

Mott Haven Educational Campus
2011

Bronx, NY

Client
NYC School Construction Authority

Architect
Perkins Eastman
New York

Design Principal
Aaron Schwarz FAIA

Project Architect
Perry Nunez

Project Manager
Christine Schlendorf

Project Team
Kate Hanenberg
Joseph Iannucci
Dean Jacobsen
Melissa Schroeder
Jonathan Thomas
Ernesto Vella

Associate Architect
Alexander Gorlin Architects

Structural Engineer
Leslie E. Robertson Associates

MEP/FP Engineer
WSP Flack + Kurtz

Landscape Architect
RGR Landscape

Interior Designer
Perkins Eastman

Contractor
DeMatteis

Civil Engineer
Langan Engineering & Environmental Services

Food Service
Romano Gatland

Theater and Acoustics
Harvey Marshall Berling Associates

Site Area
6.5 acres

Building Area
287,000

Photos
Chris Cooper

Related articles 

Other articles in this category