Museum of Wisconsin Art
Museum of Wisconsin Art
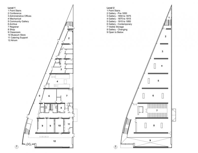
The Museum of Wisconsin Art (MOWA) started in 1961 as the West Bend Gallery of Fine Arts, focused on the collection and display of one local artist, Carl von Marr. Five decades and two name changes later (in between the institution was the West Bend Art Museum) MOWA has moved into a new facility that reflects its larger collection and wider reach. HGA Architects and Engineers answered a few questions about the recently completed building that sits on a triangular lot paralleling the Milwaukee River.
What were the circumstances of receiving the commission for this project?
We were invited to interview for a very modest renovation/addition to a very small regional art museum over a decade ago. While the original project was not terribly desirable due to the weak existing colonial building, we had some indistinct feeling that there was something interesting here culturally. It took a long time to evolve and develop, but it finally transformed into a fantastic commission, especially after the museum renamed itself “The Museum of Wisconsin Art” and began a mission of collecting, preserving and exhibiting the work of artists that had had an important formative experience here.
Can you describe your design process for the building?
We designed 9 complete schemes over a period of 9 years. The schemes were for several different sites, sometimes investigating renovation of existing buildings, sometimes for new construction. We stuck with the clients over a period of many years, sometimes when they really could not pay us adequately. We grew to really like working with them; they had a small-town directness and clarity we found refreshing. Our long involvement with them also meant that by scheme 9, we really got what they were about, and knew what they needed with some clarity. They had also come to trust us, such that when we finally drew the ultimate scheme and it was right on budget, they just built it as drawn.
How does the building compare to other projects in your office, be it the same or other building types?
We recently completed another museum complex on the open landscape of Milwaukee’s lakefront, the Discovery World Museum. This building was also built in a clean, white minimalist vocabulary, and was extremely well received here. We were encouraged to forge on with this design direction, which is not common here.
Are there any new/upcoming projects in your office that this building’s design and construction has influenced?
We have been commissioned to work on a reinstallation of the permanent collection at the Milwaukee Art Museum, which will include a modest but interesting addition. The strong success of the Museum of Wisconsin Art has helped to strengthen our credentials in art museum work, and we have other commissions of this type on the boards.
How would you describe the architecture of Wisconsin and how does the building relate to it?
Wisconsin has two important traditions that were of influence in the design of MOWA:
- The direct and simple agricultural building sitting in contrast with a verdant green landscape. We can see in Wisconsin today a new generation of agricultural buildings cropping up across the state, buildings that are as iconic as the red barns of a century ago. These new buildings, industrial pig and cattle barns in particular, are often clad in white with a few huge openings for access and daylight, glowing like lanterns at night. These buildings frequently sit isolated in their green landscapes, “machines in the garden” in a new vernacular form. They have an undeniable power and beauty that influenced this work.
- The idea of a Prairie Architecture as posited by Frank Lloyd Wright a century ago continues to haunt our state: a compelling set of regional formal ideas that several generations of architects here have not figured out what to do with. The attempt here is to go back to some of the basic formal principals: long horizontal proportions of both the building as a whole and the claddings at a detail level; glass walls as dense screens that allow views but are not transparent in a modernist sense; the idea of “mono materials”: keeping the tectonic palette as minimal as possible; and the opening up of distinct rooms into a flow of partially enclosed linked spaces.
Museum of Wisconsin Art
2013
West Bend, Wisconsin
Client
Museum of Wisconsin Art
Architect
HGA Architects and Engineers
Design Principal
James Vander Heiden, AIA, PE
Project Architect
Peter Balistrieri
Project Manager
Russ Drewery, AIA
Project Lead Designer
James Shields, FAIA
Project Team
Joe Tarlizzo, David Lang, Pao Yang, Ron Burns
Structural Engineer
HGA – Matthew Mikolainis
MEP/FP Engineers
HGA – Mechanical: Steve Mettlach, Jill Schuette, Kevin Pope
HGA – Electrical: Ryan Kannass, Scott Wheaton
Civil/Landscape Architect
Graef
Lighting Designer
HGA – Cathy Hall
Interior Designer
HGA – Jane Dedering
Contractor/Construction Manager
M.A. Mortenson
Exterior Fiber Cement Panels
Nichiha Illumination Series
Glass Curtain Wall
Wausau Metals
Large Format Ceiling Panels
Armstrong "Optima Open Plan"
Site Area
1.5 acres
Building Area
31,000 sf
Photos
Darris Lee Harris
Drawings
HGA Architects and Engineers








