MUZEIKO – America for Bulgaria Children’s Museum

20. October 2015

MUZEIKO – America for Bulgaria Children’s Museum

2015
Sofia, Bulgaria

Client
America for Bulgaria Foundation

Architect
Lee H. Skolnick Architecture and Design Partnership
New York, NY, USA

Design Principal
Lee H. Skolnick, FAIA

Project Architect
Larry Sassi, AIA

Project Manager
Scott Briggs, AIA

LHSA+DP Project Team
Architecture: Lee H. Skolnick, FAIA, Design Principal; Paul S. Alter, AIA, Managing Principal; Scott Briggs, AIA; Larry Sassi, AIA; Ted Klingensmith

Exhibit Design/Interpretive Team
Lee H. Skolnick, Design Principal; Jo Ann Secor, Director of Museum Services; Scott Briggs, Christina Ferwerda, Yun Chu Chou, Curt Meissner, Jethro Rebollar, Tugce Zaloglu.

Graphic Design Team
Christina Lyons, Dan Ownbey, Alyssa Liegel, Daphne Smith

Exhibit Consultant
Paul Orselli

Associate Architect
A&A Architects (Sofia, Bulgaria)

Structural Engineer
Strukto, BIPAK, Ltd. (Bulgaria)

MEP/FP Engineer
Termoklima, Dikras (Bulgaria)

Landscape Architect
Studio Gurkov (Bulgaria)

Lighting Designer
Available Light (New York); Nikan (Bulgaria)

Interior Designer
LHSA+DP

Contractor
Bigla III Ltd. (Bulgaria)

Construction Manager
Bigla III Ltd. (Bulgaria)

LEED Consultant
Triple Green Building Group LLC (Bulgaria)

Acoustical Design
Jaffe Holden (US)

Graphic Design Consultant
Post Studio (Bulgaria)

Exhibit Fabrication and Management
Maltbie, A Kubik Company (US)

Exhibit Fabrication
Walltopia/Rocktopia; Archidea; A Squared; OSA-2000; Mouse-PS; Darts Engineering; Excalibur; Playground Energy (all Bulgaria)

Multimedia Software
BonArt Studio (Bulgaria)

Exhibit AV Design and Production
Little Big Films (Bulgaria)

Exhibit AV Systems Integration
Electrosonic (UK)

Metal Structures / “Little Mountains”
Zenit-2, MKIzosystems (Bulgaria)

Building Envelope/Curtain Wall
TAL Engineering (Bulgaria)

Geothermal System
ReEnergy (Bulgaria)

Electrical Systems & Lighting
Kamo Buildgroup (Bulgaria)

HVAC, Water, Sewage
Ataro Clima, Ltd. (Bulgaria)

Site Work
Heil-N, Sofurban (Bulgaria)

Building Management System
Automations (Bulgaria)

Digital Strategy and IT Management
Indeavr (Bulgaria)

Finishes, Furniture and Equipment
Feststroy, Mondo Bulgaria, Flex Space, Buldecor (all Bulgaria)

Site Area
50,000 sf (4,650 sm)

Building Area
35,000 sf (3,250 sm)

Photographs
Roland Halbe

Drawings
LHSA+DP
Exterior View

What were the circumstances of receiving the commission for this project? 

LHSA+DP was contacted in 2011 by the America for Bulgaria Foundation based on seeing our firm’s work for the Dimenna Children’s History Museum at New-York Historical Society in the New York Times. LHSA+DP was asked to participate in an invited competition for the project. The firm was selected for the project from a pool of several international firms and was awarded the project in early 2012.

Exterior with lighting effects

Please provide an overview of the project.

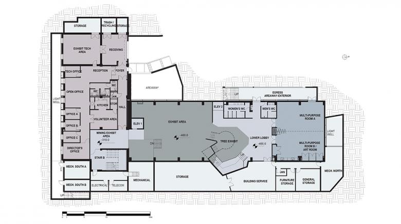
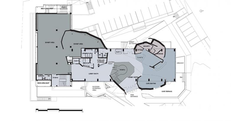
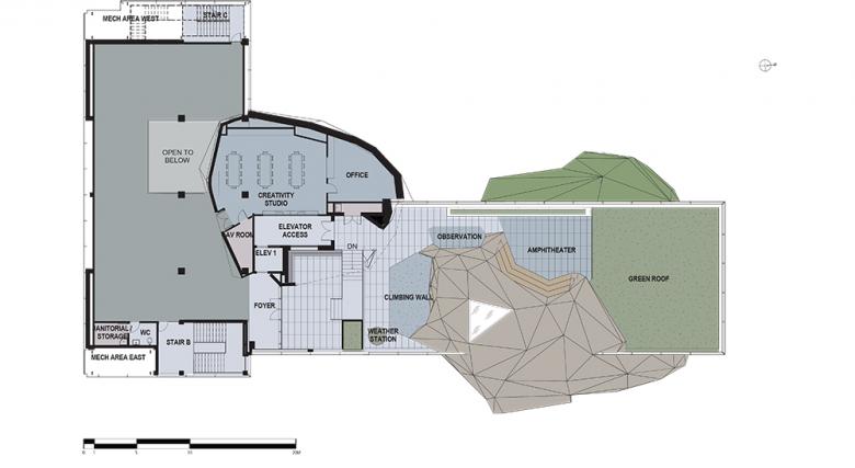
Muzeiko, located in Bulgaria’s capital city of Sofia, is the first children’s museum in the country and the largest in southeastern Europe. Organized conceptually as a journey moving through time and space, visitors can explore three levels of exhibits in the 35,000-sf (3,250-sm) facility. On the lowest level, children explore “the past” with exhibits based on archaeology, geology and paleontology. The ground floor is “the present,” represented by hands-on displays about the natural environment and contemporary cities. The top floor is dedicated to “the future” with interactive exhibitions featuring cutting-edge technologies and space travel.

Interactivity also infuses the site which includes a science playground, a green roof and rooftop climbing wall, a rain garden, outdoor activity space and an amphitheater.

Exterior façade looking into the cafe 

What are the main ideas and inspirations influencing the design of the building?

The museum’s architectural theme, “Little Mountains,” is an allusion to Bulgaria’s mountainous topography. The structure’s glass volume is broken by three sculptural forms, or “mountains,” each referencing through its color scheme and texture indigenous craft traditions in the country. One form features abstracted patterns inspired by textiles and embroidery, another by glazed ceramics, and the third by traditional wood carving.

The museum utilizes large areas of glass to reveal the interior and leave an impression of openness and transparency about the activity contained within in contrast to most Bulgarian museums that appear imposing and monumental.

Exterior with Little Mountain and seating area

Were there any significant challenges that arose during the project? If so, how did you respond to them?

The construction of the “little mountains” proved a challenge to local building trades. Using a combination of local engineering resources and local fabricators these complex geometric forms were realized using a combination of expertise.

Achieving the colors and textural patterns of the “little mountains” required a considerable amount of design study, material exploration and sample preparation before deciding upon the high-pressure laminate rain screen panels that were ultimately developed for these parts of the building.

Very large glass panels were required for the façade and the size was a challenge for Bulgarian suppliers. The final product was sourced from Germany and assembled in Bulgaria by a local curtain wall engineer and manufacturer.

Exterior, rooftop climbing wall

A high level of quality was desired in order to have large exposed concrete structural columns and exposed concrete walls both within the building and as part of the site design. The general contractor worked closely with the architect-of-record to provide concrete finish levels that exceed typical industry standard in Bulgaria.

While the design intent was tempered by overall project costs, the project was able to remain on budget by working closely with the client, architect-of-record and construction manager to utilize local suppliers and selecting alternate sources for building systems, materials and finishes, as needed to maintain budget parameters.

Tree of Life

How does the building relate to contemporary architectural trends, be it sustainability, technology, etc.?

The building is certified LEED Gold, only the second such building in Sofia. While LEED is typically an American sustainability rating program, the client, funded in large part by the America for Bulgaria Foundation, saw the LEED rating as desirable for this project.

The project incorporates geothermal heating/cooling, a solar array on the roof for supplementing electrical and hot water needs, triple glazed curtain walls with integral frit to mitigate UV and solar gain, permeable site paving, a cistern for retaining gray water for toilets and site irrigation, a planted roof, and site amenities such as local drought-resistant plantings, electrical vehicle recharging stations and bicycle racks.

Gift Shop

How did you approach designing for Sofia/Bulgaria and how would you describe the process of working on the project there?

While LHSA+DP served as the design architect, it was key to have the active involvement of a local architect-of-record from the earliest stages of the project. The firm, A&A Architects, was selected after an extensive interview process by our firm and the client in order to find a partner who fully supported contemporary design and understood its importance to this unique project. We also worked with the client to put in place a full complement of engineering and related project consultants from the start of the project to work closely with our US-based team. All design documentation was translated into both Bulgarian and English.

Cafe

While communication and navigating a few cultural differences was not always easy, LHSA+DP found all consultants in the project team to be extremely dedicated and they maintained a high level of involvement in this project as it was to be the first of its kind in Bulgaria. The professional engagement, enthusiasm, and ability to problem solve at the local level made all the difference in executing the project and the high level of quality that was maintained throughout the design, engineering and construction process.

Underground Secrets and Treasures exhibit

How would you describe the architecture of Sofia/Bulgaria and how does the building relate to it?

Geographically, the city sits on a high desert plain ringed by dramatic mountain ranges. As Europe’s second oldest city, founded 7,000 years ago, the city is built upon centuries of significant archaeological ruins dating from the Thracian, Roman, Byzantine and Ottoman empires. 

The historic center of Sofia combines a wide range of architectural styles. These styles vary from restored Christian Roman architecture and medieval Bulgar fortresses to fine examples of European Neoclassicism and prefabricated Socialist-era apartment blocks. Many of the major civic, educational and governmental buildings were built in a Neo-Baroque style in the 19th and early 20th century. A National Revival in the late 19th century led to a renewed Bulgarian respect for and preservation of traditional Bulgarian building techniques and crafts. Some examples of these can be found scattered throughout Sofia. The establishment of a Communist government from 1945-1990 led to the construction of numerous buildings in an imposing Stalinist modern style. This is particularly evident in the many Brutalist concrete residential apartment blocks that surround the city center. Since 1990, business parks, modern glass office buildings, and contemporary residential buildings have been built in and around the city. The city also has an extensive green belt of parks within the immediate city center.

Entrance Exterior with Little Mountains

Muzeiko’s architectural theme, “Little Mountains,” is an allusion to Bulgaria’s mountainous topography. The structure’s glass volume is broken by three sculptural forms, or “mountains,” each referencing through its color scheme and texture indigenous craft traditions in the country. One form features abstracted patterns inspired by textiles and embroidery, another by glazed ceramics, and the third by traditional wood carving.

The museum utilizes large areas of glass to reveal the interior and leave an impression of openness and transparency about the activity contained within in contrast to most Bulgarian museums and civic buildings that appear imposing and monumental. This was seen as important both in terms of creating an inviting public building but also making this unique project type, a children’s science museum, feel welcoming and accessible by Bulgarian children and families.

Email interview conducted by John Hill.

Explore Your World: Natural World Gallery
Site Plan
GROUND LEVEL Floor Plan
UPPER LEVEL Floor Plan
LOWER LEVEL Floor Plan

MUZEIKO – America for Bulgaria Children’s Museum

2015
Sofia, Bulgaria

Client
America for Bulgaria Foundation

Architect
Lee H. Skolnick Architecture and Design Partnership
New York, NY, USA

Design Principal
Lee H. Skolnick, FAIA

Project Architect
Larry Sassi, AIA

Project Manager
Scott Briggs, AIA

LHSA+DP Project Team
Architecture: Lee H. Skolnick, FAIA, Design Principal; Paul S. Alter, AIA, Managing Principal; Scott Briggs, AIA; Larry Sassi, AIA; Ted Klingensmith

Exhibit Design/Interpretive Team
Lee H. Skolnick, Design Principal; Jo Ann Secor, Director of Museum Services; Scott Briggs, Christina Ferwerda, Yun Chu Chou, Curt Meissner, Jethro Rebollar, Tugce Zaloglu.

Graphic Design Team
Christina Lyons, Dan Ownbey, Alyssa Liegel, Daphne Smith

Exhibit Consultant
Paul Orselli

Associate Architect
A&A Architects (Sofia, Bulgaria)

Structural Engineer
Strukto, BIPAK, Ltd. (Bulgaria)

MEP/FP Engineer
Termoklima, Dikras (Bulgaria)

Landscape Architect
Studio Gurkov (Bulgaria)

Lighting Designer
Available Light (New York); Nikan (Bulgaria)

Interior Designer
LHSA+DP

Contractor
Bigla III Ltd. (Bulgaria)

Construction Manager
Bigla III Ltd. (Bulgaria)

LEED Consultant
Triple Green Building Group LLC (Bulgaria)

Acoustical Design
Jaffe Holden (US)

Graphic Design Consultant
Post Studio (Bulgaria)

Exhibit Fabrication and Management
Maltbie, A Kubik Company (US)

Exhibit Fabrication
Walltopia/Rocktopia; Archidea; A Squared; OSA-2000; Mouse-PS; Darts Engineering; Excalibur; Playground Energy (all Bulgaria)

Multimedia Software
BonArt Studio (Bulgaria)

Exhibit AV Design and Production
Little Big Films (Bulgaria)

Exhibit AV Systems Integration
Electrosonic (UK)

Metal Structures / “Little Mountains”
Zenit-2, MKIzosystems (Bulgaria)

Building Envelope/Curtain Wall
TAL Engineering (Bulgaria)

Geothermal System
ReEnergy (Bulgaria)

Electrical Systems & Lighting
Kamo Buildgroup (Bulgaria)

HVAC, Water, Sewage
Ataro Clima, Ltd. (Bulgaria)

Site Work
Heil-N, Sofurban (Bulgaria)

Building Management System
Automations (Bulgaria)

Digital Strategy and IT Management
Indeavr (Bulgaria)

Finishes, Furniture and Equipment
Feststroy, Mondo Bulgaria, Flex Space, Buldecor (all Bulgaria)

Site Area
50,000 sf (4,650 sm)

Building Area
35,000 sf (3,250 sm)

Photographs
Roland Halbe

Drawings
LHSA+DP

Related articles 

Featured Project 

Atelier KI JUN KIM

House by the Wall

Other articles in this category