NaCl House

NaCl House

25. June 2012

NaCl House
2011

Bethesda, MD

Client
Withheld

Architect
David Jameson Architect
Alexandria, VA

Design Principal
David Jameson, FAIA

Project Architect
Ron Southwick

Structural Engineer
Linton Engineering

Contractor
Freedom First Homes

Site Area
0.52 acres

Building Area
4820 sf

Photos
Paul Warchol

Front Elevation

Can you describe your design process for the building?

The existing structure had a very bland and regular footprint. The client needed much more space so it was necessary to build up and out. We wanted to limit the construction’s impact on the landscape so we cantilevered the new spaces out from the existing structure to create the necessary living area as well as more interesting architectural mass. The existing garage is slightly lower than the street, which was in the basement of the house – so one challenge was to disguise the scale of the house so that it did not appear from the street as a three story monolith, towering above its neighbors.

Exterior view of breakfast room

How does the completed building compare to the project as designed? Were there any dramatic changes between the two and/or lessons learned during construction?

The only significant change between the original design and the completed building was a vertical shaft of space above the kitchen which extended to the skylight was closed off and made into a sitting room off the master bedroom at the client’s request.

Interior view of living room

How does the building compare to other projects in your office, be it the same or other building types?

Our office has a couple different conceptual threads and seem to weave through our work. The idea for NaCl is along the lines of “dynamic massing” similar to our Jigsaw, Fort Scott and Graticule residences. This design approach is quite different than that of the Barcode House or Kensington Residence which were projects we design around the same time as NaCl.

Initial Sketch

Are there any new/upcoming projects in your office that this building’s design and construction has influenced?

Many of the projects we currently have under construction or on the boards have been a hybrid of this same design thread that shaped NaCl but incorporating a planar element that juxtaposes the mass.

Email interview conducted by John Hill.

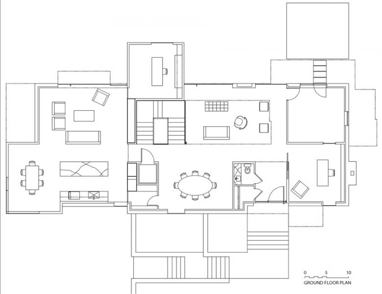
Ground floor plan
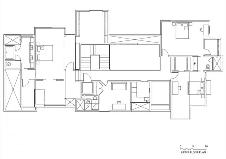
Upper floor plan

NaCl House
2011

Bethesda, MD

Client
Withheld

Architect
David Jameson Architect
Alexandria, VA

Design Principal
David Jameson, FAIA

Project Architect
Ron Southwick

Structural Engineer
Linton Engineering

Contractor
Freedom First Homes

Site Area
0.52 acres

Building Area
4820 sf

Photos
Paul Warchol

Related articles 

Other articles in this category