Nantes School of Architecture

Nantes School of Architecture

17. January 2012

Nantes School of Architecture
2009

Nantes, France

Architects
Anne Lacaton & Jean-Philippe Vassal
Paris

Design team
Florian de Pous
Frédéric Hérard
Julien Sage-Thomas
Lisa Schmidt-Colinet
Julien Callot
David Prade
Isidora Meier

Surface area
26.837 m2

Cost
€ 17,75M
building, exterior works and utility services

Photos
Philippe Ruault
Lacaton&Vassal
Valery Joncheray

General view from Loire river

On the banks of the Loire, between the Law Courts created by Jean Nouvel and Haudaudine Bridge, the School of Architecture takes its place within the development plan of the Île de Nantes. Due to its generous dimensions, this project examines the ability a structure may have to produce mobility and to facilitate vertical planning. The great potential of its concrete skeleton leads to extremely rich and reversible situations of usage that are of interest not only to the architecture school but also to the city and the landscape.

View from the Île de Nantes

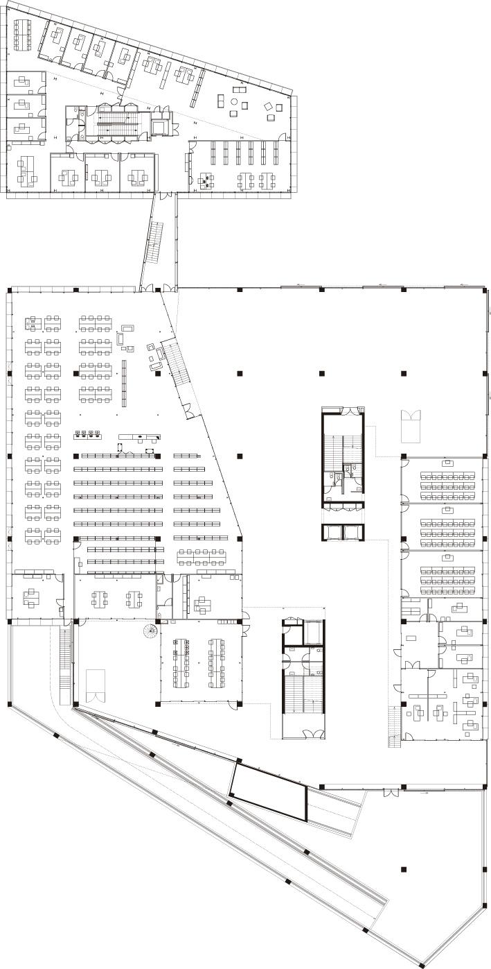
The building is made up of a primary superstructure consisting of three decks in precast concrete hollow core planks at 9, 16 and 23 metres above the natural ground level, which increases the terrain and allows a ground surface more than twice as large as that of the programme to be constructed. These floor slabs are served by a gently sloping external ramp that progressively links the ground surface of the city and its sky.

The gently sloping external ramps

The capacity of the floors makes loads of 1 ton per m2 possible, thus offering students the possibility to build at a scale of 1:1. A secondary structure accommodated over almost half the surface of this superstructure divides and organizes the height of these main decks. It enables the programmed spaces to be installed completely independently of the superstructure. Between these two structural systems, double-height volumes produce intermediary spaces.

Interior view from the Intermediate Level 2B

Accorded no precise function, they are free and multiuse, and become a place of appropriation and free initiative. Their wide façade panels, moveable and transparent, harness the input of the sun’s rays and ensure the modulation of the indoor climate and the natural ventilation. Their extremely wide windows open onto the city. These constructed voids increase the programmed spaces. They create other possibilities, permit new ways of dwelling, of pushing programmes to the limit and of loosening up the regulations. Due to its functions, the ground floor is open and available for public activities.

Plan from Level 1A

The teaching spaces, library and design studios are installed in the upper levels. The top level, at 23 m, is a vast, completely open terrace jutting out over the Loire. Its appearance is of a public square-cum lookout point, with a unique view over the city. The exhibition gallery, research facility and administration offices are sited beside the Loire in an independent building attached to the main building by a footbridge at level 1.

Nantes School of Architecture
2009

Nantes, France

Architects
Anne Lacaton & Jean-Philippe Vassal
Paris

Design team
Florian de Pous
Frédéric Hérard
Julien Sage-Thomas
Lisa Schmidt-Colinet
Julien Callot
David Prade
Isidora Meier

Surface area
26.837 m2

Cost
€ 17,75M
building, exterior works and utility services

Photos
Philippe Ruault
Lacaton&Vassal
Valery Joncheray

Related articles 

Featured Project 

Atelier KI JUN KIM

House by the Wall

Other articles in this category