Nashville Ascend Amphitheater
Nashville, Tennessee, is world renowned for its country music scene. It's no surprise that it carries the nickname Music City, and it's also no surprise that a world-class amphitheater is a major component in a new riverfront park. Designed by California's Hodgetts+Fung, the Nashville Ascend Amphitheater is capped by a generous roof that frames a view toward downtown Nahsville. The architects answered a few questions about the project.
What were the circumstances of receiving the commission for this project?
Well-known landscape architect Kim Hawkins had a chance to win the commission for a major park development built over the remains of a thermal generation plant along the Cumberland River at the intersection of Nashville’s notorious Broadway Street. Hunter Gee of Smith Gee Studio reached out to us, explaining that a highly regarded designer was needed for the planned centerpiece of the park: a world-class amphitheater that would provide a dynamic expression of Nashville’s Country Music history while positioning itself for the 21st century. The city’s mayor at the time, Karl Dean, was determined to personally approve the design and cut the ribbon before being termed out – which was just 22 months after we were handed the commission.
Please provide an overview of the project.
Our search for an architectural vocabulary that might resonate in the Music City began with the massive limestone bridge abutments and steel trusses that criss-cross the Cumberland River and concluded with a motif inspired by a classic guitar amplifier. Situated in a new civic park at the foot of Nashville’s downtown and gesturing towards the Cumberland River this amphitheater provides a much-needed venue for an eclectic mix of musical performance.
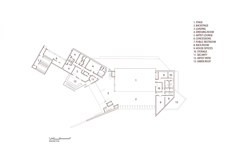
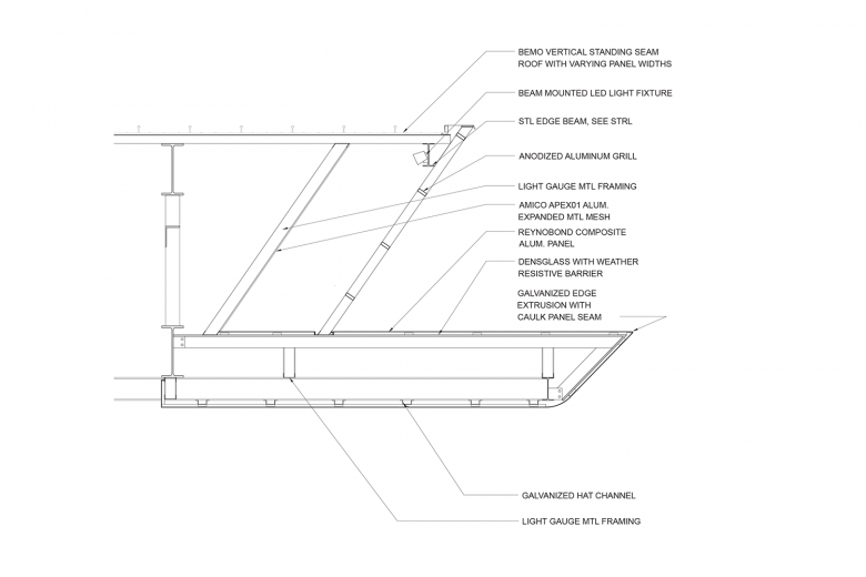
The stage and back-of-house spaces are grouped within a limestone podium which in turn supports a sloped and cantilevered steel-clad roof. Rigging points and catwalks are positioned to enable rapid turnaround of sets and lighting, while careful consideration of the culture of touring artists led to the creation of an artist’s wing designed to enable the families of performers to accompany them backstage.
Audience amenities have been strategically placed in coordination with the landscape design, and share a material palette with the stage structure, while a sloping battered wall shelters views of the performers’ semi-trailers from the surrounding park. Because the structure will be dormant for the greater part of the year, great care was taken to frame a vast, compelling view of the Nashville skyline when the stage is not in use.
What are the main ideas and inspirations influencing the design of the building?
In the design of the amphitheater shell and its supporting facilities we were greatly influenced by the site, historic Nashville, and Nashville’s esteemed place in American music. Those influences range from the extraordinary Hatch poster graphics to the trusses on the bridge, and from the limestone masonry to the neon-lit bars. We found Gretsch amplifier, a home-grown brand, had a material palette and a form language that seemed to contain DNA we could extract to build our own design vocabulary. The evolution of the design was inextricably engaged with the self-image of country music, as well as references to the historic materials used in the construction of Nashville’s many bridges.The result is a pencil thin roof anchored by a limestone rampart.
How did the project change between the initial design stage and the completion of the building?
Nashville is famous for limestone structures and riveted iron bridges, so we initially speculated about a prefabricated steel superstructure hauled up out of the river and erected over the stage; but the Mayor was not inspired by the idea of old bridges, since he envisioned an amphitheater that was all about music.
Was the project influenced by any trends in energy-conservation, construction, or design?
Ascend Amphitheater and West Riverfront Park is LEED Gold certified. Sustainability highlights include:
- 2,800 square foot green roof
- 400,000 gallon rain harvesting tank
- Geothermal heating and cooling system
- Geothermal ice machines
- 1,350 square feet of solar panels on the roof
- 267 trees representing over 38 different species and will achieve Level 1 arboretum status
- 48 bike parking spaces and a bike repair station
- 9,000 square feet of permeable paving
- 2,705,500 tons of recycled content through April
- 2,895 tons of crushed rock used onsite
- Solar-powered media charger
Email interview conducted by John Hill.
Nashville Ascend Amphitheater
2015Nashville, Tennessee
Client
Nashville Metropolitan Government
Design Architect
Hodgetts+Fung
Culver City, California
Design Principals
Craig Hodgetts and Hsinming Fung
Senior Associate Designer
Darin Vieira
Executive Architect
Smith Gee Studio
Structural Engineer
EMC Structural Engineers, P.C.
Civil Engineer
Civil Site Design Group, LLC
Landscape Architect
Hawkins Partners
Theater Consultant
Schuler Shook
Interior Designer
Smith Gee Studio
Contractor
Skanska
Site Area
11 acres
Building Area
49,000 sf
Photographs
Rachel Paul Photography
Drawings
Hodgetts+Fung









