New Perspectives for the Poor

Eduard Kögel | 7. September 2020
©Weiqi JIN
Architects: CU OFFICE  
Site Area: 1042 sqm  
Area: 640 sqm
Year: 2020  
Chief Architects: Fei CHE, Xuefeng ZHANG
Design Team: Jinping LIANG, Yaowen ZHANG
Local Design Institute: China Urban Construction Design & Research Institute Co., LTD  
Client: China Foundation for Poverty Alleviation
Photographs: Weiqi JIN 
©Weiqi JIN

The province of Gansu with a population of 26 million is among the poorest in China. Maxiang Village is part of Tangwang Town in Dongxiang Autonomous County, and is located about 70 kilometres southwest of the provincial capital Lanzhou. It is comprised of two areas of settlement a few hundred meters apart on the banks of the Tao River – a tributary of the Yellow River. The fertile river plain around the village is surrounded by arid mountain ranges and lies at an altitude of over 1700 meters. The immediate vicinity of the village is characterized by apricot groves that tourists from across the country come to see when in bloom in spring. 

©Weiqi JIN

Maxiang Village is multi-ethnic and multi-religious: it is inhabited by Han Chinese, Tibetan and Muslim communities and has a Muslim mosque of the Dongxiang ethnic group, as well as an auspicious Tibetan Buddhism temple and a Taoism temple. As a result, the narrow open spaces in the village are often occupied by various activities and festivals related to religion, folklore and tourism. The new project by CU Office is located on the road connecting the two parts of the village, and just a few metres from the ten-meter-deep slope to the Tao River.

©Weiqi JIN

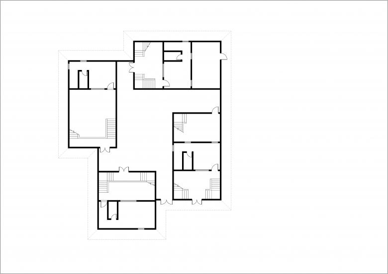
The architects studied the courtyard houses in the village and developed a new courtyard house type that reinterprets the social and cultural context. Eight residential units are arranged in two assemblies of four almost identical units grouped around a common courtyard and expressed as separate cubic volumes. Extending to circa 70 square metres, the units consist of a kitchen, common spaces and a private walled courtyard on the ground floor and a bedroom on the first floor. To minimise the impact of the 2-storey building height within the surrounding topography, the ground floor is partly set into the ground by a half-level and an open staircase connects the levels. Each of the four private courtyards is accessed via a common courtyard, which provides the only access; like a filter between the public and the private spaces. 

©Weiqi JIN

The architecture of simple cubic forms and few materials is due to a restrictive budget. The consistently white-painted walls, the courtyards paved with simple bricks, and the simple window openings are interrupted by a single feature: a large area of glazing wrapping around and projecting from one corner of the cubic volume at first floor level. This corner window allows a view above the courtyards into a landscape characterized by a culture of small gardens and orchards. This new architectural language by Che Fei and his team at CU Office in Beijing differs significantly from the other buildings in the village and yet manages, without mimicry, to fit into the cultural landscape. 

©Weiqi JIN

The project was financed by the China Foundation for Poverty Alleviation as a tourism facility that, after twenty years, will be donated to the village community free of charge. With the help of the foundation, the village community has set up a company to manage the profits and hired a local company to manage the facility over the next three years. It is hoped that this project will be successful and also serve as a model in terms of its architecture. At the very least, this new infrastructure in the varied landscape with a rich local culture, offers the best possible prerequisites for a viable future in the countryside.

©Weiqi JIN
©Weiqi JIN
©Weiqi JIN
©Weiqi JIN
©Weiqi JIN
©Weiqi JIN
CU OFFICE
CU OFFICE
CU OFFICE
CU OFFICE
CU OFFICE

Related articles 

Featured Project 

Atelier KI JUN KIM

House by the Wall

Other articles in this category