Numata Elementary School

Numata Elementary School

1. October 2015

Numata Elementary School
2013
Hokkaido

Architects
Atelier BNK

Design Principal
Makoto Kato

Project Team
Mitsutoshi Ikehata, Nana Ikemura

Structural Engineer
Yoshiharu Kanebako/Kanebako Structural Engineers 

MEP/FP Engineer
Atelier BNK + Sogo Consultants

Landscape Designer
Atelier BNK

Interior Designer
Chiori Design

Furniture Designer
Conde House

Contractor
Architecture: Chizaki Iwata, Koshin, Umakari Joint Architectural Venture
Electrical: Toko Electrical Construction Co.
Mechanical: Ikeda, Matsuo Jusetsu, Matsuo Kogyo Joint Architectural Venture

Toilet
TOTO

Hardware
Naka Corporation

Lighting Fixture
Panasonic

Site Area
11,549.2 ㎡

Building Area
3,914.89 ㎡

Total Floor Area
4,185.09 ㎡

Photo
Koji Sakai

Northwest exterior. Small and large volumes cluster beneath a single, deep concrete eave

Please give us an overview of the project.

This is a small elementary school with just one class per grade, located in the interior of Hokkaido, Japan’s northernmost island. While most of Japan is temperate, Hokkaido alone is part of the subarctic zone.  Winters are snowy and bitterly cold, but temperatures vary widely throughout the year, and from spring through fall the climate is pleasant. Our theme for this project was to understand the natural features of the site and develop a type of building suited to them, with a minimal environmental impact. We have been interested in this approach for quite a while, and see this project as a continuation of our work on Itoi Elementary School, Kuromatsunai Junior High School Renovation, and Toyotomi Residential Support Center. 

Children leaving school from the southern entrance.
The view from the grounds to the south reveals Galvalume sheeting and the evening sky reflected in the gymnasium’s curtain wall.

What was most important for you during the design process?

Buildings in the subarctic zone require countermeasures against heavy snow build-up, freezing, and thawing, as well as good insulation and air-tightness, and of course durability or solidity. On the other hand, it’s also important to take advantage of the pleasant climate during the other three seasons by letting in enough air and light and ensuring the design has an open feeling to it.  We have been searching for ways to combine these contradictory characteristics of openness and solidity in a single structure.

Hokkaido’s historicity is another important theme for us. Development of the island began in earnest about 150 years ago, and since then a range of affordable and durable materials and building techniques have been designed for use in its industrial facilities. In this project we added modern details to traditional materials such as concrete blocks and sheet metal. We selected a mansard roof for its structural benefits, but took care to incorporate it into the existing landscape.

East exterior, with Galvalume sheeting laid at an angle following the slope of the roof and concrete blocks with 5 mm joints.
North exterior. Deep eaves prevent snow falling from the large roof over the gym.
The "Light Field" in front of the staff room. Natural light from skylights is softened as it bounces off a series of reflective panels. 

What challenges did you face in the project? How did you respond to them?

In order to reduce heating demand, which accounts for the majority of energy use, we designed a compact rectangular building with as little exterior wall surface as possible. This lent the plan a feeling of unity, with the classrooms, gym, and other rooms closely linked to one another. Because the cold and snow limit outside activities, the children spend most of their time inside, making this type of expansive interior space quite meaningful.

For the same reason we also wanted to bring in plenty of natural light year-round, adding to the open feeling of the space. We focused on incorporating indirect light through strategies such as using northern light, blocking direct light with eaves, and making use of the snow’s reflectivity. Because increasing the number and size of windows would have increased heating demand, we devised a window layout that effectively brought in natural light without increasing overall window surface area.  

"Light Field" viewed from the library/computer lab.
The large, unified space comprised of the gym and adjacent library/computer lab offers a view of children engaged in various activities. 
The gym gets its unique character from the roof’s inverted v-shape, which reduces structural load. 
"Light Field" viewed from the second floor hallway. The classrooms lining the hallway enjoy natural light from both north and south. 

What did you learn from this project? What will you take from it to future projects?

The north-south cross-sectional shape of a building is very important in terms of reducing energy use. Inside, we examined the distribution of light and airflow, and outside we looked at overall surface area, snowfall patterns, windflow, and snow cornice formation.  I believe the line of equilibrium between exterior and interior requirements determines the appropriate crosssectional design for a building. In the future I hope to increase the precision of such designs in response to the natural features of each site. 

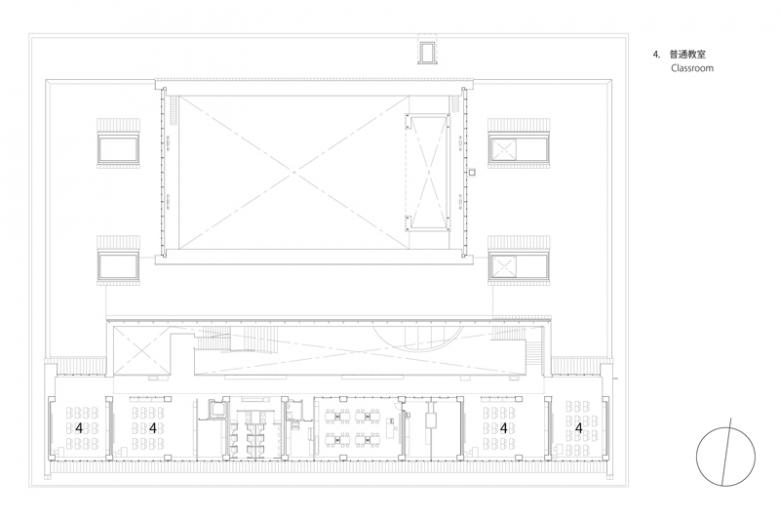
First-floor plan 
Second-floor plan 
Section 


E-mail interview by Yuna Yagi (translated from Japanese by Winifred Bird)  

Numata Elementary School
2013
Hokkaido

Architects
Atelier BNK

Design Principal
Makoto Kato

Project Team
Mitsutoshi Ikehata, Nana Ikemura

Structural Engineer
Yoshiharu Kanebako/Kanebako Structural Engineers 

MEP/FP Engineer
Atelier BNK + Sogo Consultants

Landscape Designer
Atelier BNK

Interior Designer
Chiori Design

Furniture Designer
Conde House

Contractor
Architecture: Chizaki Iwata, Koshin, Umakari Joint Architectural Venture
Electrical: Toko Electrical Construction Co.
Mechanical: Ikeda, Matsuo Jusetsu, Matsuo Kogyo Joint Architectural Venture

Toilet
TOTO

Hardware
Naka Corporation

Lighting Fixture
Panasonic

Site Area
11,549.2 ㎡

Building Area
3,914.89 ㎡

Total Floor Area
4,185.09 ㎡

Photo
Koji Sakai

Related articles 

Other articles in this category